Bright family home with garden and garage in established Tanfield development.
Energy-efficient new build with modern solar and insulation features
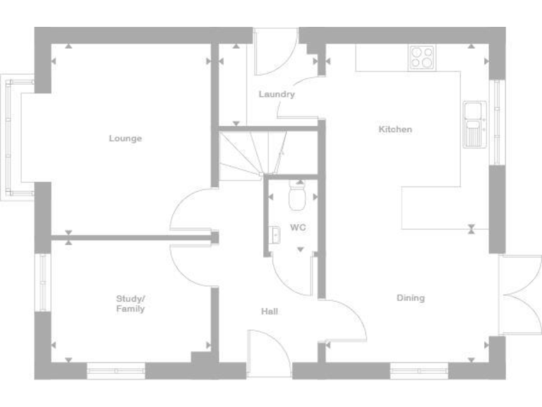
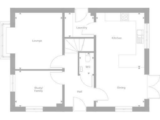
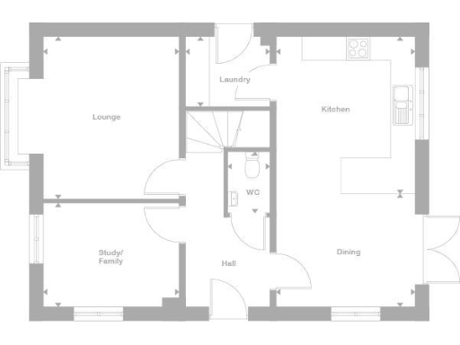
Open-plan kitchen/dining with French doors to large rear garden
Separate laundry, useful study and downstairs WC
Bay-windowed lounge and central feature staircase
Principal bedroom with en suite; three further good-sized bedrooms
Single garage and private parking; freehold tenure stated
Annual service charge £131; reservation fee £500 mentioned
Area has above-average crime; one nearby secondary rated Inadequate
This newly built four-bedroom detached house in Tanfield offers practical family living with modern, energy-efficient features and a generous rear garden. The ground floor centres on a bright open-plan kitchen/dining area with French doors opening onto the garden, plus a separate laundry, study and a bay-windowed lounge for flexible living.
Upstairs the principal bedroom has an en suite, with three further double bedrooms and a main bathroom with separate shower. A single garage and driveway provide private parking. The home is freehold and benefits from a low annual service charge of £131.
Buyers should note the development sits in an area with above-average crime and mixed neighbourhood classifications; local secondary provision includes at least one school rated Inadequate. The property is new build, so finish choices and optional extras may apply. Council tax band and some local charges are TBC.
4 bedroom detached house for sale in Tanfield,
Stanley,
Durham,
DH9 9UY
, DH9 — £350,000 • 4 bed • 1 bath • 927 ft²
4 bedroom detached house for sale in Tanfield,
Stanley,
Durham,
DH9 9UY
, DH9 — £342,000 • 4 bed • 1 bath • 921 ft²
4 bedroom detached house for sale in Tanfield,
Stanley,
Durham,
DH9 9UY
, DH9 — £325,000 • 4 bed • 1 bath • 816 ft²
5 bedroom detached house for sale in Tanfield,
Stanley,
Durham,
DH9 9UY
, DH9 — £420,000 • 5 bed • 1 bath • 1056 ft²
5 bedroom detached house for sale in Tanfield,
Stanley,
Durham,
DH9 9UY
, DH9 — £426,000 • 5 bed • 1 bath • 1056 ft²
4 bedroom detached house for sale in Tanfield,
Stanley,
Durham,
DH9 9UY
, DH9 — £293,000 • 4 bed • 1 bath • 789 ft²


































































































































































































































































