Single-floor living with large garden, long drive and double garage.
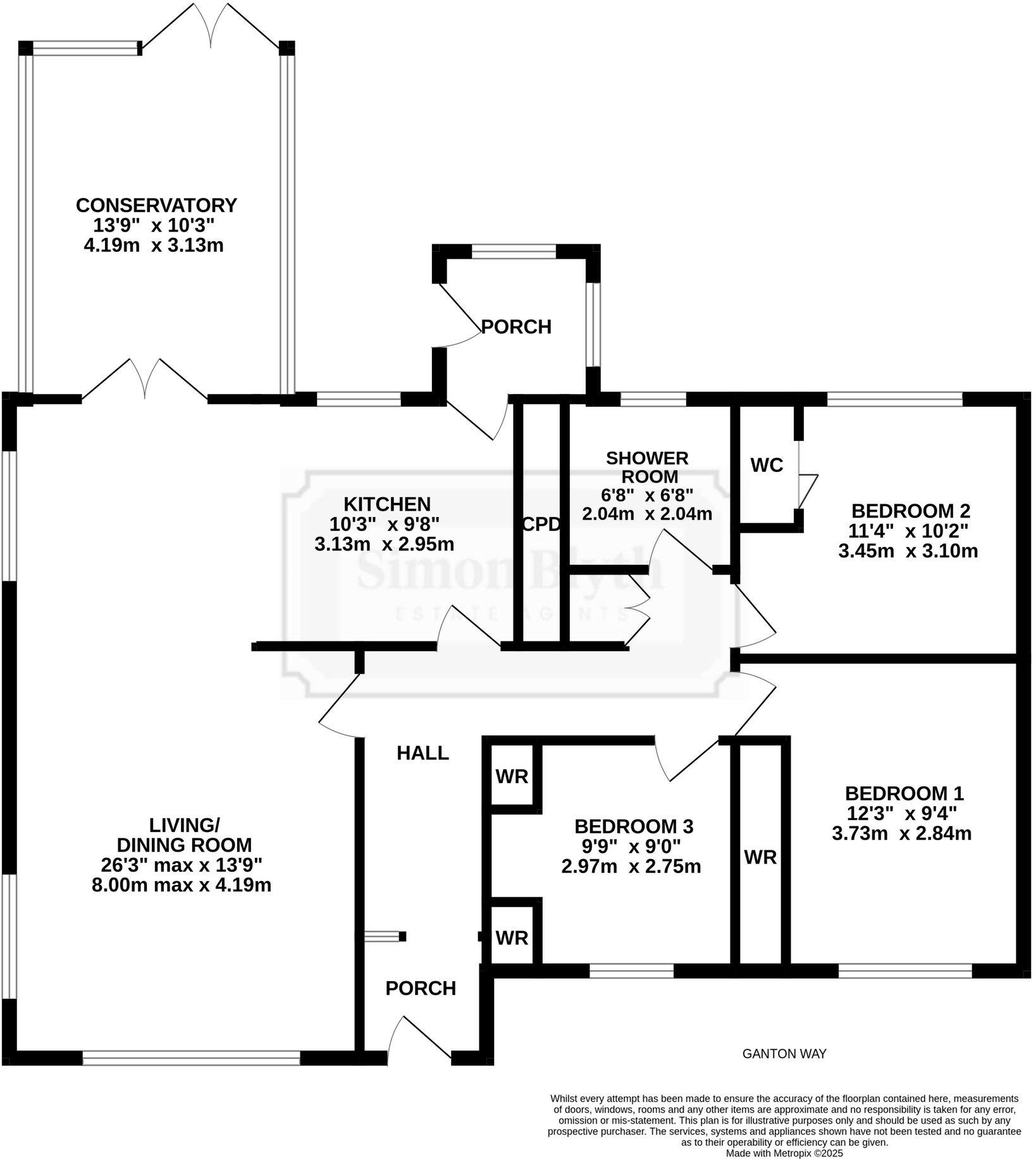
Detached true three-bedroom bungalow on a large plot
A spacious three-bedroom detached true bungalow set on a large plot in a well-regarded Huddersfield neighbourhood. The home is tastefully presented with oak flooring, a generous triple-aspect living/dining room and a conservatory overlooking the private rear garden — ideal for easy single-storey living and entertaining. The long driveway and detached double garage provide substantial off-street parking and storage.
Practical features include gas central heating, PVCu double glazing, a fitted modern kitchen with integrated appliances and a security alarm for both house and garage. The layout includes a partly boarded loft with lighting, useful for additional storage, and an en-suite WC to the second bedroom. The property sits close to local amenities, green spaces and has good access to the M62, making short journeys straightforward.
This bungalow will appeal to downsizers seeking low-maintenance, single-floor accommodation with plenty of outdoor space, or buyers wanting a comfortable home with scope to personalise. The property is freehold, in a very affluent area with low crime and fast broadband — practical strengths for everyday living.
Notable practical points: council tax is above average for the area, and room heights are standard rather than particularly high. While well maintained and presented, buyers should satisfy themselves on any specific adaptations they may need for mobility or long-term accessibility.
3 bedroom detached bungalow for sale in Gleneagles Way, Huddersfield, HD2 — £325,000 • 3 bed • 1 bath • 894 ft²
3 bedroom detached bungalow for sale in Banks Avenue, Golcar, HD7 — £320,000 • 3 bed • 1 bath • 1001 ft²
3 bedroom detached bungalow for sale in Gleneagles Way, Fixby, HD2 — £350,000 • 3 bed • 2 bath • 1014 ft²
3 bedroom detached bungalow for sale in Alwen Avenue, Huddersfield, HD2 — £350,000 • 3 bed • 2 bath • 1742 ft²
3 bedroom bungalow for sale in Allison Drive, Huddersfield, West Yorkshire, HD2 — £425,000 • 3 bed • 2 bath • 2521 ft²
3 bedroom detached bungalow for sale in Ganton Way, Fixby, Huddersfield, West Yorkshire, HD2 — £425,000 • 3 bed • 2 bath • 912 ft²






























































































































