Chain-free 3-bed single-level home with large garage and generous garden.
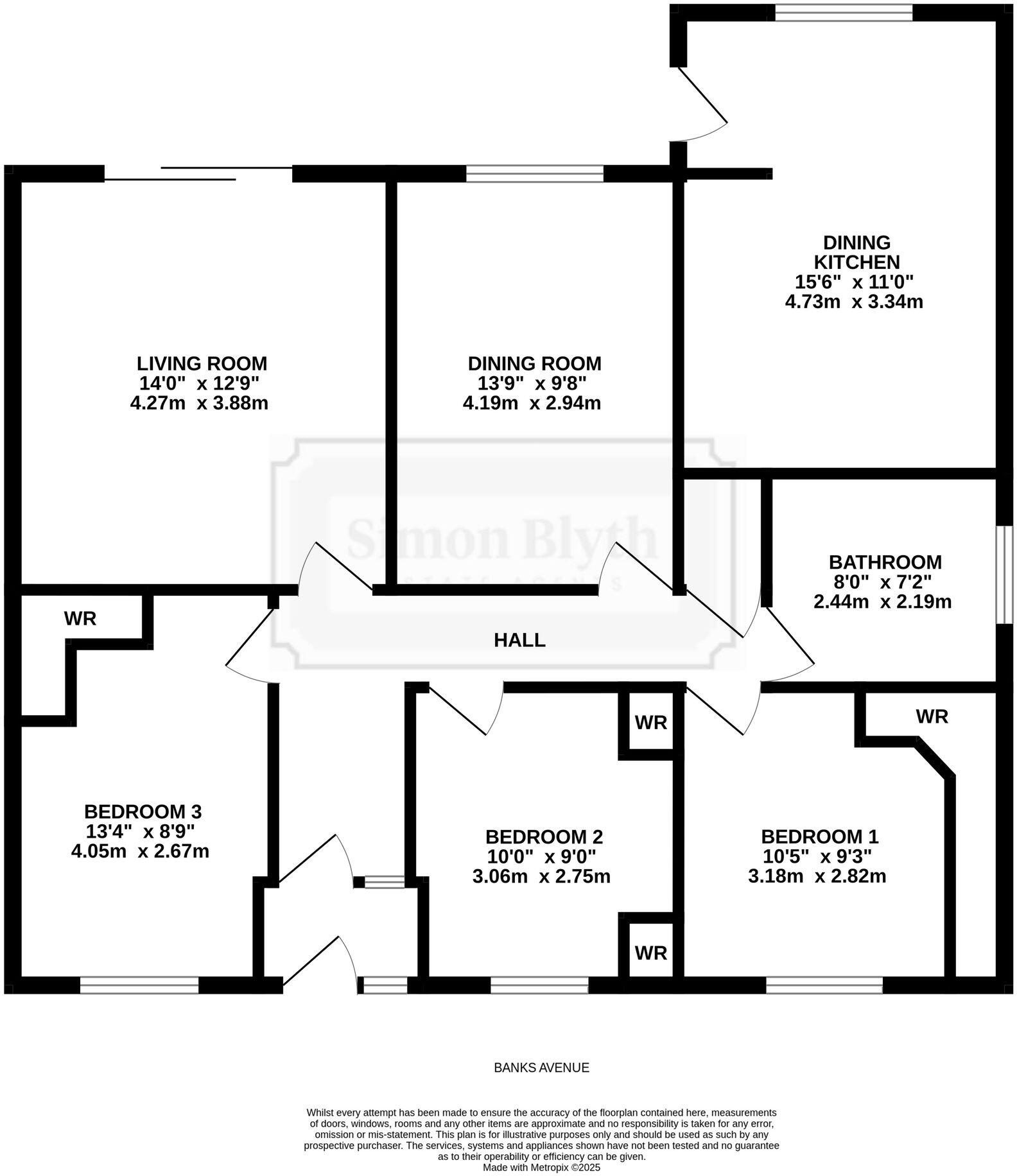
- Detached true bungalow on a generous, well-landscaped plot
- Large detached garage with power, store room and gardeners' WC
- Vacant possession and no onward chain
- Three double bedrooms, two reception rooms, single main bathroom
- Gas central heating, PVCu double glazing, alarm and shutters
- EPC rating D; cavity walls assumed uninsulated (1930s–1940s build)
- Glazing install date unknown; potential for energy upgrades
- Cul-de-sac location within walking distance of village amenities
A vacant, chain-free three-bedroom detached bungalow arranged on a single level, set at the top of a quiet cul-de-sac in Golcar. The property sits on a decent plot with a sizeable rear garden, paved patio, driveway and a large detached garage with power — useful for hobbies, storage or conversion (subject to consent). Internally the layout is traditional and practical: two reception rooms, a fitted dining kitchen with integrated appliances, three fitted double bedrooms and a four-piece bathroom.
The house benefits from gas central heating, PVCu double glazing, an alarm system and security shutters. Many rooms are well-proportioned for a bungalow and the living room’s patio doors provide direct garden access — ideal for easy indoor–outdoor living. Local village amenities, good primary and secondary schools and convenient routes to the town centre and M62 are all within easy reach.
Notable points to consider: the property dates from the 1930s–1940s and the cavity walls are assumed to have no added insulation; the EPC is D. The glazing install date is unknown and some owners may choose to update energy-efficiency measures. Overall this is a comfortable, accessible home with scope to modernise or adapt to personal tastes while enjoying a strong plot and useful outbuildings.
2 bedroom detached bungalow for sale in Newsome Road, Huddersfield, HD4 — £199,950 • 2 bed • 1 bath • 636 ft²
3 bedroom bungalow for sale in Potters Walk, Golcar, Huddersfield, West Yorkshire, HD7 — £280,000 • 3 bed • 1 bath • 592 ft²
4 bedroom detached bungalow for sale in Fixby Road, Fixby, Huddersfield, HD2 — £500,000 • 4 bed • 1 bath • 1619 ft²
3 bedroom bungalow for sale in Allison Drive, Huddersfield, West Yorkshire, HD2 — £425,000 • 3 bed • 2 bath • 2521 ft²
2 bedroom detached bungalow for sale in Dunsmore Drive, Huddersfield, HD3 — £255,000 • 2 bed • 1 bath • 916 ft²
3 bedroom bungalow for sale in Stratford Close, Golcar, Huddersfield, West Yorkshire, HD7 — £260,000 • 3 bed • 2 bath • 961 ft²














































































































