NW6 5AY - 2 bed spacious period top floor in Cambridge Gardens, NW6 5…

View on Property Piper

2 bedroom flat for sale in Cambridge Gardens, Kilburn Park, NW6

Summary - 18d Cambridge Gardens NW6 5AY

2 bed 1 bath Flat

Large two-bedroom home with garden access and immediate tube connections.
Top-floor Victorian flat with high ceilings and period character
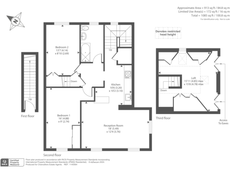
Approx. 1,085 sq ft — unusually large for a two-bedroom flat
Access to undemised converted loft (not included in leasehold)
Ample communal and private garden access for outdoor space
111 years remaining on a 125-year lease; leasehold sale
Service charge c. £1,400/year; ground rent £10 per year
Solid brick walls likely without insulation; retrofit may be needed
Area has very high recorded crime despite excellent transport links
Set on the top floor of a handsome Victorian house, this two-bedroom flat offers generous living space (approx. 1,085 sq ft) and high ceilings that emphasise the period character. A modern fitted kitchen and family bathroom make it ready to live in, while built-in storage and bright rooms suit everyday family life or sharers.

A notable bonus is access to an undemised converted loft with skylights — useful extra space but not part of the leasehold ownership. Residents also benefit from ample communal gardens and access to a private garden, ideal for outdoor entertaining in a central NW6 location just a one-minute walk from Kilburn Park station.

The flat is leasehold with around 111 years remaining on a 125-year term. Service charges average £1,400 per year and ground rent is low (£10). The building is solid brick (likely no cavity insulation) with secondary glazing and gas central heating via boiler and radiators.

Be candid about location trade-offs: the area is an inner-city, deprived ward with very high recorded crime rates, although transport links, local amenities and schools (including several rated Good or better) are close at hand. The property presents straightforward living now with scope to improve thermal performance and personalise during medium-term refurbishment.

Property Details

Image Descriptions

Floorplan Description

Rooms

Textual Property Features

Target Audience

AI Tags

Detected Visual Features

EPC Details

Nearby Schools

Nearest Bars And Restaurants

,,,,}

Nearest General Shops

,,}

Nearest Grocery shops

,,}

Nearest Supermarkets

,,}

Nearest Religious buildings

,,}

Nearest Medical buildings

,,,}

Nearest Airports

,}

Nearest Leisure Facilities

,,,,}

Nearest Tourist attractions

,,}

Nearest Train stations

,,,,}

Nearest Bus stations and stops

,,,,}

Nearest Hotels

,,}

Tags

Local Market Stats

AirBnB Data

Similar Properties

Meta

High Res Images

Compatible Images

Low res Images

Thumbnails

Raw Images

High Res Floorplan Images

Compatible Floorplan Images

Low res Floorplan Images

FloorplanImages Thumbnail

Raw Floorplan Images