South‑west garden and versatile detached garage ideal for family life.
Three bedrooms in a detached family home
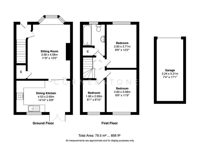
Set on a quiet Meanwood avenue, this three-bedroom detached home offers practical family living with a flexible detached garage currently fitted out as a home gym. The layout provides a sitting room with sliding doors into an open-plan kitchen-diner that opens onto a south-west facing rear garden — good for evening sun and outdoor family time.
Located within easy walking distance of Waitrose and Meanwood centre, the house sits near popular amenities, parks and several well-regarded schools, making it convenient for everyday life and school runs. Off-street driveway parking and a lawned front garden with mature hedging add kerb appeal and privacy.
The property was built in the early 1990s, is freehold and is heated by a mains-gas boiler with radiators. The detached garage is plastered, has inset spotlights and an electric roller-shutter door, giving flexibility as a gym, workshop or storage. Windows are double glazed, though install dates are unknown.
A few practical points to note: the home has a single family bathroom, overall living space is moderate (about 856 sq ft), and some buyers may want to update fixtures or modernise to personal taste. Council Tax is Band D. These factors are reflected in the price and make the house most suitable for families seeking a well-located, ready-to-live-in home with scope to adapt the garage space.
4 bedroom semi-detached house for sale in Parkside Avenue, Meanwood, Leeds, West Yorkshire, LS6 — £425,000 • 4 bed • 1 bath • 1381 ft²
4 bedroom detached house for sale in Stonegate Lane, Meanwood, Leeds, West Yorkshire., LS7 — £410,000 • 4 bed • 2 bath • 1114 ft²
3 bedroom semi-detached house for sale in Church Lane, Meanwood, Leeds, West Yorkshire., LS6 — £495,000 • 3 bed • 1 bath • 1181 ft²
3 bedroom semi-detached house for sale in Parkside View, Meanwood, Leeds, West Yorkshire, LS6 — £342,500 • 3 bed • 1 bath • 881 ft²
3 bedroom semi-detached house for sale in Stonegate Road, Meanwood, Leeds, West Yorkshire., LS6 — £395,000 • 3 bed • 1 bath • 1309 ft²
4 bedroom detached house for sale in Stainbeck Lane, Meanwood, Leeds, West Yorkshire, LS7 — £399,950 • 4 bed • 1 bath • 1280 ft²






































































































