**Standout Features**:
- Charming first-floor one-bedroom flat
- Panoramic views from the top of Catherine Hill
- Open plan kitchen/living room with ample natural light
- Modern kitchen with integrated appliances
- Convenient location near independent shops and cafes
- Spacious 4-piece bathroom suite, including a bidet
- Long lease of 991 years
**Potential Concerns**:
- Listed status may complicate renovations
- Higher service charge of £1,599 annually
- High crime rate in the area
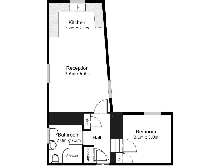
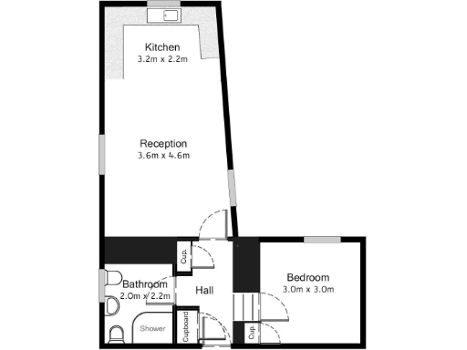
Experience cozy urban living in this delightful one-bedroom flat, perfectly situated on the bustling Catherine Hill. Ideal for first-time buyers or investors looking for a buy-to-let opportunity, this property boasts a contemporary open-plan kitchen and living space, highlighted by its modern design and ample natural light. The well-equipped kitchen features integrated appliances, while a charming gas fireplace adds a touch of warmth and comfort.
The double bedroom, accessed by a few steps, includes internal storage, and the spacious four-piece bathroom suite is perfect for relaxation. With a long lease of 991 years, you’ll have security for your investment.
While the property benefits from its vibrant location with shops, cafes, and a cinema just steps away, prospective buyers should be mindful of the higher service charge and listed status that might pose challenges for future renovations. This intimate flat offers an excellent entry point into homeownership in a lively locale—don’t miss your chance!
Studio flat for sale in Catherine Hill, Frome, Somerset, BA11 1BZ, BA11 — £132,000 • 1 bed • 1 bath
2 bedroom flat for sale in Catherine Street, Frome, Somerset, BA11 1DB, BA11 — £165,000 • 2 bed • 1 bath • 540 ft²
1 bedroom flat for sale in Catherine Street, Frome, BA11 1DU, BA11 — £140,000 • 1 bed • 1 bath • 352 ft²
1 bedroom apartment for sale in Catherine Street, Frome, Somerset, BA11 — £169,500 • 1 bed • 1 bath • 575 ft²
3 bedroom flat for sale in Catherine Street, Frome, BA11 — £225,000 • 3 bed • 1 bath • 778 ft²
2 bedroom flat for sale in Stony Street, Frome, Somerset, BA11 1BU, BA11 — £285,000 • 2 bed • 1 bath • 823 ft²














































