**Standout Features:**
- Central location in Frome, ideal for families and buy-to-let investors
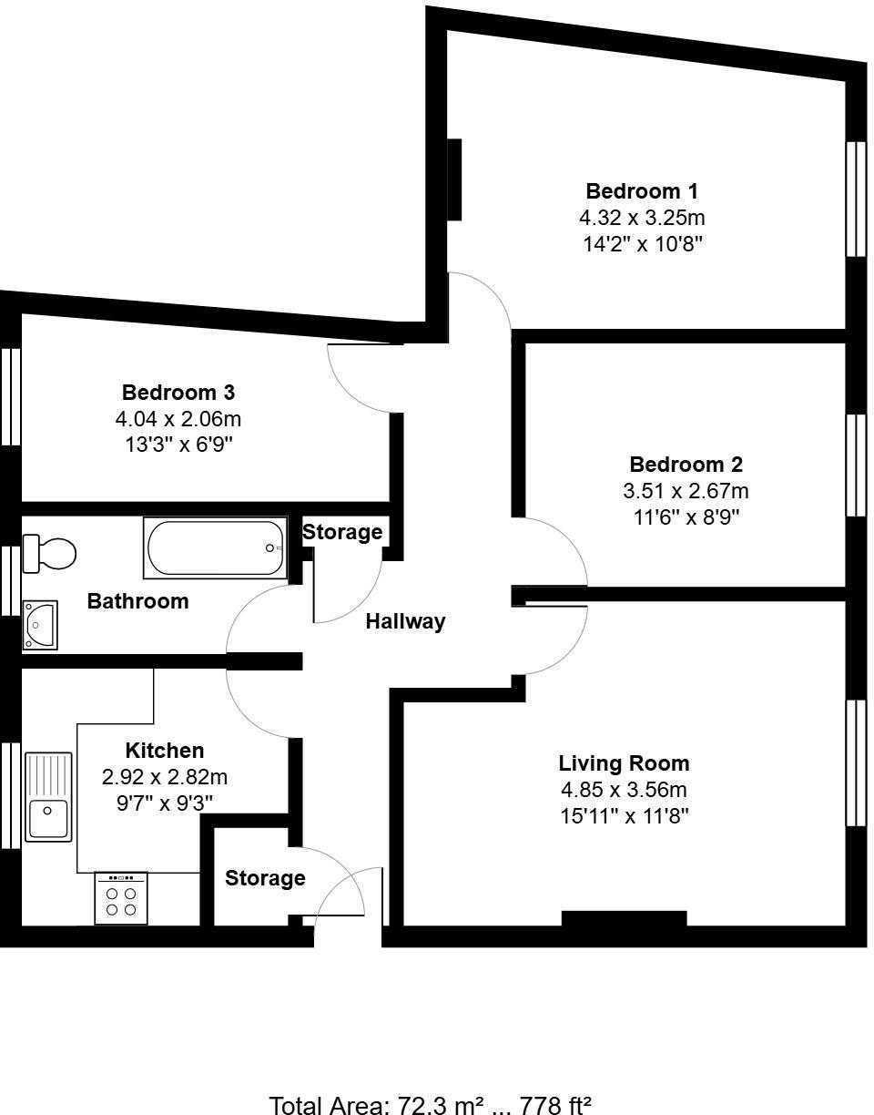
- Three spacious double bedrooms with large windows
- Character-filled living room with a feature fireplace and exposed brick wall
- Share of Freehold and no onward chain
- Low council tax (Band A) and below-average service charge (£70 PCM)
- Fast broadband and excellent mobile signal
**Potential Downsides:**
- Constructed before 1900, may have structural considerations
- Double glazing installed before 2002; potential for energy efficiency upgrades
- High crime rate in the area
- Limited insulation in the building's construction
Tucked away near Catherine Street, this charming three-bedroom flat is an exceptional find for first-time buyers or investors. The bright entrance hall leads to a modern kitchen and a character-filled living room adorned with a feature fireplace, setting a cozy atmosphere. Each spacious bedroom enjoys natural light, with pleasant views of the surrounding area. This prime location puts you a short walk from local amenities, independent shops, and cafés along Catherine Hill, making everyday life convenient. With easy rail links to Bath and Bristol, this property is perfectly positioned for city dwellers wanting a serene countryside backdrop. Enjoy the benefits of space, charm, and low maintenance in a vibrant community. Act fast—properties like this one don’t last long!
2 bedroom flat for sale in Catherine Street, Frome, Somerset, BA11 1DB, BA11 — £165,000 • 2 bed • 1 bath • 540 ft²
3 bedroom flat for sale in Catherine Street, Frome, Somerset, BA11 1DA, BA11 — £275,000 • 3 bed • 1 bath • 1064 ft²
1 bedroom apartment for sale in Catherine Street, Frome, Somerset, BA11 — £169,500 • 1 bed • 1 bath • 575 ft²
1 bedroom flat for sale in Catherine Hill, Frome, BA11 1BZ, BA11 — £150,000 • 1 bed • 1 bath • 398 ft²
1 bedroom flat for sale in Catherine Street, Frome, BA11 1DU, BA11 — £140,000 • 1 bed • 1 bath • 352 ft²
2 bedroom flat for sale in Vallis Way, Frome, BA11 — £170,000 • 2 bed • 1 bath • 571 ft²


























































