Set on a huge plot within woodland, ready for occupation spring 2026.
Four double bedrooms with two en suites and family bathroom
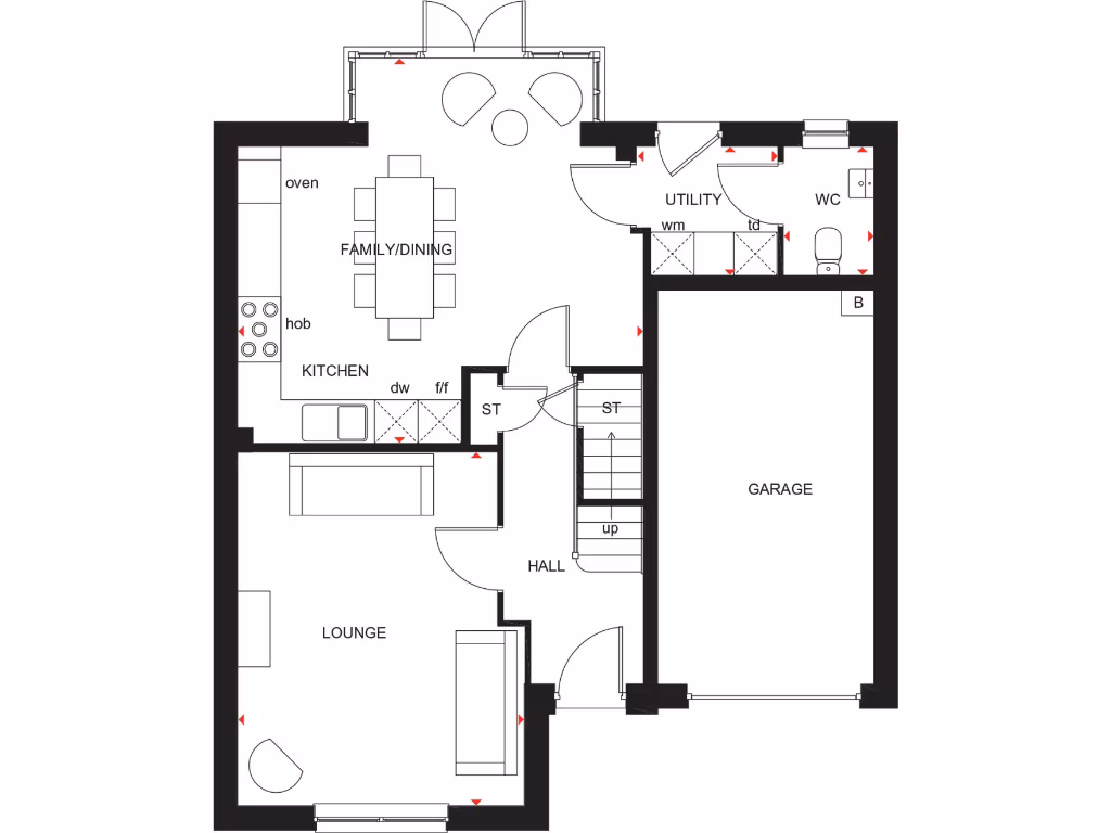
The Falkland is a newly built, four-double-bedroom detached house set within Bangour Village Estate’s woodland setting. Downstairs centres on an open-plan kitchen/family/dining area with French doors to the large rear garden, plus a separate lounge to the front, utility and ground-floor WC. Upstairs offers two en suites, additional family bathroom and wardrobe space in each bedroom. A single integral garage provides parking and storage.
Designed for growing families, the home delivers generous principal rooms — the kitchen/family space and lounge are both substantial — and direct access to extensive outdoor space across the estate. Local infrastructure for modern living is planned, including leisure facilities, a primary school, cycle paths and walkways; retail and transport links are already within easy reach.
Buyers should note a few practical points: broadband speeds are reported as slow despite excellent mobile signal, and tenure details are not provided. The property sits in an area classed as very deprived, which may affect long-term local services and resale dynamics. The house is due for completion and ready to move into in spring 2026.
Overall, this is a straightforward, family-focused new build with spacious rooms, strong outdoor appeal and future neighbourhood amenities. It suits purchasers seeking contemporary living space on a large plot, who are comfortable managing slower fixed-line broadband and clarifying tenure before exchange.
4 bedroom detached house for sale in Bangour Village Estate,
Wester Dechmont,
EH52 6LL, EH52 — £419,995 • 4 bed • 1 bath • 1200 ft²
4 bedroom detached house for sale in East Calder,
EH53 0HS, EH53 — £419,995 • 4 bed • 1 bath • 1203 ft²
4 bedroom detached house for sale in East Calder,
EH53 0HS, EH53 — £419,995 • 4 bed • 1 bath • 1203 ft²
4 bedroom detached house for sale in Bangour Village Estate,
Wester Dechmont,
EH52 6LL, EH52 — £407,995 • 4 bed • 1 bath • 1161 ft²
4 bedroom detached house for sale in Bangour Village Estate,
Wester Dechmont,
EH52 6LL, EH52 — £450,995 • 4 bed • 1 bath • 1380 ft²
4 bedroom detached house for sale in Bangour Village Estate,
Wester Dechmont,
EH52 6LL, EH52 — £459,995 • 4 bed • 1 bath


























































































