Spacious reverse-level family living with balcony, garage and A-rated efficiency.
Four double bedrooms, three bathrooms including two en-suites
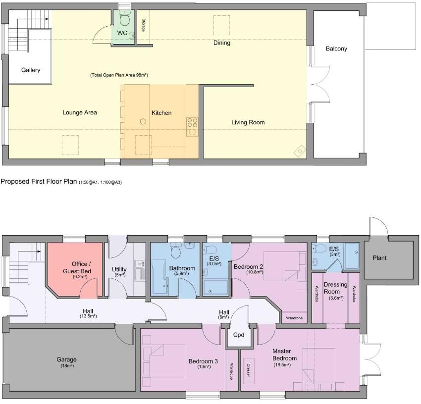
Open-plan first-floor living with balcony and countryside views
Integral garage, driveway parking and landscaped gardens
EPC A and structural warranty included
Energy-efficient construction; premium kitchen and bathroom choices
Main heating: oil boiler and radiators (not communal)
Slow broadband speeds; mobile signal average in hamlet location
Data inconsistency on construction age and assumed solid brick walls/no insulation
Set in a quiet hamlet close to Market Rasen, this four-bedroom detached house uses reverse-level living to maximise light and countryside views. The first-floor open-plan living space combines a premium kitchen, dining and lounge area that flows out to a private balcony — a practical layout for family life and entertaining. Landscaped gardens, an integral garage and driveway provide outdoor space and parking without extra work.
Bedrooms are arranged on the ground floor for privacy and convenience. The generous master suite includes a walk-in dressing room and contemporary en-suite; a second bedroom also has an en-suite and there is a high-quality family bathroom. A flexible fourth bedroom/office and a utility room add everyday practicality.
Specification highlights include energy-efficient construction, double glazing, choice of premium kitchens, bathrooms and flooring, plus a structural warranty and an EPC rating of A. The property sits on a decent plot in a rural workers-and-families area with good local schools nearby, making it suitable for families seeking a modern home in the countryside.
Buyers should note a few material points: main heating is oil-fired boiler and radiators; broadband speeds are reported slow and mobile signal is average. Some provided data sources conflict on age (listed as new build but also recorded with a pre-1900 construction reference); buyers should verify construction age and insulation details, as walls are noted as solid brick with no assumed insulation. These are practical matters to confirm prior to exchange.
4 bedroom detached house for sale in Folly Hill, Thornton Road, North Owersby, Market Rasen, LN8 — £490,000 • 4 bed • 3 bath • 1669 ft²
5 bedroom detached house for sale in Thornton Road, North Owersby, LN8 — £650,000 • 5 bed • 5 bath • 2949 ft²
4 bedroom detached house for sale in Gainsborough Road, Middle Rasen, LN8 — £395,000 • 4 bed • 2 bath • 1690 ft²
5 bedroom detached house for sale in Folly Hill, Thornton Road, North Owersby, LN8 — £650,000 • 5 bed • 4 bath • 2266 ft²
4 bedroom detached house for sale in The Vista, 1A Park View, Legsby, LN8 — £600,000 • 4 bed • 3 bath • 1647 ft²
5 bedroom detached house for sale in Folly Hill, Thornton Road, North Owersby, LN8 — £582,000 • 5 bed • 4 bath














































