SA18 2NX - Plot for sale in Derwydd Road, Ammanford, SA18

View on Property Piper

Plot for sale in Derwydd Road, Ammanford, SA18

Summary - 2 Station Cottages, Derwydd Road, AMMANFORD SA18 2NX

1 bed 1 bath Plot

**Highlights:**
- Level building plot on Derwydd Road, Ammanford
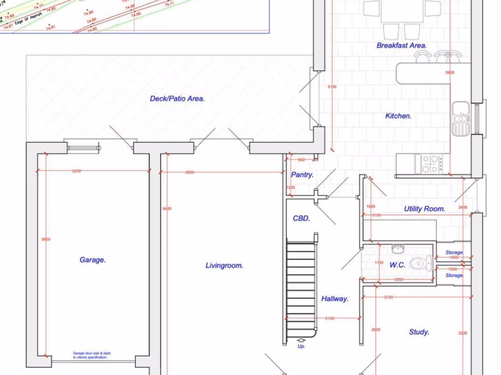
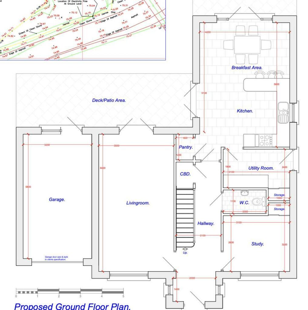
- Full planning permission for a detached two-storey house and garage (Application No. E/35803)
- Convenient village location near Llandeilo, Llandybie, and Ammanford
- Access to services on the road and building control approval received
- Large plot size with potential for a family home or investment opportunity

Nestled in the peaceful hamlet of Derwydd, this level building plot offers a fantastic opportunity for those looking to build their dream home or an investment property. With full planning permission for a modern two-storey house and garage, this site is ready for development, complete with building control approval. The plot benefits from its rural charm and is conveniently located, providing easy access to nearby towns such as Llandeilo and Llandybie.

The spacious plot allows for a thoughtfully designed family residence, with ample outdoor space to create a serene garden or patio area. While the area showcases a countryside feel, it’s also well-equipped with essential amenities, all ensuring a comfortable lifestyle. This is a unique chance to craft a bespoke home in a desirable village location—don't miss out on this opportunity to invest in your future!

Property Details

Brochure Descriptions

Image Descriptions

Textual Property Features

Detected Visual Features

Nearest Bars And Restaurants

,,,,}

Nearest General Shops

,,}

Nearest Grocery shops

,,}

Nearest Supermarkets

,,}

Nearest Religious buildings

,,}

Nearest Medical buildings

,,,}

Nearest Leisure Facilities

,,,,}

Nearest Tourist attractions

,,}

Nearest Train stations

,,,,}

Nearest Bus stations and stops

,,,,}

Nearest Hotels

,,}

Tags

Local Market Stats

AirBnB Data

Similar Properties

Meta

High Res Images

Compatible Images

Low res Images

Thumbnails

Raw Images