**Standout Features:**
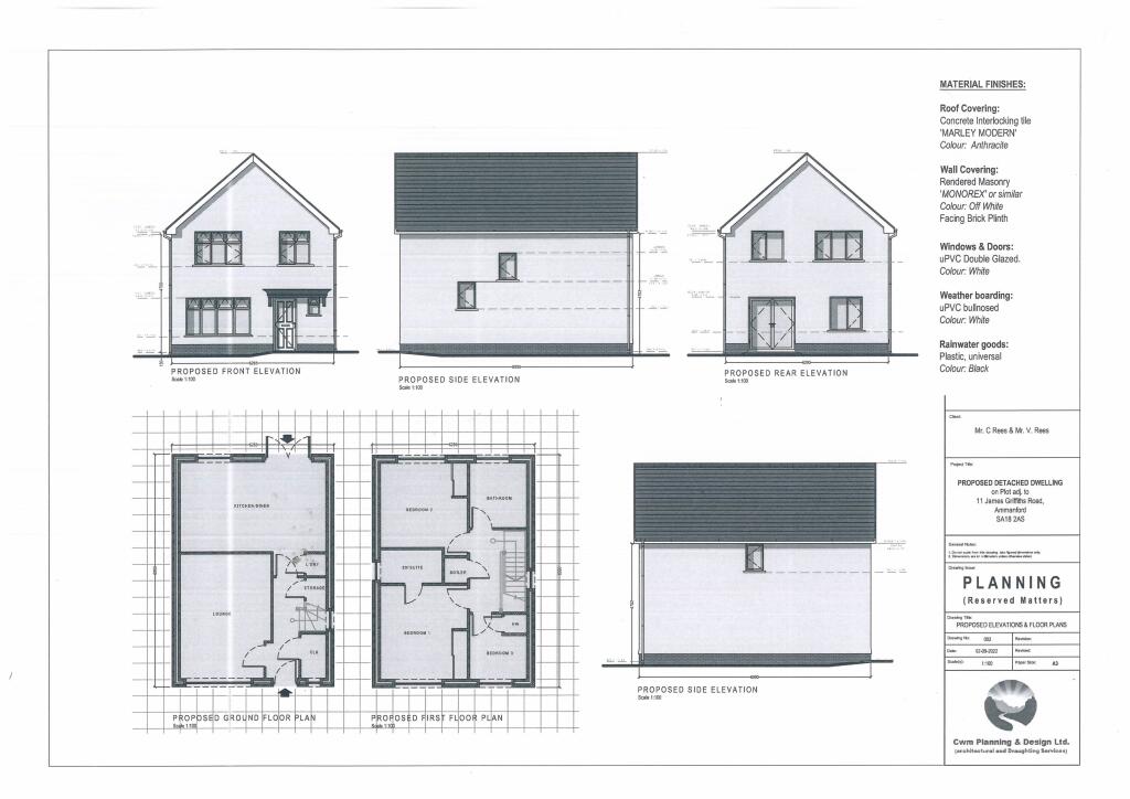
- Freehold building plot with approved planning permission for one detached dwelling
- Located in a desirable area on the outskirts of Ammanford town
- Mains services available (connection charges may apply)
- Planning references: PL/01392 (approved 04/08/2021) and PL/05801 (reserved matters approved 20/07/2023)
- Secure and tranquil environment with very low crime rates
**Summary:**
Discover an exceptional opportunity to build your dream home on this freehold plot on James Griffiths Road, Ammanford. With planning permission already approved for a contemporary one-detached dwelling, you can start creating your ideal living space right away. Nestled in a peaceful and sought-after area, this location combines the tranquility of suburban living with easy access to Ammanford's excellent shopping and leisure facilities.
Mains services are readily available, subject to connection charges, offering a straightforward path to development. Although the area boasts beauty and serenity, potential buyers should be mindful of the rural aspect, which may require further landscape management.
With a competitive price of £69,995, this plot presents a unique chance for first-time buyers, investors, or anyone looking to downsize into a bespoke home tailored to their tastes. Don’t miss out on this fantastic investment opportunity—plots like this in such a prime location are a rarity and are sure to attract significant interest. Envision your future here and take the first step toward turning this blank canvas into your new sanctuary.
Plot for sale in Bishop Road, Ammanford, SA18 — £95,000 • 1 bed • 1 bath
Plot for sale in Penyrallt, Garnant, Ammanford, SA18 — £110,000 • 1 bed • 1 bath
Plot for sale in Dyffryn Road, Ammanford , SA18 — £129,950 • 1 bed • 1 bath
Plot for sale in Derwydd Road, Ammanford, SA18 — £79,950 • 1 bed • 1 bath
Plot for sale in New Road, Gwaun Cae Gurwen, Ammanford, SA18 — £70,000 • 1 bed • 1 bath
Detached house for sale in Pentwyn Road, Ammanford, Carmarthenshire., SA18 — £89,950 • 1 bed • 1 bath






