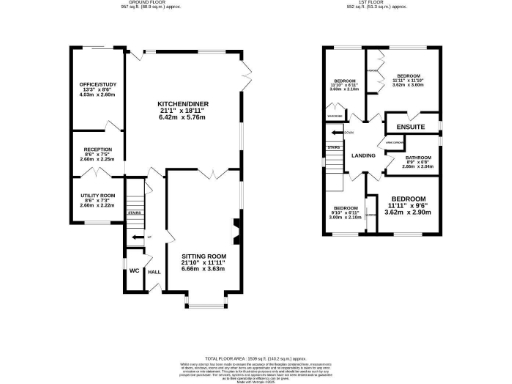
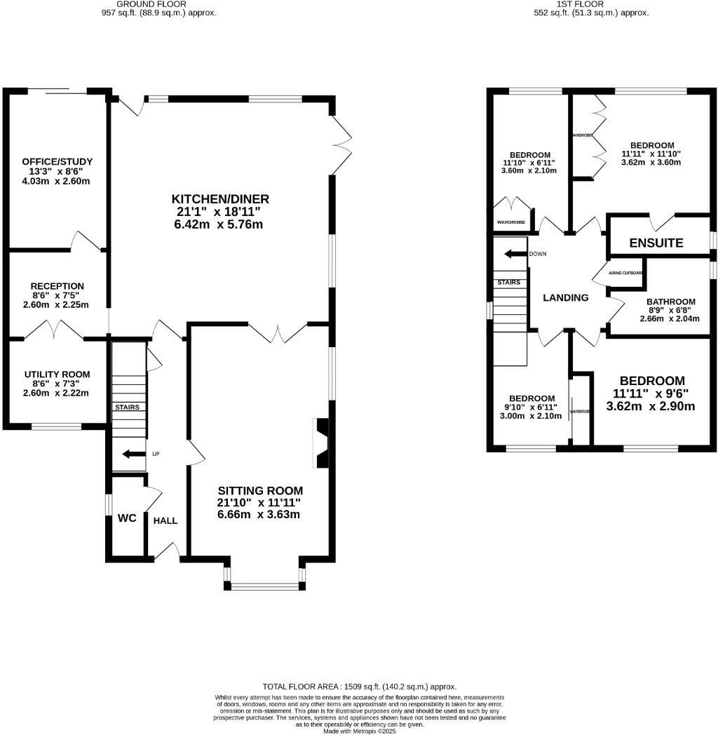
**Standout Features:**
- Four spacious bedrooms, including a master with en-suite
- Large open-plan kitchen/dining room with modern fixtures
- Three versatile reception rooms
- Off-street gated driveway and manageable garden
- No onward chain for a quick move-in
- Prime location near village amenities and local schools
- EPC rating of C and low council tax band (E)
This contemporary four-bedroom detached family home offers an ideal blend of space and comfort, making it perfect for families. With over 1,500 sq. ft. of living space, the heart of the home lies in its expansive open-plan kitchen and dining area, designed for both family gatherings and entertaining friends. The adjoining utility room adds practicality, while three additional reception rooms provide flexibility for a playroom or study. The master suite features a luxurious en-suite bathroom, complemented by good-sized additional bedrooms, all equipped with built-in wardrobes.
Set on a decent plot, the property boasts a private, gated driveway and a garden that is low-maintenance yet perfect for children or pets to enjoy. Located in the charming village of St. Michaels, you'll find convenience just moments away, with local schools and amenities within walking distance, including the renowned High Street of Tenterden, offering a variety of shops and eateries.
Benefiting from no onward chain, this property is ready for you to move in and make it your own. Don't miss the chance to secure this family-friendly home in an affluent area with excellent local services and a sense of community—schedule your viewing today!
5 bedroom detached house for sale in St. Michaels, TN30 — £550,000 • 5 bed • 2 bath • 1492 ft²
5 bedroom detached house for sale in St. Michaels, TN30 — £800,000 • 5 bed • 2 bath • 2054 ft²
4 bedroom detached house for sale in Orchard Road, St. Michaels, Tenterden, TN30 — £575,000 • 4 bed • 2 bath • 1637 ft²
4 bedroom detached house for sale in St. Michaels, Tenterden, TN30 — £500,000 • 4 bed • 2 bath • 1324 ft²
4 bedroom detached house for sale in Henley Fields, St. Michaels, Tenterden, TN30 — £635,000 • 4 bed • 2 bath • 1368 ft²
5 bedroom detached house for sale in Henley Meadows, St. Michaels, Tenterden, Kent, TN30 — £600,000 • 5 bed • 2 bath • 2001 ft²






















































