Spacious period home with huge character and practical modern upgrades.
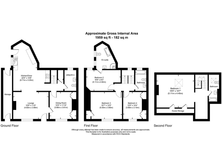
Four double bedrooms across three floors
Approximately 2,078 sq ft of living accommodation
Three bathrooms; ensuite to master bedroom
Period features: exposed beams and ornamental fireplaces
Fitted dining kitchen with Indian slate flooring
Small enclosed courtyard-style garden; limited outdoor space
Off-street parking at rear used for many years (not formalised)
Solid brick walls likely lack cavity insulation; may need thermal upgrades
This substantial Victorian townhouse offers around 2,078 sq ft of characterful living in the centre of Ripon. Four double bedrooms, three bathrooms and two reception rooms give genuine flexibility for family life, home working or a city-centre holiday let. Original features — exposed beams, ornamental fireplaces and timber shutters — remain prominent while modern upgrades add practical comfort.
Practical benefits include a fitted dining kitchen with Indian slate flooring, a utility with ground-floor WC, triple glazing and a new combi boiler installed February 2025. The house is chain free and offered freehold, with very low flood risk and off-street parking to the rear that has been used by the current owners for many years.
Notable drawbacks are factual and should be considered: the rear courtyard is small, the masonry is traditional solid brick (likely without cavity insulation) and the exterior shows period roof and pointing that may need maintenance or restoration. Broadband and mobile signals are average and the area has a mixed local school picture.
Overall this is a rare, large city-centre home for buyers who value period character and generous internal space, and who accept some exterior and thermal-improvement work may be required. It will suit purchasers seeking a distinctive main residence, lock-up-and-leave city base or an income-producing town-centre property.
4 bedroom end of terrace house for sale in Blossomgate, Ripon, HG4 — £360,000 • 4 bed • 3 bath • 986 ft²
4 bedroom terraced house for sale in Victoria Grove, Ripon, North Yorkshire, HG4 — £285,000 • 4 bed • 2 bath • 1362 ft²
3 bedroom terraced house for sale in Wellington Street, Ripon, HG4 — £197,000 • 3 bed • 1 bath • 754 ft²
4 bedroom end of terrace house for sale in Rayner Street, Ripon, North Yorkshire, HG4 — £285,000 • 4 bed • 1 bath • 1593 ft²
4 bedroom terraced house for sale in Kirkby Road, Ripon, North Yorkshire, HG4 — £395,000 • 4 bed • 1 bath • 1660 ft²
2 bedroom terraced house for sale in High Skellgate, Ripon, HG4 — £139,950 • 2 bed • 1 bath • 607 ft²














































































