Central one-bedroom with loft and communal gardens ideal for city-fringe living.
Large arched windows and high ceilings in the main living area
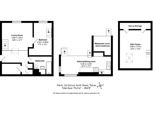
Set in the heart of Totnes, this converted Victorian school flat combines period character with practical living. Large arched windows and high ceilings create a bright, airy main room, while a versatile loft provides extra sleeping or workspace. Communal gardens and nearby off-street parking add outdoor and practical convenience in a very central location.
The layout works well for first-time buyers, downsizers or buy-to-let investors: one double bedroom, a separate bathroom, and numerous built-in storage areas including eaves and under-floor space. The flat is leasehold with a very long lease (999 years from 30.09.1983) and a share of the freehold. Service charge is £2,040 per annum, which covers ground rent and building insurance.
Buyers should note this is a period conversion that will need some updating. The kitchen is dated and ready for modernisation, and the building’s original granite walls are likely uninsulated (assumed), which could affect heating costs. There are signs the property may need general TLC to address potential damp in places typical of older conversions. Broadband is average locally; mobile signal is excellent.
Positioned next to North Street car park and a short walk from Totnes High Street, the flat offers easy access to shops, cafes and transport. It’s a compact, characterful home with strong potential for someone willing to refresh the interior and benefit from central Totnes living.
1 bedroom flat for sale in The Plains, Totnes, Devon, TQ9 — £180,000 • 1 bed • 1 bath • 544 ft²
1 bedroom apartment for sale in Rotherfold, Totnes, TQ9 — £200,000 • 1 bed • 1 bath • 527 ft²
2 bedroom apartment for sale in 88 High Street, Totnes, TQ9 — £260,000 • 2 bed • 1 bath • 1053 ft²
1 bedroom apartment for sale in New Walk, Totnes, TQ9 — £160,000 • 1 bed • 1 bath • 581 ft²
3 bedroom flat for sale in Plymouth Road, Totnes, Devon, TQ9 — £210,000 • 3 bed • 1 bath • 1132 ft²
Studio flat for sale in High Street, Totnes, TQ9 — £99,000 • 1 bed • 1 bath • 1766 ft²






























































































