Rare loch-front detached cottage with modern extension, boat access and multi-generational potential.
Loch-front location with private boat launch onto Loch Fyne
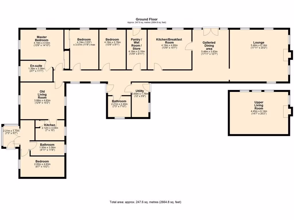
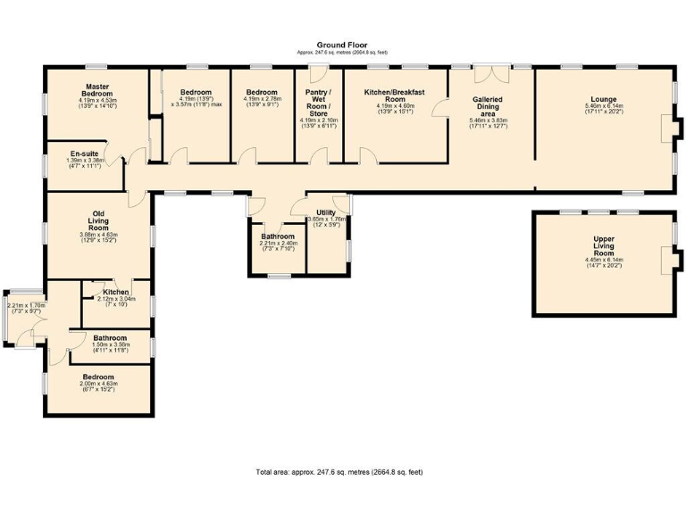
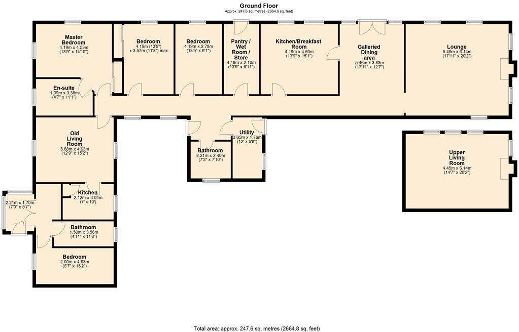
The Old Cottage is a rare loch-front detached bungalow combining 18th‑century stone character with a substantial modern extension. Set on a large private plot with direct boat launch to Loch Fyne, the house offers generous family accommodation across about 2,664 sq ft, including three double bedrooms in the main house and a self-contained original cottage section.
Practical, energy-saving features include an air source heat pump and solar water heating, helping reduce running costs in a rural setting. The elevated living area opens onto new composite decking with panoramic loch views; a large kitchen, pantry, utility room and three bathrooms support comfortable day-to-day family life. Outbuildings and a poly-tunnel add useful storage and growing space.
The original 18th‑century cottage wing requires renovation or updating but provides clear potential for multi‑generational use or a holiday let subject to permissions. Broadband and mobile signal are described as average; the property sits in a very deprived wider area and tenure is not specified, which should be confirmed before exchange.
This is a distinctive rural home with exceptional waterfront access and substantial redevelopment potential. Buyers should note the closing date for offers and factor renovation and planning permissions into their considerations.
 2 bedroom detached house for sale in Kilmory, Lochgilphead, PA31 — £325,000 • 2 bed • 1 bath • 1092 ft²
 2 bedroom detached house for sale in Kilmory, Lochgilphead, PA31 — £325,000 • 2 bed • 1 bath • 1092 ft² 3 bedroom semi-detached house for sale in Hill Cottage, Erines, By Tarbert, Argyll, PA29 — £235,000 • 3 bed • 2 bath • 1007 ft²
 3 bedroom semi-detached house for sale in Hill Cottage, Erines, By Tarbert, Argyll, PA29 — £235,000 • 3 bed • 2 bath • 1007 ft² 4 bedroom detached house for sale in Woodhouse, Minard, Inveraray, Argyll and Bute, PA32 — £750,000 • 4 bed • 3 bath • 2168 ft²
 4 bedroom detached house for sale in Woodhouse, Minard, Inveraray, Argyll and Bute, PA32 — £750,000 • 4 bed • 3 bath • 2168 ft² 3 bedroom detached house for sale in Merrylee Cottage, Minard, by Inveraray, Argyll, PA32 — £275,000 • 3 bed • 2 bath • 1011 ft²
 3 bedroom detached house for sale in Merrylee Cottage, Minard, by Inveraray, Argyll, PA32 — £275,000 • 3 bed • 2 bath • 1011 ft² 3 bedroom detached house for sale in Ard-Na-Dail, Lochgair, Lochgilphead, PA31 8SB, PA31 — £259,000 • 3 bed • 2 bath • 1291 ft²
 3 bedroom detached house for sale in Ard-Na-Dail, Lochgair, Lochgilphead, PA31 8SB, PA31 — £259,000 • 3 bed • 2 bath • 1291 ft² 1 bedroom detached house for sale in Kilmichael Inverlussa, Achnamara, Lochgilphead, Argyll and Bute, PA31 — £125,000 • 1 bed • 1 bath • 1283 ft²
 1 bedroom detached house for sale in Kilmichael Inverlussa, Achnamara, Lochgilphead, Argyll and Bute, PA31 — £125,000 • 1 bed • 1 bath • 1283 ft²


























































































































