Private countryside bungalow with annexe potential and lochside access.
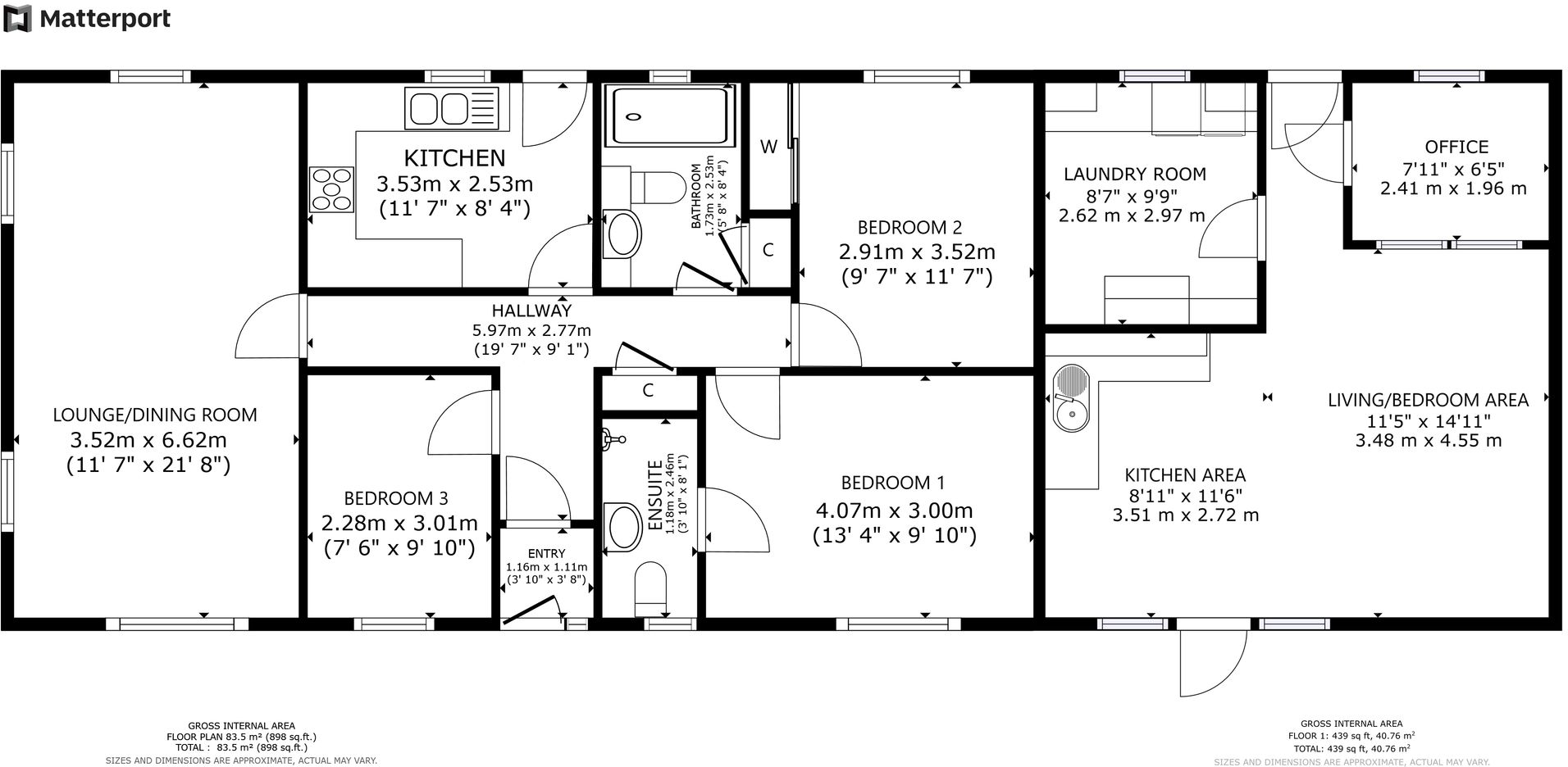
- Large single‑storey detached bungalow, all on one level
- Converted garage/annexe (40m²) with services installed
- Stylish refitted kitchen and modern shower rooms
- Decked terrace with electric hot tub included
- Off‑street mono‑block parking for several cars
- Backing onto countryside with private outlook
- Average mobile and broadband speeds
- Council tax above average; rural area classification
Spacious single‑level living in a modern, well-presented detached bungalow tucked into a quiet cul‑de‑sac backing onto open countryside. The house sits within a short two‑minute walk of Loch Fyne and includes a sizeable converted garage/annexe with plumbing and electrics already installed — ideal for a granny flat, guest suite or holiday let.
The interior has been recently refurbished with a stylish fitted kitchen, refitted main shower room and a luxuriously appointed ensuite to the master bedroom. A bright, open plan lounge/diner with large picture windows and a central multi‑fuel stove takes advantage of countryside views. Oil central heating, double glazing and remote wifi control add modern comforts.
Outside, mono‑block parking for several cars, front lawning and a large side garden with vegetable plots, stores and space for boat or caravan storage deliver practical rural living. A large decked terrace with an electric hot tub (included) overlooks the fields — an attractive entertaining spot.
Practical points to note: broadband and mobile signals are average and council tax is above average. The property is in a rural, older farming community and located in an area classed as very deprived, which may affect local services and resale dynamics. No flood risk is recorded.
2 bedroom detached bungalow for sale in Pine Lodge, Ford, by Lochgilphead, Argyll, PA31 — £250,000 • 2 bed • 1 bath • 732 ft²
3 bedroom detached bungalow for sale in Grianan, Minard, By Inveraray, Argyll, PA32 — £290,000 • 3 bed • 2 bath • 1023 ft²
3 bedroom detached bungalow for sale in 3 Fernoch Drive, Lochgilphead, Argyll, PA31 — £230,000 • 3 bed • 2 bath • 1162 ft²
3 bedroom detached house for sale in Fasgadh, 29 Fernoch Drive, Lochgilphead, Argyll, PA31 — £215,000 • 3 bed • 2 bath
3 bedroom apartment for sale in 2 Ardenlea, Glenburn Road, Ardrishaig, Lochgilphead, Argyll and Bute, PA30 — £115,000 • 3 bed • 1 bath • 761 ft²
3 bedroom detached bungalow for sale in 15 Fernoch Crescent, Lochgilphead, Argyll, PA31 — £285,000 • 3 bed • 2 bath • 1280 ft²


























































































