**Standout Features:**
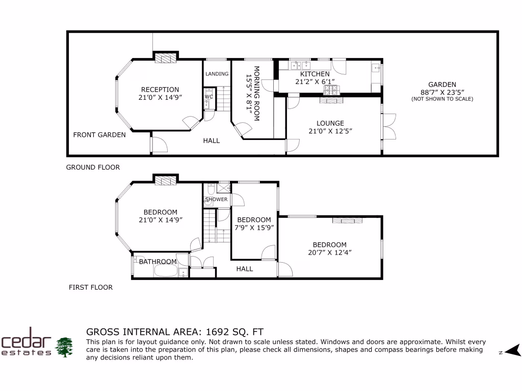
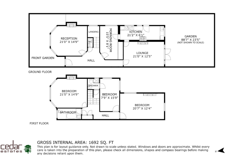
- Spacious semi-detached home with 3 bedrooms and 2 bathrooms  
- Original Victorian charm with decorative features and high ceilings  
- Potential for extension and renovation (subject to planning permission)  
- Chain-free sale with gas central heating  
- Large garden and three generously sized reception rooms  
**Concise Summary:**
Discover a unique opportunity in this charming semi-detached home located on the popular Cranhurst Road. Boasting three spacious bedrooms, two bathrooms, and three elegant reception rooms adorned with original Victorian features such as decorative fireplaces and ornate cornicing, this property offers the potential to be transformed into your dream family residence. The heart of the home is enhanced by a modern kitchen extension that invites natural light, creating a warm, open atmosphere. 
While the property requires complete refurbishment and modernization, its generous footprint of 1,692 sq. ft. and high ceilings make it an excellent canvas for bespoke renovations tailored to your taste. The sizeable garden adds further appeal for family living or outdoor entertaining. With no chain and flexible potential for expansion into the loft or rear (STPP), this residence is perfect for those eager to create their ideal space in a thriving inner-city area. 
Given the competitive market, early viewing is highly recommended to explore the incredible possibilities this home presents. Enjoy the proximity to reputable schools and excellent local amenities, making it an ideal investment for families and savvy buyers alike.
 4 bedroom semi-detached house for sale in Cranhurst Road, London NW2 — £1,250,000 • 4 bed • 2 bath • 1987 ft²
 4 bedroom semi-detached house for sale in Cranhurst Road, London NW2 — £1,250,000 • 4 bed • 2 bath • 1987 ft² 7 bedroom semi-detached house for sale in Fordwych Road, Cricklewood, NW2 — £1,500,000 • 7 bed • 3 bath • 2480 ft²
 7 bedroom semi-detached house for sale in Fordwych Road, Cricklewood, NW2 — £1,500,000 • 7 bed • 3 bath • 2480 ft² 5 bedroom house for sale in Anson Road , London , NW2 — £1,500,000 • 5 bed • 3 bath • 2540 ft²
 5 bedroom house for sale in Anson Road , London , NW2 — £1,500,000 • 5 bed • 3 bath • 2540 ft² 5 bedroom semi-detached house for sale in Anson Road, London, NW2 — £1,825,000 • 5 bed • 2 bath • 2862 ft²
 5 bedroom semi-detached house for sale in Anson Road, London, NW2 — £1,825,000 • 5 bed • 2 bath • 2862 ft² 6 bedroom semi-detached house for sale in Brondesbury Park, London NW2 — £1,699,950 • 6 bed • 3 bath • 2669 ft²
 6 bedroom semi-detached house for sale in Brondesbury Park, London NW2 — £1,699,950 • 6 bed • 3 bath • 2669 ft² 5 bedroom semi-detached house for sale in Greenfield Gardens, London, NW2 — £900,000 • 5 bed • 2 bath • 1701 ft²
 5 bedroom semi-detached house for sale in Greenfield Gardens, London, NW2 — £900,000 • 5 bed • 2 bath • 1701 ft²














































































