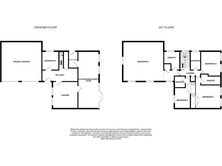
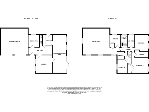
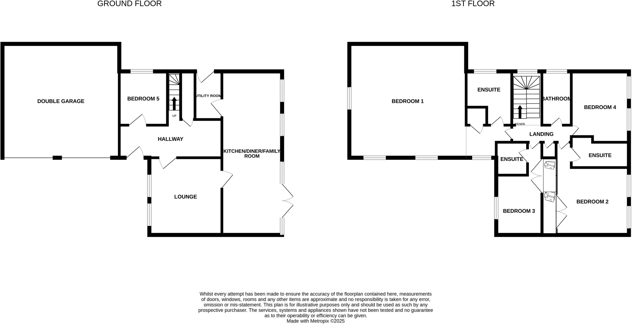
Five bedrooms plus flexible ground-floor study/bedroom five
A spacious, well-presented detached family home set at the end of a quiet cul-de-sac in Lostock Gralam. The house offers flexible living with a generous lounge, large open-plan kitchen/diner, ground-floor study/bedroom five and a useful utility and guest WC—well suited to families or home-workers.
Upstairs the principal bedroom includes a dressing area and en-suite; three further bedrooms include two more en-suites, plus a family bathroom. The property benefits from a double garage, driveway parking and an enclosed rear garden that’s larger than average for the development. Solar panels are installed and registered on the DNO, contributing to energy efficiency.
Location is commuter-friendly with quick access to the A556 and good links to Northwich, Manchester and Chester; Manchester Airport is also within convenient reach. Local shops, cafés and schools rated Good are within walking distance, making day-to-day life straightforward for families.
Notable practical points: the property is leasehold (circa 144 years remaining) with an annual ground rent of £325 and sits in council tax band F (expensive). The wider area is classified as ageing urban communities, which may influence resale or buyer mix. Overall this is a generously proportioned family home offering strong convenience and plenty of flexible living space, but buyers should factor in leasehold costs and council tax when budgeting.
4 bedroom detached house for sale in Wells Avenue, Lostock Gralam, CW9 — £390,000 • 4 bed • 2 bath • 1444 ft²
3 bedroom detached house for sale in Thornley Green, Lostock Gralam, Northwich, Cheshire, CW9 — £300,000 • 3 bed • 2 bath • 991 ft²
3 bedroom detached house for sale in Immaculately styled detached property in prized development, CW9 — £315,000 • 3 bed • 2 bath • 1062 ft²
3 bedroom end of terrace house for sale in Langford Road, Lostock Gralam, Northwich, CW9 — £295,000 • 3 bed • 2 bath • 1249 ft²
3 bedroom detached house for sale in Stubbs Lane, Lostock Gralam, CW9 7PU, CW9 — £325,000 • 3 bed • 2 bath • 1223 ft²
4 bedroom detached house for sale in Cedar Close, Lostock Gralam, CW9 — £350,000 • 4 bed • 2 bath • 1394 ft²










































































































