Quiet village living close to coast and Holt, ideal for families.
Chain-free three-bedroom home built 2014 with quality finishes
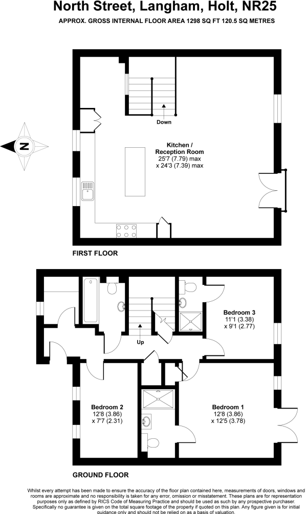
Open-plan kitchen/dining/family room with high ceilings and natural light
Two double bedrooms have en-suite shower rooms; third bedroom available
Private sunny enclosed garden with paved terrace and storage shed
Two allocated parking spaces plus guest parking included
Ultrafast broadband and low flood and crime risk
Conservation area location with restrictive covenants on use
Indoor mobile coverage limited for some networks; small plot size
This well-presented three-bedroom end-terrace sits within the grounds of the Harper Hotel development, built in 2014 by reputable developers. The house offers a bright, high-ceiling open-plan kitchen/dining/family room on the first floor, two double bedrooms with en‑suites, a ground-floor utility and a small study — a practical layout for family life and flexible working.
Quality details include oak and stone floors, a bespoke Rangemaster kitchen and French doors opening onto a sunny, enclosed rear garden. Two allocated parking spaces plus guest bays add convenience for households with multiple vehicles. The property is offered chain-free and available furnished by separate negotiation.
Location is a major draw: Langham is a conservation village two miles from Blakeney and close to Holt, with good primary schools nearby and direct access to coast and AONB countryside activities. Broadband is ultrafast and crime and flood risk are very low, supporting a quiet rural lifestyle.
Material points to note: the home sits in a conservation area and is subject to covenants restricting use; these may limit alterations or holiday lettings. Indoor mobile coverage is limited for some networks, and the plot is modest in size. The vendor is an associate of a local agent — this relationship is declared for transparency.
3 bedroom terraced house for sale in Langham, Norfolk, NR25 — £550,000 • 3 bed • 3 bath • 1295 ft²
3 bedroom detached house for sale in The Cornfield, Langham, Holt, NR25 — £325,000 • 3 bed • 1 bath • 734 ft²
3 bedroom detached house for sale in St. Marys Lane, Langham, Holt, Norfolk, NR25 — £635,000 • 3 bed • 2 bath • 1633 ft²
2 bedroom detached house for sale in Marryats Loke, NR25 — £400,000 • 2 bed • 2 bath • 1211 ft²
3 bedroom detached house for sale in Briningham, Norfolk, NR24 — £400,000 • 3 bed • 2 bath • 1001 ft²
4 bedroom detached house for sale in Blakeney, Norfolk, NR25 — £1,450,000 • 4 bed • 3 bath • 1977 ft²






















































































