Bright layout with garden access and nearby lake walks.
New-build four-bedroom detached with energy-efficient design
Set in the popular Priorslee development, this new-build four-bedroom detached Fordwood offers flexible family living across two floors. The ground floor features a 17ft lounge and an open-plan kitchen/diner, both with French doors to the garden, plus an adjoining family room with a feature bay — ideal for a playroom or study corner. An integrated laundry room and downstairs WC add practical convenience for busy households.
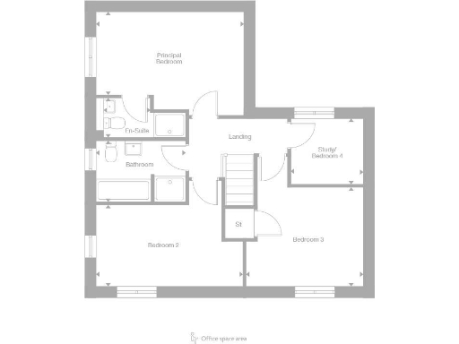
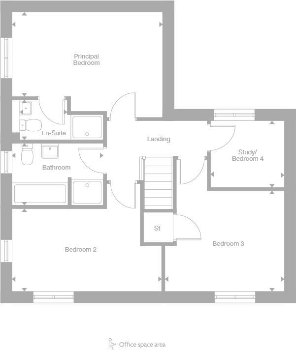
Upstairs provides a principal bedroom with en-suite, two generous bedrooms and a fourth room suited to a home office or small bedroom. The family bathroom includes a separate shower cubicle. Outside there is a single garage and decent gardens, and the development sits within walking distance of Priorslee Lake and local cycle routes, with quick M54 access for Wolverhampton and Birmingham commutes.
The home follows energy-efficient new-build standards and allows personalisation of kitchen and flooring at purchase. Service charges apply (£150/year) and there is a reservation fee noted; the property sits within an area described as very deprived, so buyers should consider wider local socioeconomic factors. Internal floor area is modest (approximately 862 sq ft), so space-conscious families should check room dimensions against needs.
Overall, this is a practical, low-maintenance new home for a family seeking modern layout and good transport links, with scope to personalise finishes. Inspect to confirm storage, parking layout and how the internal space fits your day-to-day requirements.
4 bedroom detached house for sale in Off Castle Farm Way, Priorslee,
Telford,
TF2 5AB, TF2 — £412,500 • 4 bed • 1 bath • 841 ft²
4 bedroom detached house for sale in Off Castle Farm Way, Priorslee,
Telford,
TF2 5AB, TF2 — £397,500 • 4 bed • 1 bath • 816 ft²
4 bedroom detached house for sale in Off Castle Farm Way, Priorslee,
Telford,
TF2 5AB, TF2 — £389,000 • 4 bed • 1 bath • 921 ft²
4 bedroom detached house for sale in Off Castle Farm Way, Priorslee,
Telford,
TF2 5AB, TF2 — £442,000 • 4 bed • 1 bath • 755 ft²
3 bedroom detached house for sale in Off Castle Farm Way, Priorslee,
Telford,
TF2 5AB, TF2 — £299,000 • 3 bed • 1 bath • 624 ft²
3 bedroom detached house for sale in Off Castle Farm Way, Priorslee,
Telford,
TF2 5AB, TF2 — £315,000 • 3 bed • 1 bath • 681 ft²






















































































































