LA14 5AS - 2 bedroom terraced house for sale in Westmorland Street, Ba…

View on Property Piper

2 bedroom terraced house for sale in Westmorland Street, Barrow-in-furness, LA14 5AS, LA14

Summary - 70 WESTMORLAND STREET, BARROW-IN-FURNESS LA14 5AS

2 bed 1 bath Terraced

Chain-free fixer with investment potential in a well-served residential area.
Freehold Victorian mid-terrace, chain free
A compact two-bedroom Victorian mid-terrace offered freehold and chain free — a straightforward renovation project for an investor or buyer seeking value. The house benefits from gas central heating, double glazing and an enclosed galley-style yard, giving a ready canvas for updating and modernising.

Set in an established residential area with nearby shops, bus routes and local amenities, the property sits within a neighbourhood served by several Good-rated primary and secondary schools. Broadband and mobile signal are reported as strong, supporting rental demand or modern household needs.

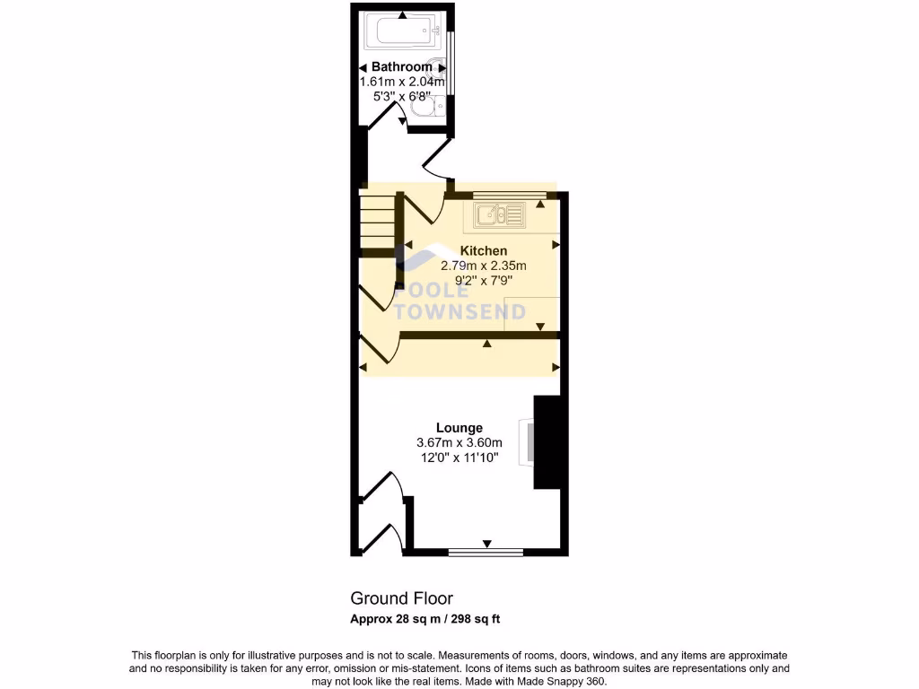
The layout is practical: lounge to the front with a traditional fireplace, kitchen with under-stairs storage, ground-floor bathroom and two first-floor bedrooms. The building dates from 1900–1929 with cavity walls (assumed uninsulated) — improvement work (insulation, cosmetic upgrades and modern finishes) will increase comfort and value.

Material points to note: the house is small (approx. 545 sq ft) on a very small plot and requires renovation throughout. There is no garage and the local area scores as deprived, which may affect rental levels and resale values. Buyers should budget for typical Victorian-terrace upgrades and confirm specific works after inspection.

Property Details

Image Descriptions

Floorplan Description

Rooms

Textual Property Features

Target Audience

AI Tags

Detected Visual Features

EPC Details

Nearby Schools

Nearest Bars And Restaurants

,,,,}

Nearest General Shops

,,}

Nearest Grocery shops

,,}

Nearest Supermarkets

,,}

Nearest Religious buildings

,,}

Nearest Medical buildings

,,,}

Nearest Leisure Facilities

,,,,}

Nearest Tourist attractions

,,}

Nearest Train stations

,,,,}

Nearest Bus stations and stops

,,,,}

Nearest Hotels

,,}

Tags

Local Market Stats

AirBnB Data

Similar Properties

Meta

High Res Images

Compatible Images

Low res Images

Thumbnails

Raw Images

High Res Floorplan Images

Compatible Floorplan Images

Low res Floorplan Images

FloorplanImages Thumbnail

Raw Floorplan Images