**Standout Features:**
- Traditional mid-terraced home with freehold tenure
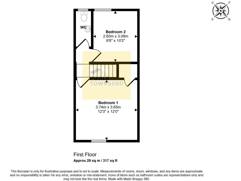
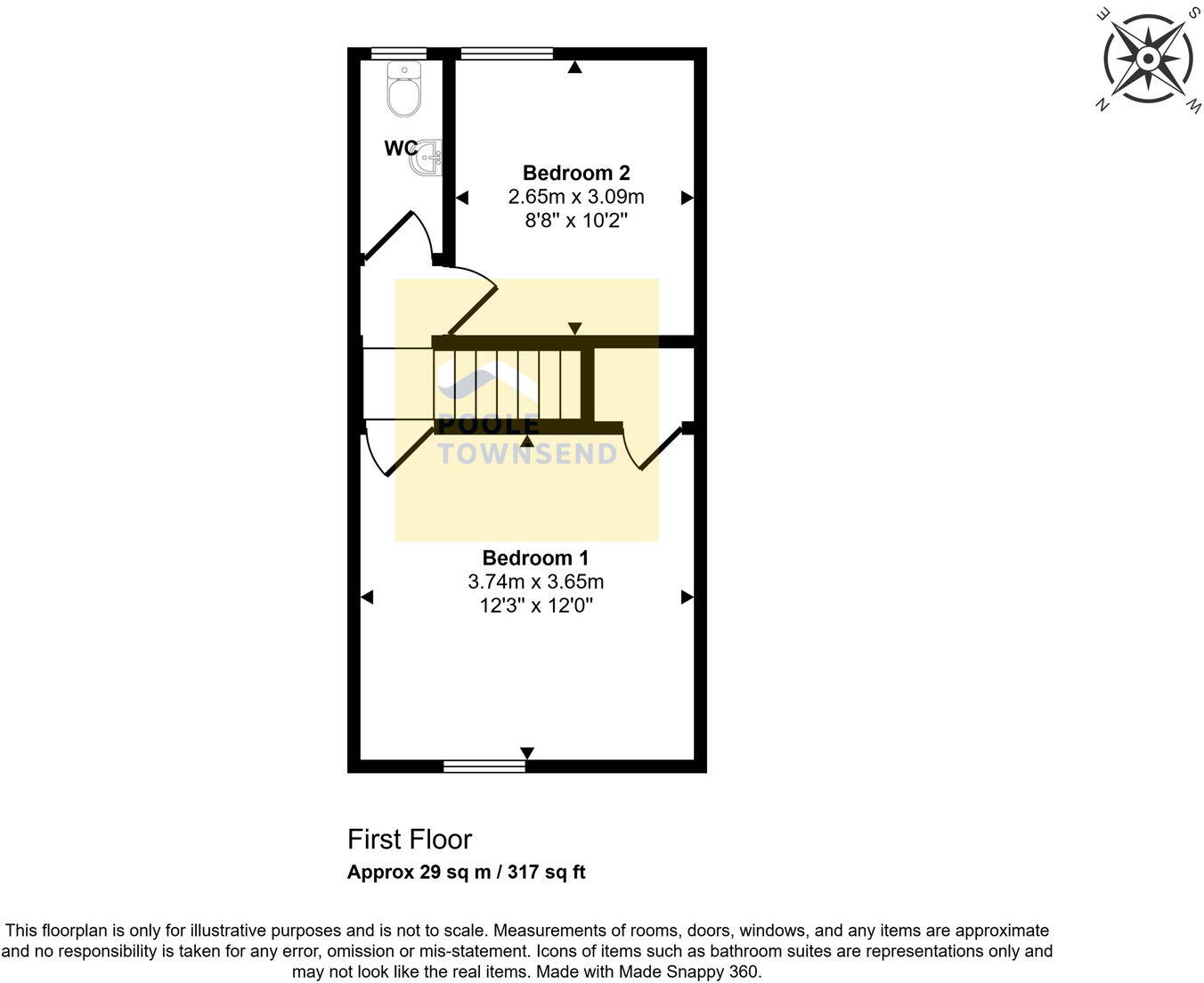
- 2 bedrooms and 1 ground floor wet room with shower
- Separate WC for added convenience
- Enclosed rear yard with two outbuildings
- Double glazed throughout for energy efficiency
- Electric night storage heaters
- Affordable Council Tax Band A
- Chain-free sale for ease of purchase
- Ideal for first-time buyers or as an investment property with renovation potential
This charming mid-terraced home offers a fantastic opportunity for first-time buyers or investors looking to expand their portfolio. Priced competitively, the property features a cozy lounge with a traditional fireplace, a practical kitchen, and a ground floor wet room, making it a suitable canvas for modernization. The upstairs leads to two spacious bedrooms, providing ample room for family living or rental potential.
The enclosed rear yard, complete with two outbuildings, offers outdoor space that's perfect for storing equipment or enjoying a small garden retreat. With no upward chain, this property is ready for you to put your personal stamp on, making it an ideal choice in a family-friendly community close to parks, schools, and local amenities. Act quickly—opportunities like this won't last long!
2 bedroom terraced house for sale in Poole Street, BARROW-IN-FURNESS, LA14 5DB, LA14 — £75,000 • 2 bed • 1 bath • 569 ft²
2 bedroom terraced house for sale in Queen Street, Barrow-in-furness, LA14 5NY, LA14 — £99,950 • 2 bed • 1 bath • 713 ft²
2 bedroom terraced house for sale in Smeaton Street, Barrow-in-furness, LA14 2EB, LA14 — £79,950 • 2 bed • 1 bath • 926 ft²
2 bedroom end of terrace house for sale in Lancaster Street, Barrow-in-furness, LA14 5JB, LA14 — £85,000 • 2 bed • 1 bath • 701 ft²
2 bedroom terraced house for sale in Goldsmith Street, Barrow-In-Furness, LA14 — £99,950 • 2 bed • 1 bath • 743 ft²
2 bedroom terraced house for sale in Westmorland Street, Barrow-In-Furness, LA14 — £95,000 • 2 bed • 1 bath • 539 ft²


























































