**Standout Features:**
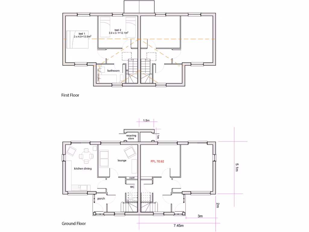
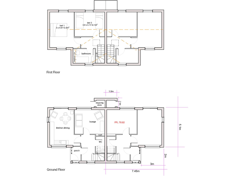
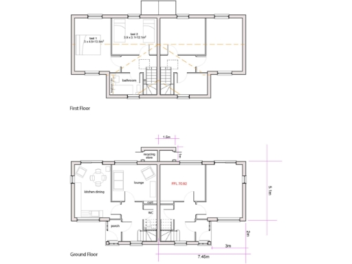
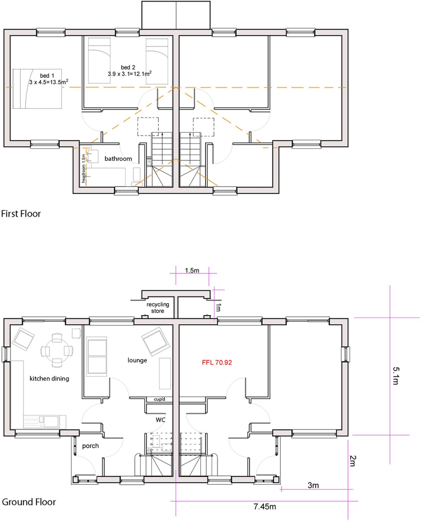
- **Outline Planning Permission** for four new homes (2x 3-bedroom and 2x 2-bedroom)
- **Quiet Village Setting** with breathtaking countryside views
- **Generous Garden Spaces** and parking allocated for each home
- **Near Hatherleigh and Okehampton** with easy access to amenities
- **Freehold Tenure** and chain-free for quicker completion
- **Potential Rental Appeal** for developers and investors
This prime development opportunity in the tranquil village of Monkokehampton offers a rare chance for small developers or self-builders to craft four new homes in a beautiful rural setting. With outline planning permission already secured for two spacious three-bedroom houses and two cozy two-bedroom homes, the groundwork is laid for modern family living amidst picturesque countryside vistas. Each plot features ample garden space and designated parking, ideal for attractive family-friendly designs.
While the land offers significant potential, prospective buyers should be aware of a few considerations, including the requirement for a retaining wall between the plots and an access strip to a neighboring garden. The neighboring area offers solid community engagement with local amenities just a short drive away in Hatherleigh and Okehampton. Given the area's growing appeal and rural charm, this project not only promises immediate development potential but also represents a fantastic investment opportunity that’s unlikely to linger on the market for long. Don't miss your chance to create homes that embrace the essence of Devon living!
Plot for sale in Okehampton, North Street, EX20 1AR - Site For 19 Dwellings, EX20 — £800,000 • 1 bed • 1 bath
Land for sale in Zeal Monachorum, Crediton, Devon, EX17 — £450,000 • 1 bed • 1 bath • 17000 ft²
Land for sale in Park Road, Hatherleigh, Devon, EX20 — £160,000 • 1 bed • 1 bath • 2000 ft²
Plot for sale in Petrockstowe, Okehampton, EX20 3HQ, EX20 — £100,000 • 4 bed • 4 bath • 2200 ft²
Land for sale in Letherens Meadow, North Tawton, Okehampton, EX20 — £140,000 • 1 bed • 1 bath • 629 ft²
Property for sale in St. Giles, Torrington, Devon, EX38 — £450,000 • 1 bed • 1 bath • 1204 ft²


































