Affordable, move-in-ready one-bedroom ideal for first-time buyers or investors.
Newly renovated, open-plan living and modern kitchen
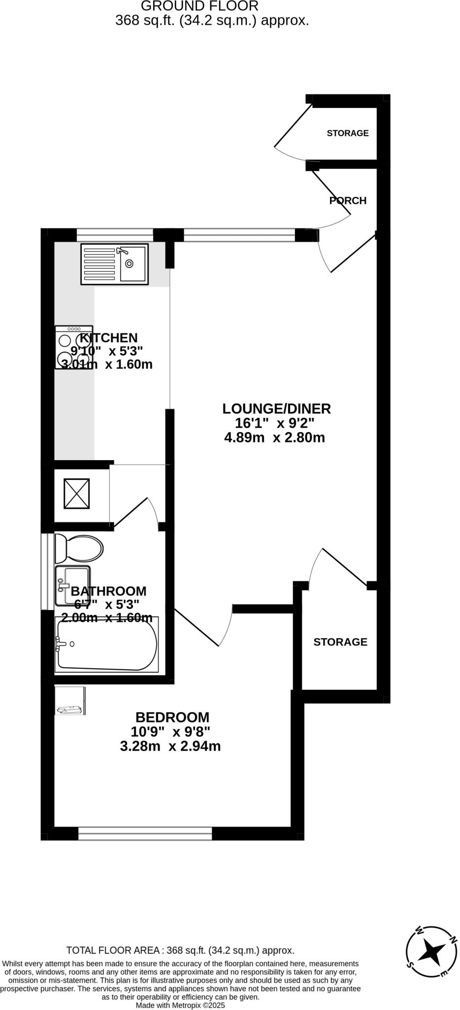
Compact 1-bed ground-floor flat — approx. 368 sq ft
Long lease (approx. 950 years) and very low council tax
Off-street parking included
Energy-efficient upgrades and double glazing present
Mains gas boiler and radiator heating in place
Area classed as very deprived with relatively high crime levels
Property likely lacks wall insulation; double-glazing install date unknown
This newly renovated one-bedroom ground-floor apartment offers a compact, move-in-ready home in Wavertree, suitable for first-time buyers or buy-to-let investors. The open-plan living area and modern kitchen create an airy feel despite the modest overall size, and off-street parking is a practical bonus in a central location with excellent public transport links.
The property benefits from recent energy-efficient upgrades, double glazing and a modern heating system (mains gas boiler and radiators). The long lease (approx. 950 years) and very low council tax reduce ongoing costs and add tenure security. Nearby amenities include shops, cafes, parks and good primary schools rated Good by Ofsted.
Important drawbacks are factual and should be considered: the apartment is small at about 368 sq ft, and the immediate area is classified as very deprived with relatively high local crime rates. The building appears to have cavity walls with no installed insulation (assumed), and double-glazing install date is unknown, which could affect future heating costs. Buyers should also note the ground-floor position and semi-detached setting when assessing security and noise.
Overall, this flat suits someone seeking an affordable, low-maintenance first home or a compact investment with solid rental demand, provided buyers are comfortable with the compact footprint and urban location.
1 bedroom flat for sale in Eaton Road, West Derby, Liverpool, L12 — £100,000 • 1 bed • 1 bath • 420 ft²
2 bedroom apartment for sale in Burroughs Gardens, Liverpool, Merseyside, L3 — £110,000 • 2 bed • 1 bath • 539 ft²
1 bedroom apartment for sale in 9 Hatton Garden, Liverpool, Merseyside, L3 — £95,000 • 1 bed • 1 bath • 484 ft²
1 bedroom flat for sale in College Road, Crosby, Merseyside, L23 — £125,000 • 1 bed • 1 bath • 403 ft²
1 bedroom apartment for sale in Gilmartin Grove, Liverpool, Merseyside, L6 — £85,000 • 1 bed • 1 bath
2 bedroom flat for sale in Windermere Terrace, Liverpool, Merseyside, L8 — £199,500 • 2 bed • 1 bath • 623 ft²










































