Central first-floor flat near Fleet station — sold via online auction, no onward chain..
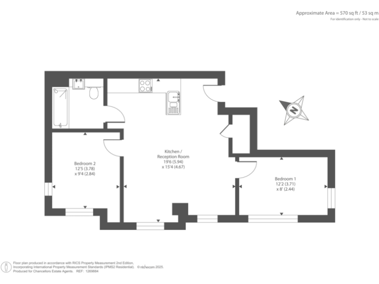
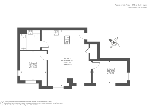
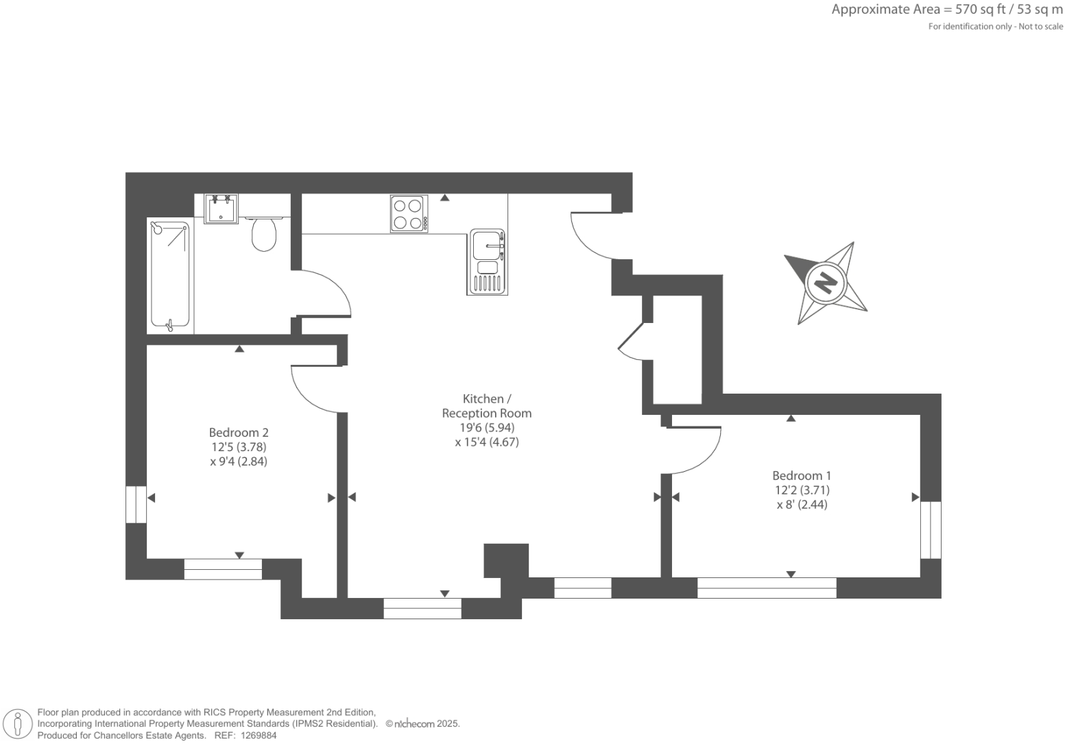
Two double bedrooms in compact 570 sqft layout
A compact two-bedroom first-floor apartment in Fleet, offered with no onward chain and immediate exchange available via online auction. The flat has an integrated kitchen, bright open-plan living with wood flooring and two double bedrooms across 570 sqft — a practical layout for first-time buyers or buy-to-let landlords seeking central convenience.
The location is a key draw: short walk to Fleet town centre and the station, with plentiful local amenities and highly rated nearby primary schools. The home includes allocated off-street parking and visitor spaces, helpful in a town-centre setting.
Important sale terms and costs are material to any purchase decision. This lot is sold at auction with a 5% non-refundable deposit on exchange and a non-refundable reservation fee of 3.75% + VAT (minimum £6,000 inc. VAT). Contracts exchange immediately on acceptance and completion is expected within 28 days. Buyers must review the legal pack and allow for auction-specific timelines and verification procedures.
Practical considerations: heating is by electric room heaters rather than gas central heating, the property is relatively small at 570 sqft, and the local area reports higher crime levels. The lease has approximately 117 years remaining (125-year term from 2017). These factors affect running costs, mortgageability, and long-term plans — factor them into budgets and lending checks before bidding.
2 bedroom apartment for sale in Principle House, 115-123 Fleet Road, Fleet, GU51 3PD, GU51 — £220,000 • 2 bed • 1 bath • 570 ft²
2 bedroom apartment for sale in Old Dairy Close, Fleet, GU51 — £235,000 • 2 bed • 1 bath • 646 ft²
2 bedroom flat for sale in Richmond Court. Fleet Road, Fleet, GU51 — £205,000 • 2 bed • 1 bath • 472 ft²
2 bedroom apartment for sale in Fleet Road, Fleet, GU51 — £225,000 • 2 bed • 2 bath • 815 ft²
1 bedroom apartment for sale in Old Dairy Close, Fleet, Hampshire, GU51 — £180,000 • 1 bed • 1 bath • 540 ft²
1 bedroom apartment for sale in Fleet Road, Fleet, GU51 — £180,000 • 1 bed • 1 bath • 424 ft²


















































































