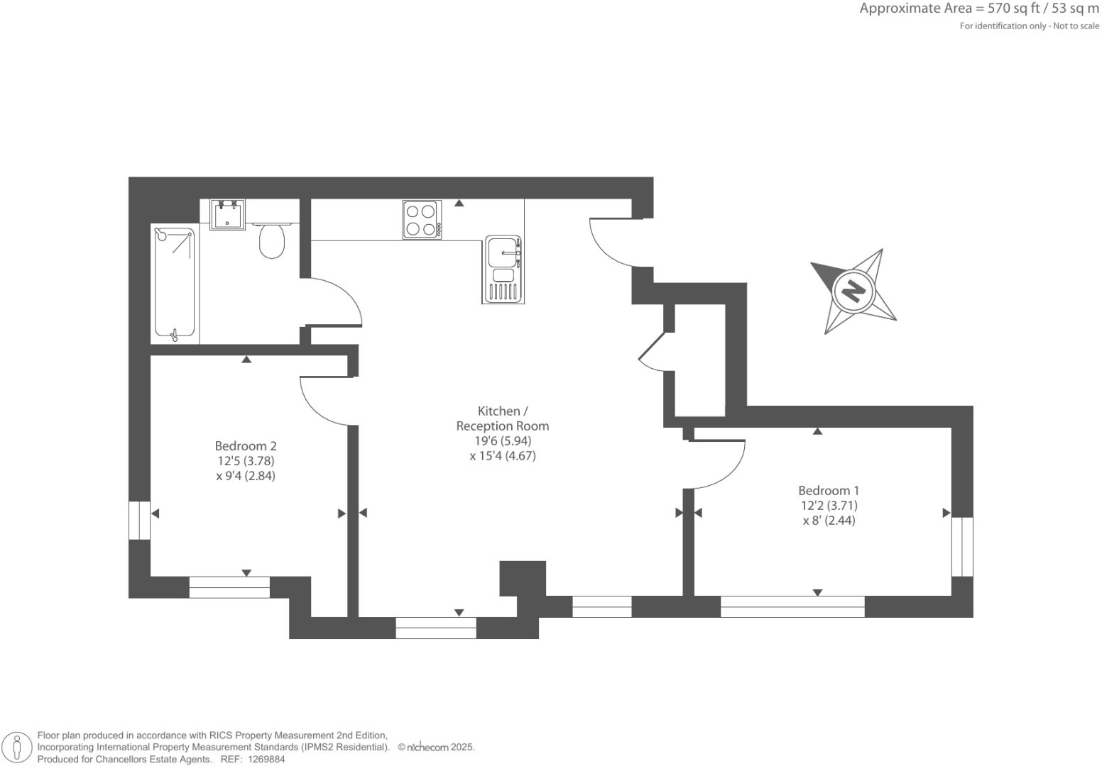
Compact, well-connected first-floor home ideal for first-time buyers.
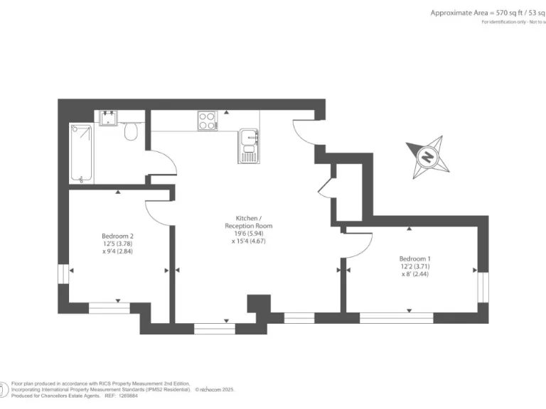
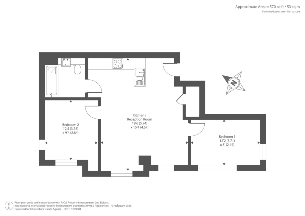
Two double bedrooms with bright open-plan living and integrated kitchen
Allocated off-street parking and visitor spaces included
First-floor apartment close to Fleet town centre and train station
Leasehold: 117 years remaining — buyer to confirm lease details
Annual service charge £1,476; ground rent £300 per year
Electric room heaters only — higher running costs likely than gas
Small overall size (approximately 570 sq ft) — compact layout
High local crime statistic noted despite affluent area classification
This first-floor, two-bedroom apartment in Principle House offers a compact, well-presented home in the heart of Fleet. An open-plan living area with wood flooring and an integrated kitchen makes efficient use of the 570 sq ft, and large windows keep rooms bright. The apartment includes allocated off-street parking and visitor spaces — a practical bonus for town-centre living.
The property is leasehold with 117 years remaining. Annual costs include a service charge of £1,476 and ground rent of £300. Heating is electric via room heaters, which may affect running costs compared with gas-heated homes. The apartment will be sold at auction via Secure Sale online bidding; terms and conditions apply.
Location is a clear strength: the flat sits close to Fleet town centre and the train station, with fast broadband and excellent mobile signal. Several well-rated primary and secondary schools lie within easy reach, and local amenities include shops, restaurants and leisure facilities. There is no flood risk recorded.
As a compact two-bedroom home, this apartment suits first-time buyers or buyers seeking a low-maintenance base in a well-connected town. Buyers should factor in the leasehold structure, ongoing service and ground rent costs, and electric heating when assessing affordability and long-term running expenses.
2 bedroom flat for sale in Fleet, Hampshire, GU51 — £200,000 • 2 bed • 1 bath • 570 ft²
1 bedroom apartment for sale in Fleet Road, Fleet, GU51 — £190,000 • 1 bed • 1 bath • 407 ft²
1 bedroom apartment for sale in Old Dairy Close, Fleet, Hampshire, GU51 — £180,000 • 1 bed • 1 bath • 540 ft²
1 bedroom apartment for sale in Brook House, Upper Street, Fleet, GU51 — £150,000 • 1 bed • 1 bath • 442 ft²
1 bedroom apartment for sale in Fleet Road, Fleet, Hampshire, GU51 — £190,000 • 1 bed • 1 bath • 407 ft²
1 bedroom flat for sale in Reading Road South, Fleet, Hampshire, GU52 — £200,000 • 1 bed • 1 bath • 639 ft²






















































































