Bright family living with village green outlook and modern sustainability features.
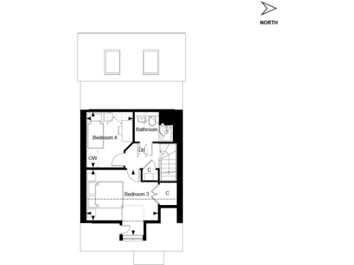
Four bedrooms across three floors with bathrooms on each level
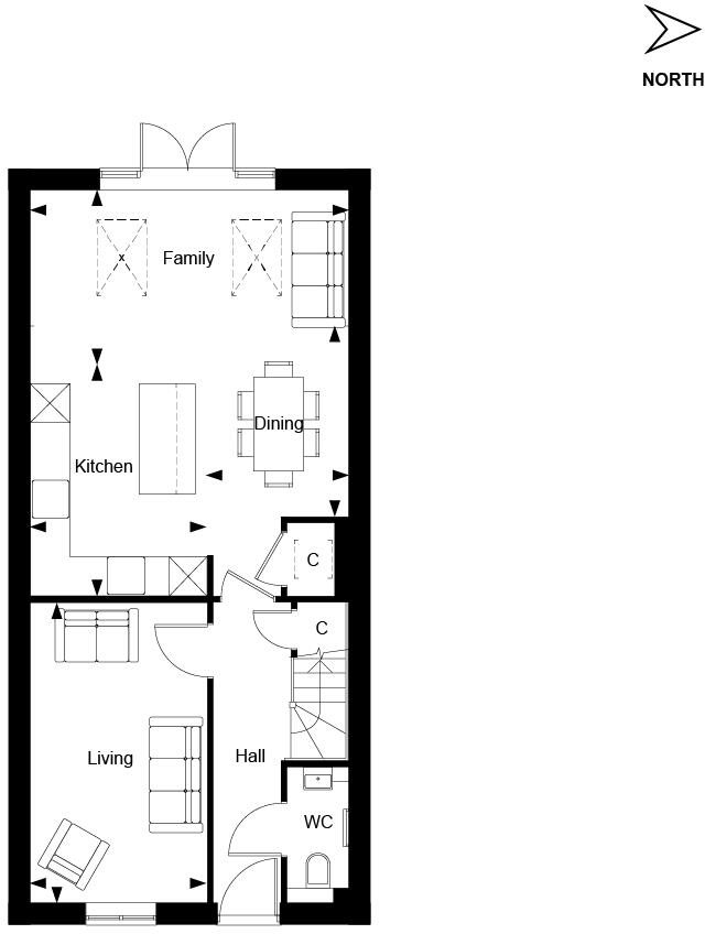
Designed across three floors, this four-bedroom semi-detached house places flexible family living at its heart. A bright, open-plan kitchen, dining and family space features skylights, integrated appliances (including wine cooler) and direct access to a landscaped rear garden and patio. A separate front living room provides a quieter sitting area for evenings.
The principal bedroom includes fitted wardrobes and a generous four-piece en suite; there are two further double bedrooms and a single room, with a bathroom on each floor for convenience. Practical extras include a garage, driveway parking, PV panels, an EV charging point and fitted flooring throughout. The home is finished with modern touches such as Amtico to the ground floor and LED downlights.
Set overlooking the new village green with a water feature, The Orchards offers communal amenities including a residents’ growing garden, community orchard and children’s play park — appealing for families who value outdoor space and neighbourly amenities. Located close to Cranleigh’s centre, countryside walks and well-regarded local schools, it balances rural character with everyday convenience.
Important facts: this is a new build estimated to complete between December and January 2026 and will be sold freehold. The purchase is covered by a 10-year LABC Buildmark Scheme and a two-year developer warranty. Note the area-level crime statistic is higher than average; prospective buyers should review local crime data and speak to the developer for plot-specific information and final specification.
4 bedroom semi-detached house for sale in The Mandarin, Leighwood Fields, Cranleigh, GU6 — £775,000 • 4 bed • 3 bath
3 bedroom terraced house for sale in The Quince, Leighwood Fields, Cranleigh, GU6 — £685,000 • 3 bed • 2 bath
3 bedroom terraced house for sale in The Russet, Leighwood Fields, Cranleigh, GU6 — £665,000 • 3 bed • 2 bath
3 bedroom semi-detached house for sale in Lorimer Avenue,
Alfold Road,
Cranleigh,
GU6 8WQ, GU6 — £680,000 • 3 bed • 2 bath • 1282 ft²
2 bedroom apartment for sale in Lorimer Avenue,
Alfold Road,
Cranleigh,
GU6 8WQ, GU6 — £700,000 • 2 bed • 2 bath • 996 ft²
3 bedroom terraced house for sale in 21 Lorimer Avenue, Cranleigh, GU6 8WQ, GU6 — £599,950 • 3 bed • 2 bath • 1268 ft²


















































































