**Standout Features:**
- Stunning sea views over Portmellon Bay and Chapel Point
- Generous plot with a large garden and spacious patio
- Detached bungalow with a single garage and driveway parking for up to two cars
- 2 double bedrooms, including a master with built-in wardrobes
- Located in a highly sought-after area with very low crime rates
**Potential Concerns:**
- Broadband speeds are currently slow
- The area is classified as deprived, which may impact amenities
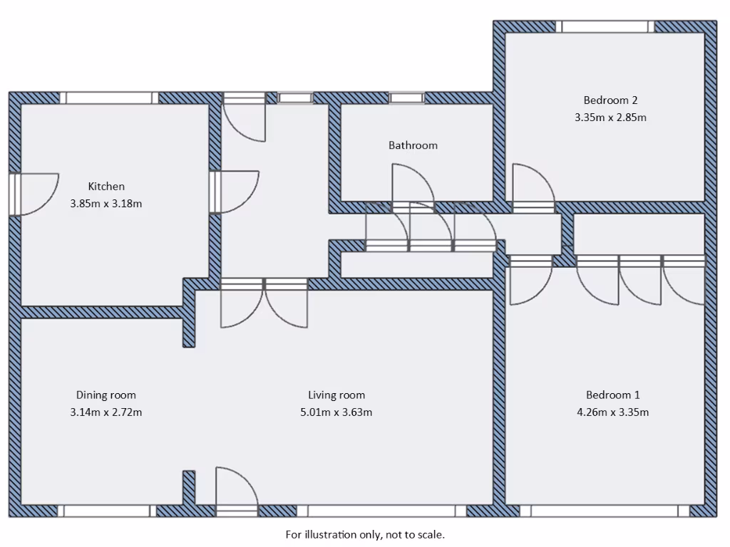
Nestled in the desirable Higher Well Park, this charming two-bedroom detached bungalow offers a fantastic blend of coastal living and modern comfort. Upon entry, you'll find a welcoming hall leading to a generously sized living space that boasts breathtaking views over Portmellon Bay, setting the perfect backdrop for relaxing or entertaining. The living area seamlessly flows into the dining space, both benefiting from panoramic countryside scenes. The kitchen is practical and bright, ideal for family breakfasts.
Both spacious bedrooms provide excellent storage with built-in wardrobes, while the family shower room features modern fixtures. Outside, a large garden with tiered lawns and a delightful patio beckons for al fresco gatherings, all with the serene sounds of the sea nearby. The property presents promising renovation potential, allowing you to personalize the space further, while the drive and garage provide ample parking and storage solutions.
This bungalow, with its idyllic sea views and peaceful setting, is a rare find in today’s market. It's ideally situated for families or anyone seeking a tranquil retreat, making it a must-see property that captures the essence of coastal living. Don't miss the chance to make it your own!
3 bedroom bungalow for sale in Lower Well Park, Mevagissey, Cornwall, PL26 — £475,000 • 3 bed • 1 bath • 985 ft²
3 bedroom bungalow for sale in Mevagissey, Cornwall, PL26 — £435,000 • 3 bed • 1 bath • 1098 ft²
2 bedroom bungalow for sale in Borlase Crescent, St. Austell, Cornwall, PL25 — £350,000 • 2 bed • 2 bath • 819 ft²
3 bedroom bungalow for sale in Portheast Way, Gorran Haven, St. Austell, Cornwall, PL26 — £550,000 • 3 bed • 2 bath • 1616 ft²
4 bedroom detached house for sale in Lower Well Park, Mevagissey, PL26 — £595,000 • 4 bed • 3 bath • 1763 ft²
4 bedroom detached house for sale in Tregoney Hill, Mevagissey, St. Austell, Cornwall, PL26 — £499,950 • 4 bed • 1 bath • 1035 ft²


































































