Approved single‑storey three‑bed build with stables and parking.
Approx. 0.5 acre plot with c.0.2 acre paddock
Planning granted for single‑storey 3‑bed dwelling (Ref SDNP/23/03975/FUL)
Garage/workshop with electric door, lighting and power included
Three‑bay stables with tack room — immediate equestrian use
Hardened entrance, large parking area and driveway on site
Mains water and electricity; private drainage (buyer to note)
CIL liable — buyers must confirm likely charge and liabilities
Very slow broadband; isolated location with average mobile signal
A rare development plot with approved planning for a single‑storey, three‑bedroom dwelling in the South Downs National Park. The site extends to about 0.5 acres and includes a hardened entrance, generous parking and a large garage/workshop with electric door — ideal for buyers wanting a turnkey building plot rather than starting from scratch.
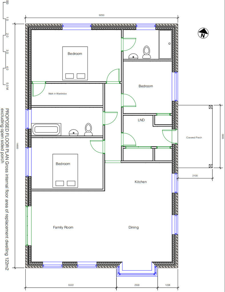
Existing equestrian and outbuilding facilities add flexibility: a three‑bay stable block with tack room and storage plus a c.0.2 acre paddock to the rear. The consent (SDNP/23/03975/FUL) covers a single‑storey home of approximately 1,313 sq ft (122 sqm) with open kitchen/dining space, separate sitting room, principal bedroom with en‑suite and two further bedrooms.
Practical considerations are clear and should be budgeted for: the site uses private drainage, CIL liability applies (buyer to confirm amount), and broadband speeds are very slow. The plot is freehold and connected to mains water and electricity, but the location is relatively isolated (hamlet/isolated dwelling) with average mobile signal and above‑average local crime levels.
This opportunity will suit buyers seeking a peaceful rural setting with equestrian potential, developers or owner‑occupiers wanting a bespoke single‑storey home within a protected landscape. The approved permission removes much of the upfront planning uncertainty, but purchasers should confirm CIL, servicing details and any conditions with the local planning authority prior to exchange.
3 bedroom detached bungalow for sale in West Chiltington Lane, Broadford Bridge, Billingshurst , RH14 — £950,000 • 3 bed • 2 bath • 3000 ft²
3 bedroom detached bungalow for sale in West Chiltington Lane, Broadford Bridge, Billingshurst , RH14 — £1,100,000 • 3 bed • 2 bath • 3000 ft²
House for sale in East Meon, Petersfield, Hampshire, GU32 — £1,750,000 • 1 bed • 1 bath • 4707 ft²
4 bedroom detached bungalow for sale in Park Lane, Cowplain, PO8 — £625,000 • 4 bed • 2 bath • 2524 ft²
2 bedroom detached bungalow for sale in Storrington, Pulborough, West Sussex, RH20 — £475,000 • 2 bed • 1 bath
Plot for sale in The Piggery Yard, Green Lane, Ham Road, Sidlesham, PO20 — £230,000 • 1 bed • 1 bath • 1883 ft²


















































