Move-in ready three-bed with garage and low-maintenance garden for family life.
- Recently renovated, move-in ready accommodation
- Spacious lounge open to dining area and garden room
- Well‑fitted modern kitchen with double doors to garden
- Ground-floor cloakroom with shower for practical living
- Double garage plus off‑road parking accessed to rear
- Small plot and modest front garden; low‑maintenance rear
- Medium flood risk — check mitigation and insurance
- Average broadband and mobile signal; built 1967–75
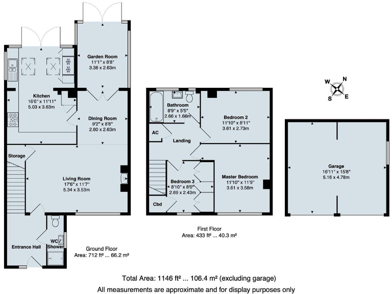
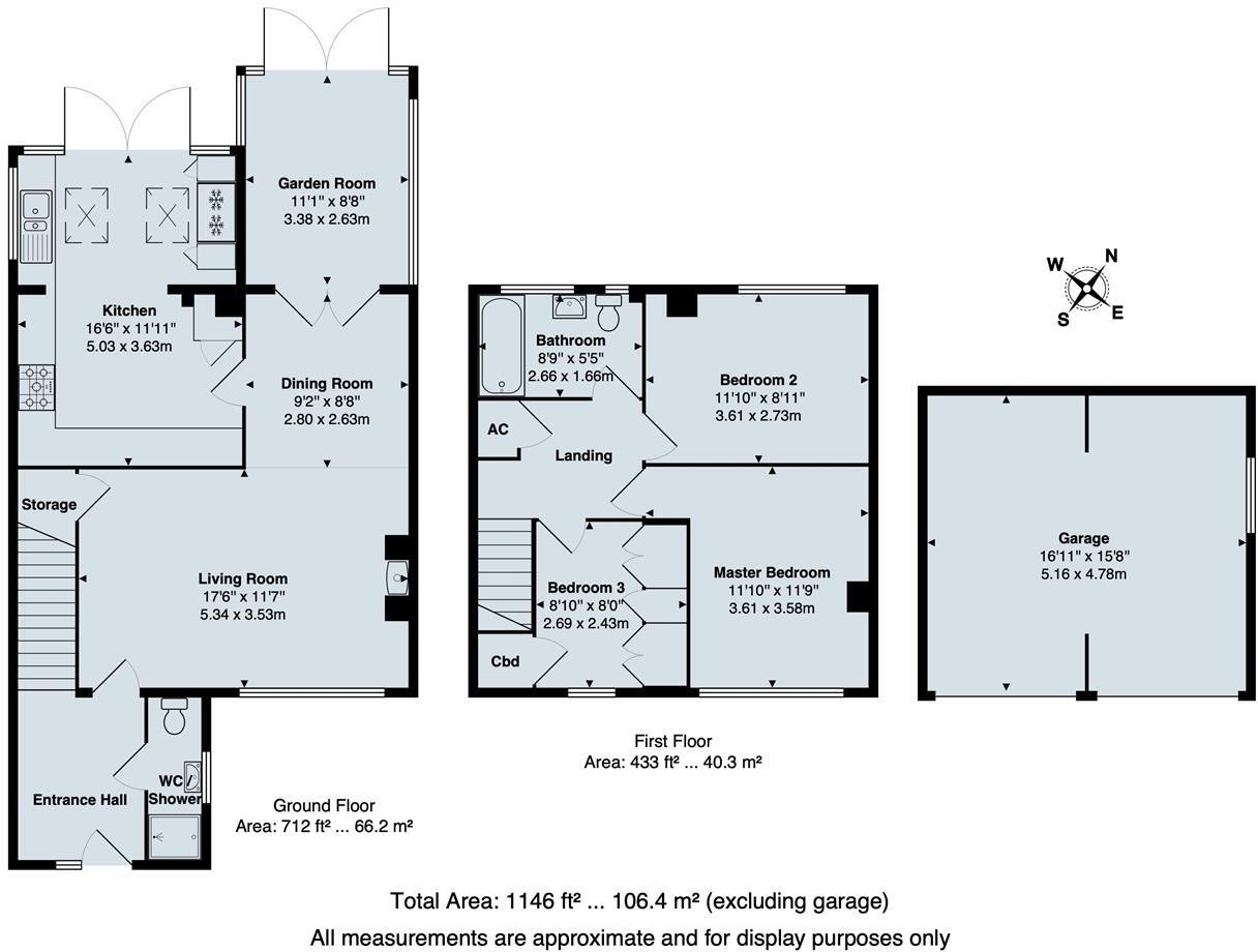
A recently renovated three-bedroom detached home in the peaceful village of Sheepy Magna, arranged over two floors and extending to about 1,146 sq ft. The ground floor flows from a spacious lounge and dining area into a bright garden room and well-fitted modern kitchen, creating practical family living and direct access to a low-maintenance landscaped rear garden. A ground-floor cloakroom with shower adds usefulness for young families or muddy boots.
Upstairs there are two double bedrooms and a versatile third bedroom served by a contemporary family bathroom. The property benefits from off-road parking and a double garage accessed to the rear — useful for vehicles, storage or a workshop. Recent upgrades mean the house is largely move-in ready and will suit buyers wanting a finished home rather than a major renovation project.
Location is a strong selling point: Sheepy Magna offers a quiet rural setting with village amenities and well-regarded nearby schools, while Atherstone and Market Bosworth are within a short drive. Commuters have convenient access to the A5 and longer-distance connections to Coventry, Leicester and Birmingham International Airport. Note the property sits on a small plot and has a medium flood risk; buyers should satisfy themselves on flood mitigation and insurance before purchase.
Overall this is a practical, stylish family home for those seeking village life with good links and low-maintenance outside space. It is offered freehold and chain-free, presenting straightforward possession for a buyer ready to move quickly.
5 bedroom detached house for sale in Main Road, Sheepy Magna, CV9 — £825,000 • 5 bed • 3 bath • 2677 ft²
3 bedroom detached bungalow for sale in Main Road, Sheepy Magna, CV9 — £285,000 • 3 bed • 2 bath • 1024 ft²
4 bedroom detached house for sale in Church Lane, Sheepy Magna, CV9 — £600,000 • 4 bed • 2 bath • 1906 ft²
5 bedroom detached house for sale in Ormes Lane, Ratcliffe Culey, CV9 — £975,000 • 5 bed • 3 bath • 2049 ft²
4 bedroom detached house for sale in Hilary Bevins Close, Higham-On-The-Hill, CV13 — £475,000 • 4 bed • 2 bath • 1523 ft²
3 bedroom link detached house for sale in Bosworth Road, Barlestone, Nuneaton, Leicestershire, CV13 — £250,000 • 3 bed • 2 bath • 1536 ft²


















































































