Light-filled modern family home on nearly an acre with excellent transport links.
Five-bedroom new-build barn conversion with contemporary finishes
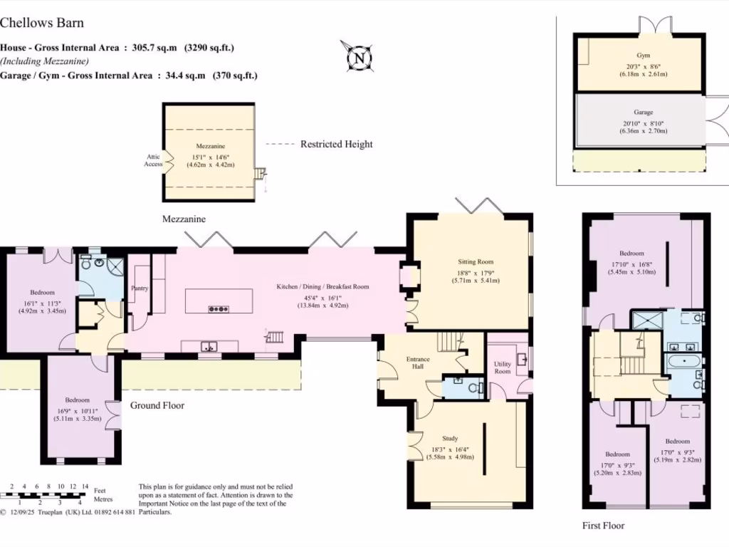
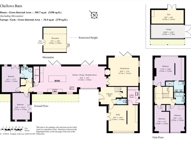
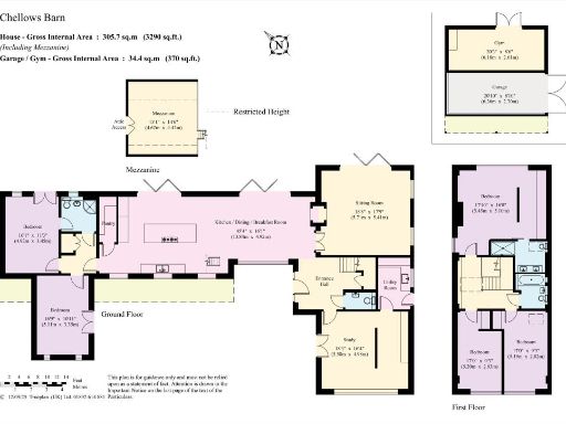
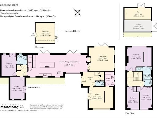
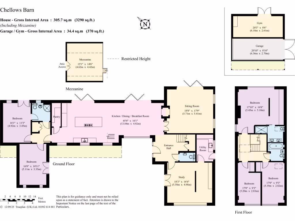
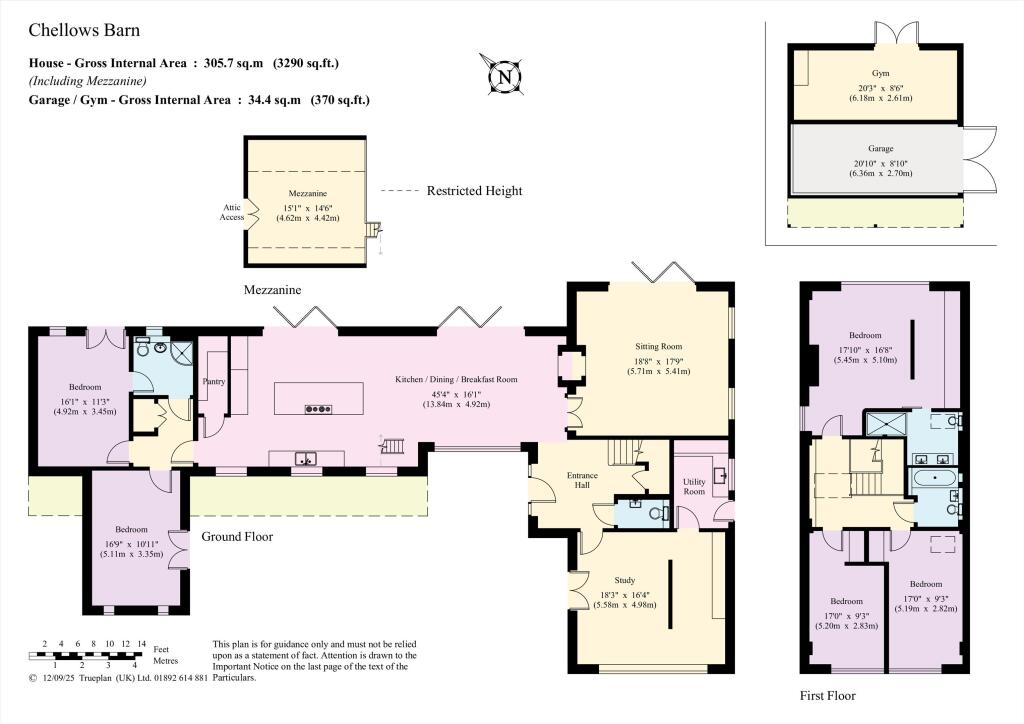
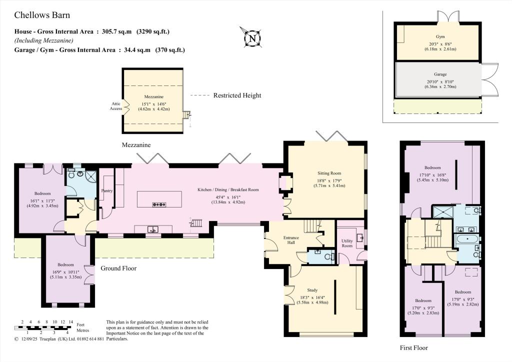
Set on just under an acre of private grounds with far-reaching North Downs views, this five-bedroom detached barn conversion blends contemporary living with countryside calm. The design prioritises natural light and open-plan family space — a lofted kitchen/dining room with bespoke Forest Designs kitchen and concertina doors opens directly to terraces and garden entertaining areas. Practical modern systems include wet underfloor heating, air conditioning to three bedrooms, solar panels and ultrafast fibre throughout.
The house was developed around the original agricultural building and benefits from a 3-year build guarantee. Accommodation is arranged across multiple levels to suit family life and guests: principal bedroom with dressing area and en suite, two first-floor bedrooms sharing a family bathroom, plus two ground-floor bedrooms with independent outdoor access and a shower room. Useful ancillary spaces include a double-storey oak garage, a fully fitted gym and substantial storage throughout.
Outside, the landscaped grounds, water feature, hot-tub area and sunken seating with biofuel fireplace create several separate entertaining zones while leaving plenty of secure garden for play. The property sits within a small farm cluster south of Oxted, giving countryside privacy combined with easy driving distance to Oxted, Lingfield and Edenbridge stations and direct commuter links to London.
A few practical points to note: the home sits in a rural hamlet with limited immediate services, and council tax bands are described as quite expensive. The current three-year NHBC/Build Zone guarantee provides short-term cover — buyers should confirm long-term service and maintenance expectations for a converted barn on a working farm.
5 bedroom detached house for sale in Dwelly Lane, Edenbridge, TN8 — £1,000,000 • 5 bed • 3 bath • 2017 ft²
4 bedroom detached house for sale in Newchapel Road, Lingfield, RH7 — £1,150,000 • 4 bed • 2 bath • 1787 ft²
5 bedroom detached house for sale in Bridle Barn, Oldencraig Mews, RH7 6GU, RH7 — £1,700,000 • 5 bed • 3 bath • 3600 ft²
6 bedroom detached house for sale in Mapleton Road, Four Elms, Edenbridge, TN8 — £2,750,000 • 6 bed • 6 bath • 6050 ft²
5 bedroom detached house for sale in Oldencraig Mews, Lingfield, RH7 — £1,550,000 • 5 bed • 3 bath • 3500 ft²
4 bedroom detached house for sale in Merlin Drive, Edenbridge, TN8 — £855,000 • 4 bed • 3 bath • 1485 ft²






































































































































































































































































