Convenient for Woking station, shops and nearby schools.
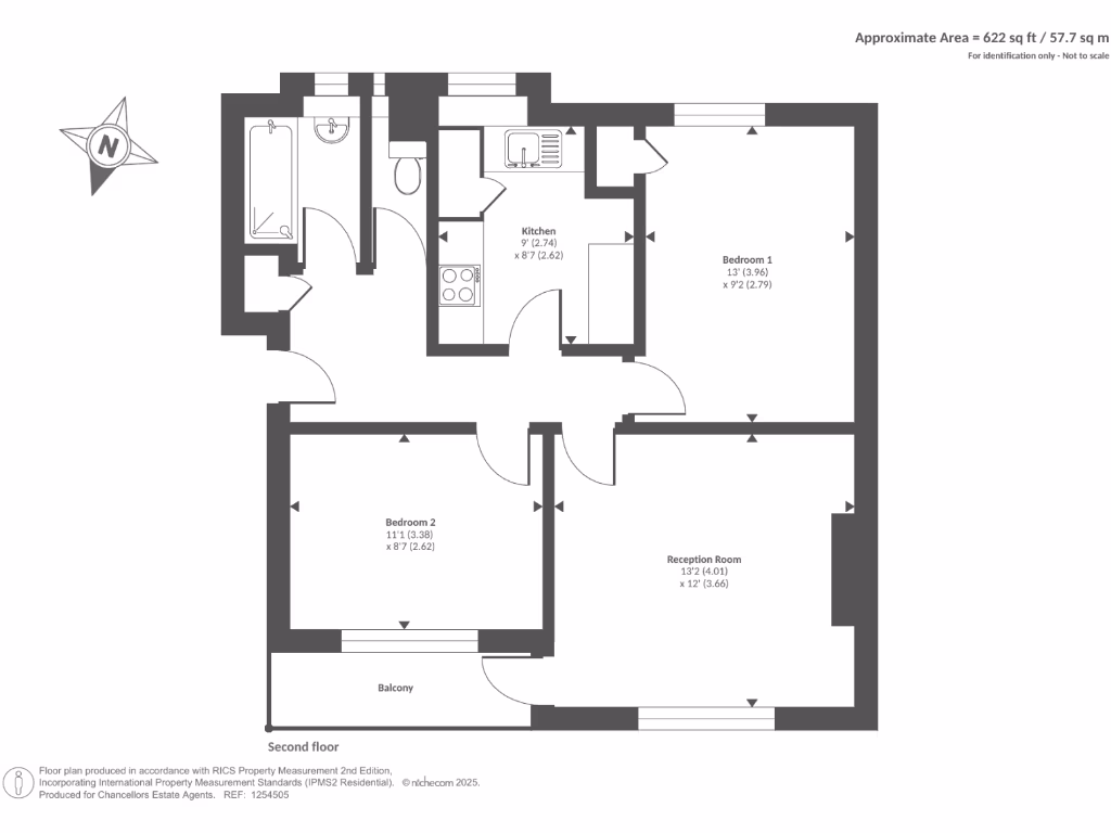
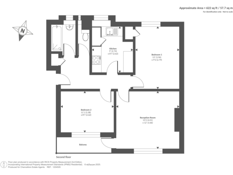
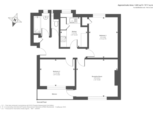
Two bedrooms, approximately 622 sq ft (average sized)
Conveniently placed a short walk from Woking town centre and station, this two-bedroom flat offers starter-home potential and easy commuting into the City. The apartment sits in a mid-20th-century block with communal access and a balcony; interiors are average-sized and will suit someone seeking a practical, affordable base or a lettable investment.
The flat benefits from fast broadband, excellent mobile signal, and proximity to several well-regarded primary and secondary schools, plus Eastwood Leisure Centre and local bus routes. The heating is mains gas with a boiler and radiators; double glazing is present but dates from before 2002. Council tax is inexpensive.
Important: there is a material lease issue that needs immediate attention. Information supplied states a remaining lease of 83 years but also notes only 38 years left; the shorter term would make mortgage lending difficult or impossible. The block is solid brick with assumed no cavity insulation and the interior shows dated finishes—this property will need refurbishment and potential thermal upgrades.
This home suits a buyer prepared to carry out some updating and to resolve lease/legal matters before purchase. It represents accessible entry to Woking or a possible buy-to-let for cash buyers, but anyone needing a mortgage should seek independent advice and verify the true lease term and lender acceptability.
2 bedroom flat for sale in Constitution Hill, Woking, GU22 — £275,000 • 2 bed • 1 bath • 555 ft²
2 bedroom flat for sale in Maybury Road, Woking, GU21 — £240,000 • 2 bed • 1 bath • 581 ft²
2 bedroom flat for sale in Hill View Court, Woking, GU22 — £230,000 • 2 bed • 1 bath • 814 ft²
2 bedroom flat for sale in Dorchester Court, Woking, GU22 — £319,500 • 2 bed • 1 bath • 652 ft²
2 bedroom apartment for sale in South View Court, Woking, GU22 — £275,000 • 2 bed • 1 bath • 824 ft²
2 bedroom flat for sale in York Road, Woking, Surrey, GU22 — £225,000 • 2 bed • 1 bath • 667 ft²














































































