Freehold 4,326 sq ft site with parking and redevelopment potential.
- Freehold multi-let business centre, approx 4,326 sq ft total
- Current income £63,622.54 per annum from six units
- 39 allocated off-street parking spaces and surfaced forecourt
- Semi-rural location with good M11/A414 access, near Stansted
- Constructed 1967–1975; solid brick walls, likely no insulation
- Heating: oil-fired boiler and radiators (untested) and fuel cost risk
- Broadband reported very slow; local crime level reported high
- Redevelopment/reconfiguration possible subject to vacant possession and planning
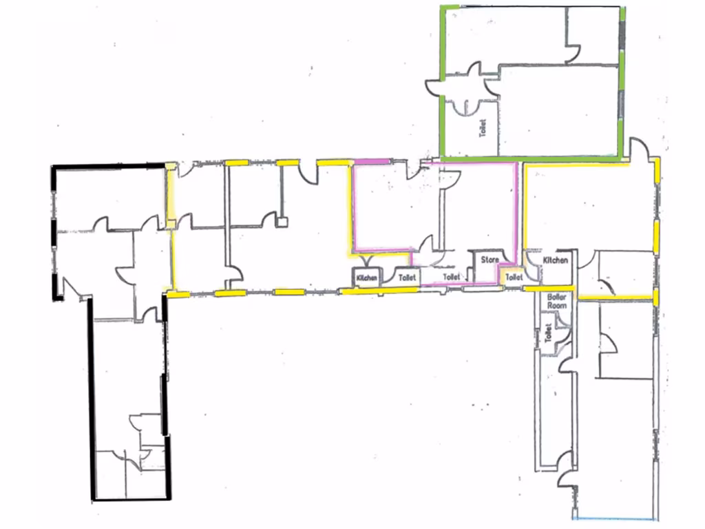
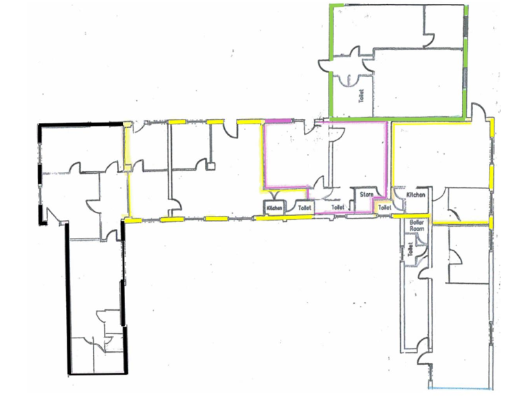
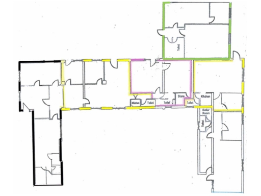
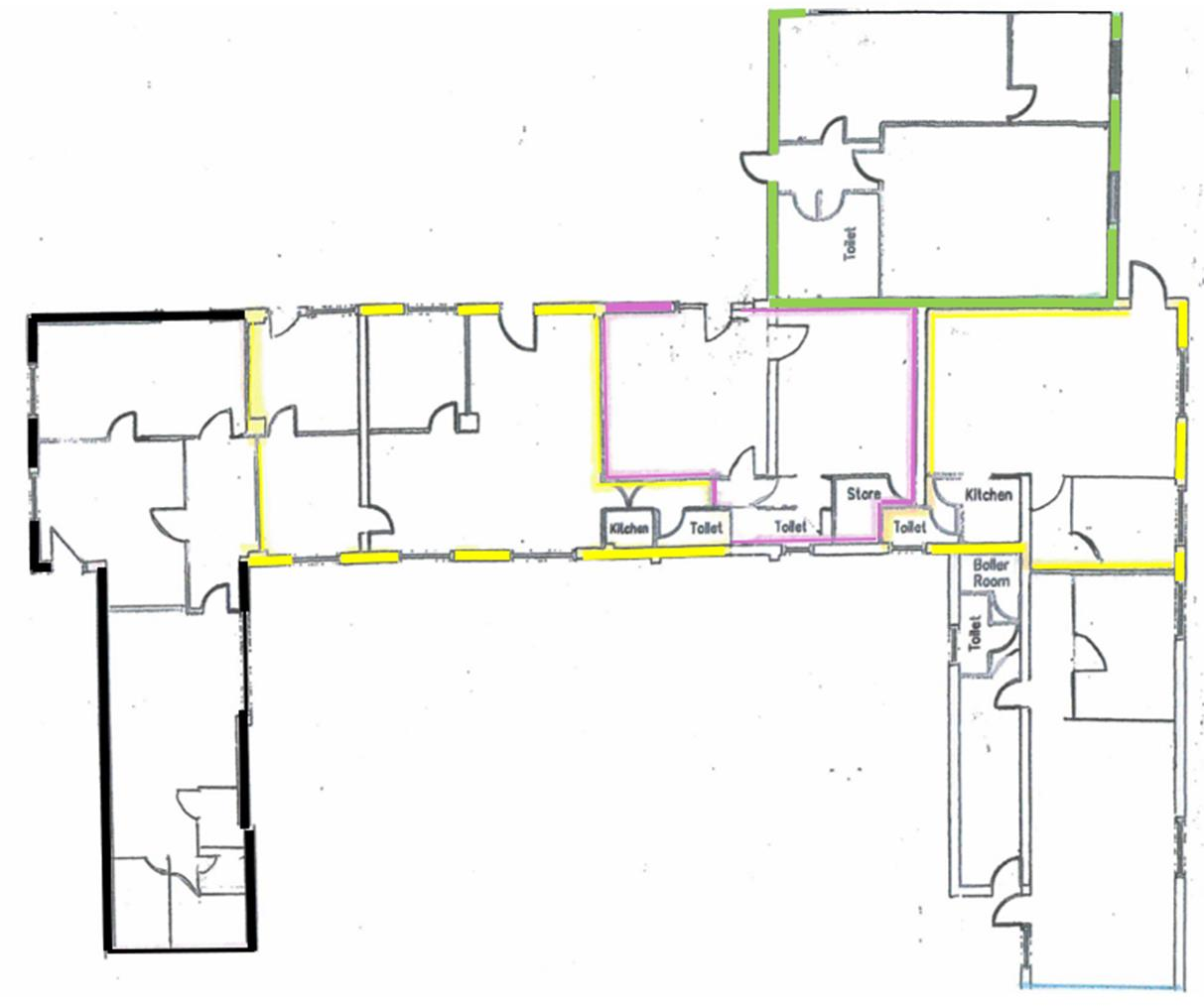
A rare freehold multi-let business centre totalling approximately 4,326 sq ft, set in a semi-rural position off Hastingwood Road with direct access to the M11 and A414. The site includes a large surfaced forecourt, 39 allocated parking spaces and woodland screening to the rear, offering privacy and strong vehicle access for occupiers. The property is let to a mix of small businesses and currently produces a stated income of £63,622.54 pa.
The single-storey units are self-contained with kitchenette and toilet facilities and benefitting from central heating (untested) and double glazing. Constructed in the late 1960s–1970s, the building offers straightforward ongoing multi-let investment use but also clear redevelopment or reconfiguration potential, subject to obtaining vacant possession and planning consent.
Important practical considerations: the heating runs off oil, most EPCs are outstanding (only one unit rated D), glazing install dates are unknown and the walls appear to be uninsulated — all relevant for running costs and any refurbishment scope. Broadband speeds are reported very slow and local crime levels are high, both factors that may affect certain occupiers.
This lot will suit an investor or developer who can manage short-dated leases, addresses energy and insulation upgrades, and/or pursue planning for a revised layout. The freehold sale at £850,000 offers a substantial footprint with parking and clear potential, but buyers should factor in repair, energy-efficiency and consent-related costs.
Office for sale in 7 Astra Centre, Edinburgh Way, Harlow, CM20 2BN, CM20 — POA • 1 bed • 1 bath • 8439 ft²
Light industrial facility for sale in International House, Horsecroft Road, Harlow, CM19 5SU, CM19 — POA • 1 bed • 1 bath
Office for sale in 230 Avenue West, Skyline 120, CM77 — £425,000 • 1 bed • 1 bath • 1820 ft²
Light industrial facility for sale in 1-4 Ployters Road, Staple Tye, Harlow, CM18 7PS, CM18 — £1,400,000 • 1 bed • 1 bath • 12367 ft²
Distribution warehouse for sale in Units E & F West Side Business Centre, Flex Meadow, Harlow, CM19 5SR, CM19 — £1,150,000 • 1 bed • 1 bath • 5897 ft²
Distribution warehouse for sale in E & F West Side, Flex Meadow, Harlow, CM19 5SR, CM19 — £1,150,000 • 1 bed • 1 bath • 7503 ft²






















































