EN2 9DB - 4 bedroom detached house for sale in Beech Avenue, Enfield,…

View on Property Piper

4 bedroom detached house for sale in Beech Avenue, Enfield, EN2

Summary - 11 BEECH AVENUE ENFIELD EN2 9DB

4 bed 2 bath Detached

Large plot, 47ft garage and open-plan living near Crews Hill station — scope to improve energy efficiency.
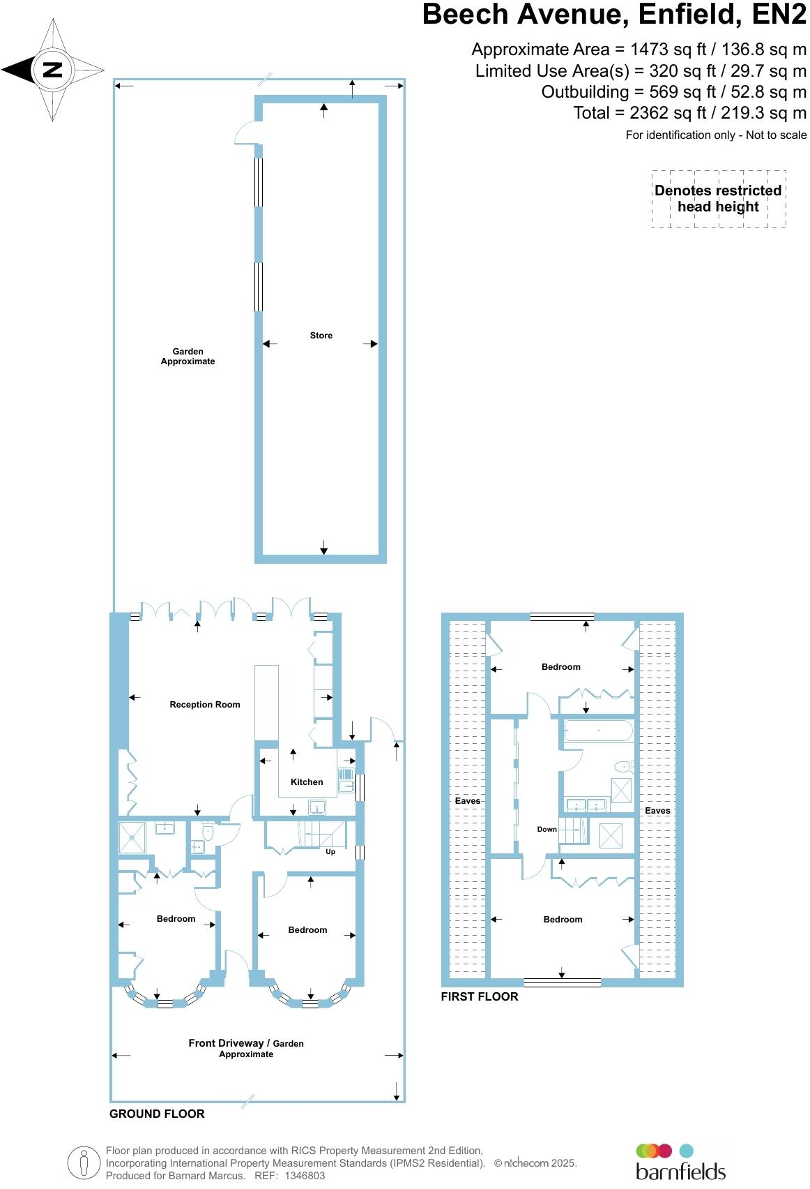
Extended four-bedroom detached chalet bungalow
A rare, extended four-bedroom detached chalet-style home set on a generous plot in semi-rural Enfield. The house offers flexible family living across two storeys with a bright open-plan lounge/kitchen that opens to a beautifully landscaped rear garden — great for entertaining and family life. The huge 47ft garage and wide driveway provide exceptional storage and parking for multiple vehicles.

The property is presented in good decorative order with modern fitted kitchen and bathrooms, making it move-in ready for many buyers. Upstairs accommodation includes two generous double bedrooms with built-in storage; downstairs delivers two further bedrooms, an ensuite and separate WC for practical everyday use. Crews Hill station is within easy reach and the 456 bus links to Enfield Town and Winchmore Hill.

Notable practical considerations: the house is a 1930s solid-brick build with no assumed cavity insulation, double glazing predates 2002 and the area records higher crime and relative deprivation; prospective buyers should budget for energy-efficiency improvements and security measures. Council tax is described as expensive. Buyers seeking longer-term uplift can explore modernisation, retrofit insulation, or permitted extensions subject to planning.

Overall this is a spacious, well-located family home offering immediate comfort, exceptional outbuilding space and clear potential to add value with targeted improvements.

Property Details

Brochure Descriptions

Image Descriptions

Floorplan Description

Rooms

Textual Property Features

Target Audience

AI Tags

Detected Visual Features

EPC Details

Nearby Schools

Nearest Bars And Restaurants

,,,,}

Nearest General Shops

,,}

Nearest Grocery shops

,,}

Nearest Supermarkets

,,}

Nearest Religious buildings

,,}

Nearest Medical buildings

,,,}

Nearest Airports

,,}

Nearest Leisure Facilities

,,,,}

Nearest Tourist attractions

,,}

Nearest Train stations

,,,,}

Nearest Bus stations and stops

,,,,}

Nearest Hotels

,,}

Tags

Local Market Stats

Similar Properties

Meta

High Res Images

Compatible Images

Low res Images

Thumbnails

Raw Images

High Res Floorplan Images

Compatible Floorplan Images

Low res Floorplan Images

FloorplanImages Thumbnail

Raw Floorplan Images