Single-floor living with private garden and easy commuter links.
Detached two-bedroom bungalow on a large plot adjacent to Green Belt
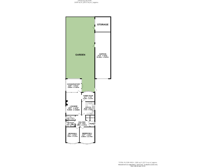
Set on a generous plot beside Green Belt countryside, this detached two-bedroom bungalow offers single-storey living with practical, comfortable accommodation. The home has an 18ft living room, separate dining room, modern fitted kitchen and bathroom, plus two double bedrooms with fitted wardrobes — a straightforward layout that suits downsizers or those seeking long-term ground-floor convenience.
Externally the property benefits from a wide paved driveway, side-access single garage and a private landscaped rear garden that opens onto countryside views. Crews Hill station is within walking distance, with easy road links to the A10 and M25 and convenient access to Enfield Town shopping facilities.
Buyers should note some energy and maintenance considerations: the cavity walls are assumed uninsulated and double glazing predates 2002, so secondary works or insulation upgrades may be needed to improve efficiency. Council Tax is Band F and local crime levels are high; the surrounding area is classified as relatively deprived, which may affect resale or rental demand for some buyers.
Overall this bungalow delivers a rare combination of single-storey ease, large outdoor space and a semi-rural setting. It will appeal to downsizers or anyone wanting a low-rise home with scope for targeted investment in insulation, glazing and interior modernisation.
2 bedroom semi-detached bungalow for sale in Monks Road, Enfield, EN2 — £600,000 • 2 bed • 2 bath • 593 ft²
2 bedroom detached house for sale in Abbey Road, Enfield, EN1 — £739,000 • 2 bed • 2 bath • 1159 ft²
4 bedroom bungalow for sale in Turkey Street, Forty Hill, Middlesex, EN1 — £875,000 • 4 bed • 1 bath • 2245 ft²
1 bedroom semi-detached bungalow for sale in The Glade, Enfield, EN2 — £425,000 • 1 bed • 1 bath • 369 ft²
2 bedroom semi-detached bungalow for sale in Monks Road, Enfield, EN2 — £600,000 • 2 bed • 2 bath • 797 ft²
3 bedroom house for sale in Elmfield Road, Potters Bar, EN6 — £610,000 • 3 bed • 1 bath • 863 ft²


























































































































