Low‑maintenance 2-bed detached bungalow on over‑50s park, close to Cardiff.
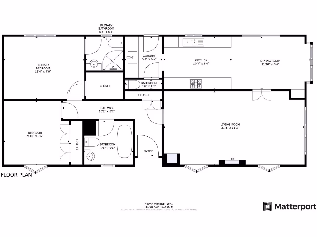
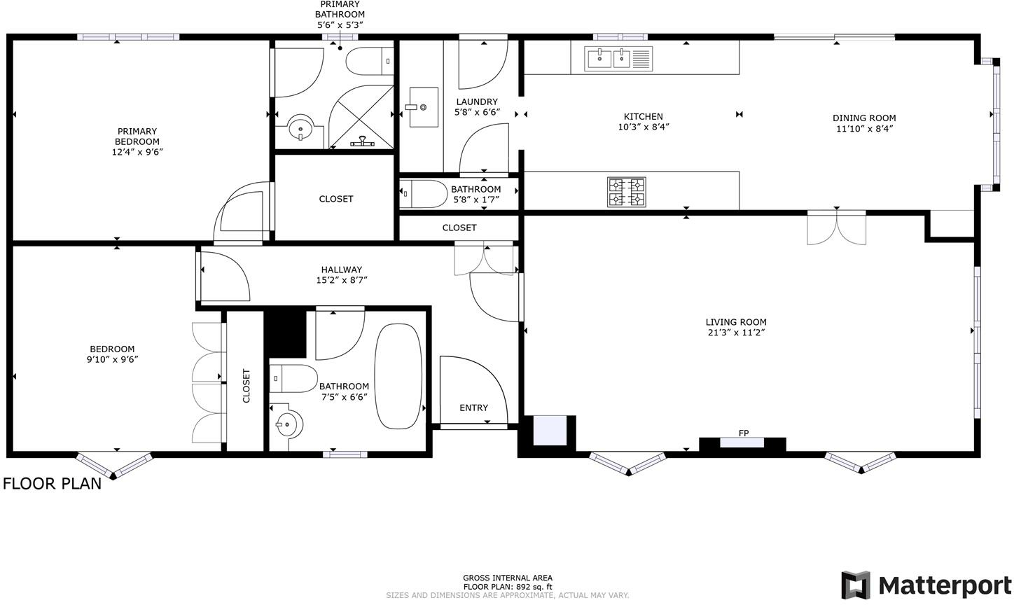
Two double bedrooms and two bathrooms
Comfortable, single-storey living designed for over-50s, this modern detached bungalow sits on a twin plot at Pont Pentre Park. The open-plan layout, two double bedrooms and two bathrooms make it practical for downsizers wanting low-maintenance, accessible accommodation. Off-street parking and a large paved patio give outdoor space without heavy upkeep.
The home is a contemporary manufactured unit with modern fittings, integrated kitchen appliances and useful utility room. A long 999-year lease is in place, and the property benefits from excellent transport links — regular buses to Cardiff and nearby shops are within walking distance. Council Tax Band B keeps running costs modest.
Notable commitments include a monthly pitch fee of £198.21 and park restrictions: Pont Pentre Park is exclusively for residents aged over 50. The wider area scores high for crime and is marked as very deprived, which may concern some buyers. Windows to the front have privacy film and the plot is secure, but buyers should factor community rules and ongoing fees into affordability calculations.
This bungalow suits a buyer seeking a manageable, modern retirement home close to Cardiff and local amenities, who is comfortable with leasehold park living and associated fees. It offers immediate move-in potential with scope to personalise internally while avoiding large exterior maintenance tasks.
 2 bedroom bungalow for sale in Pont Pentre Park, Upper Boat, Pontypridd, CF37 — £175,000 • 2 bed • 2 bath • 778 ft²
 2 bedroom bungalow for sale in Pont Pentre Park, Upper Boat, Pontypridd, CF37 — £175,000 • 2 bed • 2 bath • 778 ft² 2 bedroom park home for sale in Pont Pentre Parc, Upper Boat, Pontypridd, CF37 — £180,000 • 2 bed • 2 bath • 752 ft²
 2 bedroom park home for sale in Pont Pentre Parc, Upper Boat, Pontypridd, CF37 — £180,000 • 2 bed • 2 bath • 752 ft² 2 bedroom park home for sale in Pont Pentre Park, Pontypridd, CF37 — £120,000 • 2 bed • 2 bath • 456 ft²
 2 bedroom park home for sale in Pont Pentre Park, Pontypridd, CF37 — £120,000 • 2 bed • 2 bath • 456 ft² 2 bedroom park home for sale in Pont Pentre Park, Upper Boat, Pontypridd, CF37 — £172,500 • 2 bed • 2 bath • 751 ft²
 2 bedroom park home for sale in Pont Pentre Park, Upper Boat, Pontypridd, CF37 — £172,500 • 2 bed • 2 bath • 751 ft² 2 bedroom park home for sale in Pont Pentre Caravan Park, Upper Boat, Pontypridd, CF37 — £177,500 • 2 bed • 2 bath • 754 ft²
 2 bedroom park home for sale in Pont Pentre Caravan Park, Upper Boat, Pontypridd, CF37 — £177,500 • 2 bed • 2 bath • 754 ft² 2 bedroom park home for sale in Pont Pentre Park, Upper Boat, Pontypridd, CF37 — £168,000 • 2 bed • 2 bath • 767 ft²
 2 bedroom park home for sale in Pont Pentre Park, Upper Boat, Pontypridd, CF37 — £168,000 • 2 bed • 2 bath • 767 ft²


























































































