Period character with strong schools and transport close by.
Chain-free three-bedroom mid-terrace, approx 1,000 sq ft
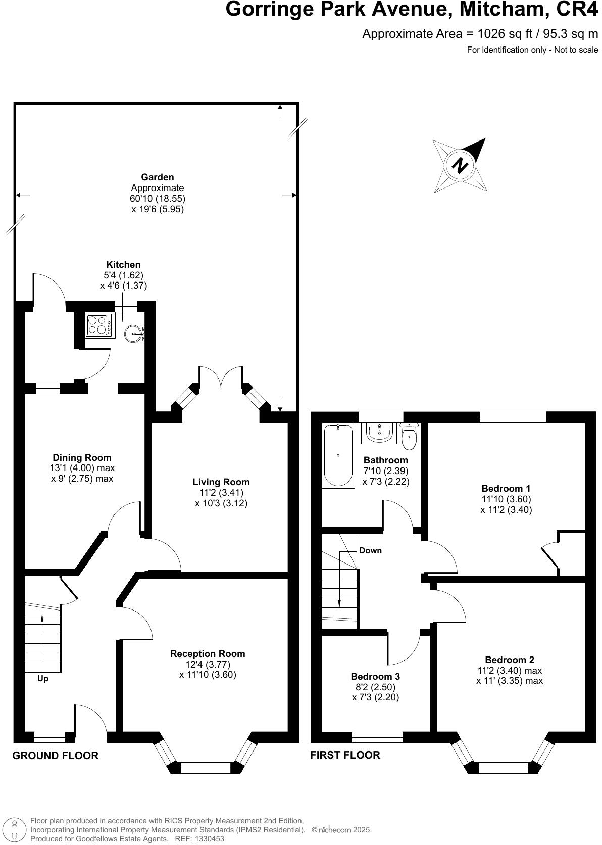
A mid-terrace three-bedroom house on Gorringe Park Avenue offered chain-free and ready for a comprehensive update. The property spans about 1,000 sq ft with two reception rooms, a galley kitchen and a private rear garden. Period details such as a bay window and solid brick construction give a characterful starting point for refurbishment.
The location is a major selling point for families: well-regarded primary schools nearby, outstanding secondary options within reach, and good transport links to Tooting and Mitcham Eastfields stations. Broadband and mobile signal are strong, and the area has everyday amenities close at hand.
Important practical points: the house needs modernisation throughout, including likely improvements to insulation and internal finishes. The EPC is D and the walls are assumed to be solid brick with no insulation; the boiler and radiators use mains gas. Gardens and some exterior areas are overgrown and will require maintenance.
This freehold home suits buyers looking to add value through renovation—families wanting space and proximity to good schools, or investors prepared to refurbish. Viewing is recommended for those imagining a modernised layout while retaining original character.
3 bedroom terraced house for sale in Framfield Road, Mitcham, CR4 — £475,000 • 3 bed • 1 bath • 1024 ft²
3 bedroom terraced house for sale in Hill Road, Mitcham, CR4 — £500,000 • 3 bed • 1 bath • 832 ft²
3 bedroom end of terrace house for sale in Broadway Gardens, Mitcham, CR4 — £425,000 • 3 bed • 1 bath • 1007 ft²
3 bedroom terraced house for sale in De'arn Gardens, Mitcham, CR4 — £500,000 • 3 bed • 1 bath • 868 ft²
4 bedroom semi-detached house for sale in Tonstall Road, Mitcham, CR4 — £675,000 • 4 bed • 1 bath • 1230 ft²
3 bedroom house for sale in De'arn Gardens, Mitcham, CR4 — £500,000 • 3 bed • 1 bath • 876 ft²










































































