Ready for renovation with extension potential and strong local amenities.
Chain-free three-bedroom mid-terrace with two reception rooms
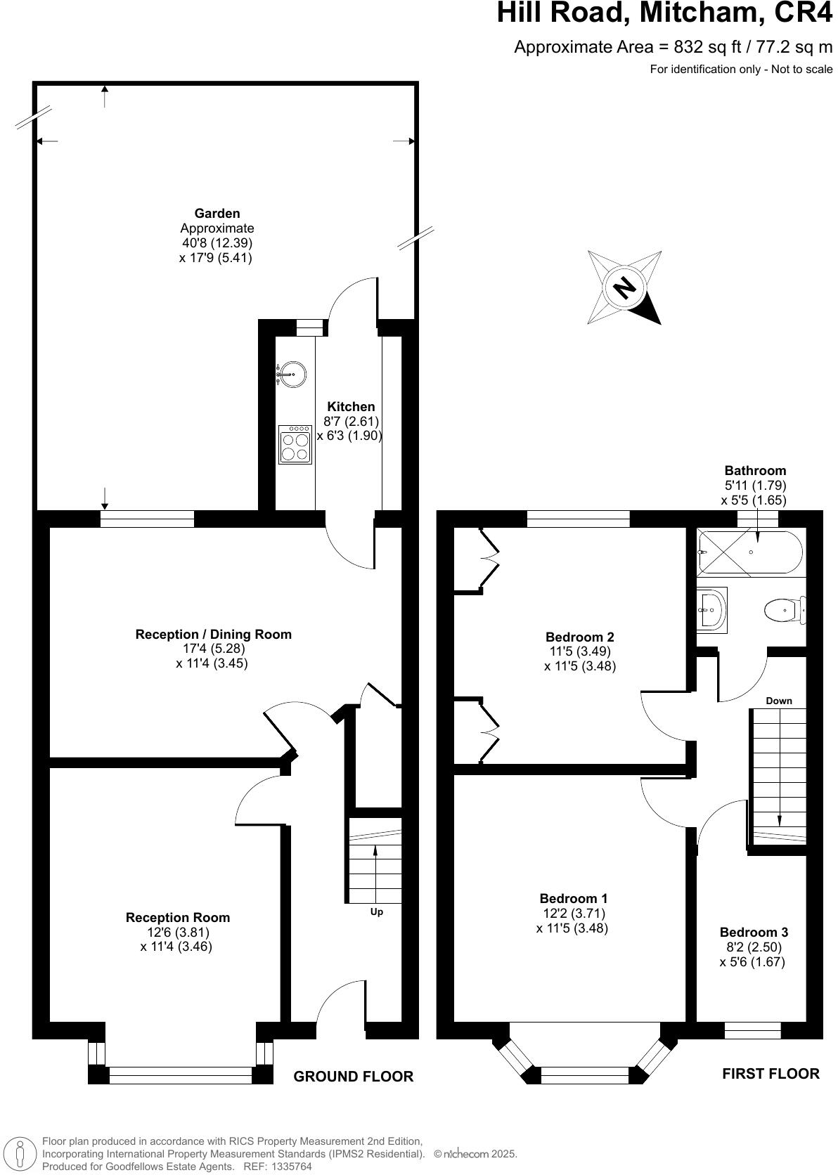
A three-bedroom mid-terrace offering clear scope to create a comfortable family home or buy-to-let in Mitcham. The property is chain-free and arranged over two floors with two reception rooms, a galley kitchen overlooking the rear garden and loft access with potential to extend (STPP).
The house needs renovation throughout, so it will suit buyers looking to modernise and add value. Practical details include mains gas central heating, double glazing, an EPC rating of D and freehold tenure. The single bathroom and small plot should be considered when planning changes.
Location is a genuine strength: a quiet, tree-lined residential street close to Mitcham Eastfields station, local shops, Figges Marsh and several highly rated primary and secondary schools. Fast broadband and excellent mobile signal support home working or letting to connected tenants.
For buyers wanting scope to improve, this property offers loft and rear extension potential (subject to planning), plus average-sized living space of about 832 sq ft that can be reconfigured. Budget for renovation, and factor in typical mid-terrace constraints when planning works.
3 bedroom terraced house for sale in Edgehill Road, Mitcham, CR4 — £550,000 • 3 bed • 1 bath • 931 ft²
3 bedroom terraced house for sale in De'arn Gardens, Mitcham, CR4 — £525,000 • 3 bed • 1 bath • 863 ft²
3 bedroom terraced house for sale in Ramones Terrace, Yorkshire Road, Mitcham, CR4 — £475,000 • 3 bed • 1 bath • 1099 ft²
3 bedroom terraced house for sale in Kingsmead Avenue, Mitcham, CR4 — £450,000 • 3 bed • 1 bath • 953 ft²
3 bedroom end of terrace house for sale in Bank Avenue, Mitcham, CR4 — £625,000 • 3 bed • 2 bath • 1340 ft²
3 bedroom terraced house for sale in Crusoe Road, Mitcham, CR4 — £650,000 • 3 bed • 1 bath • 1479 ft²






























































