Income-producing property with garden and ample parking near central amenities.
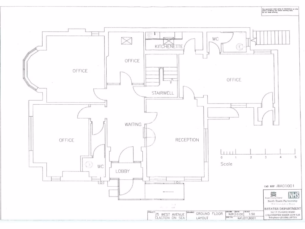
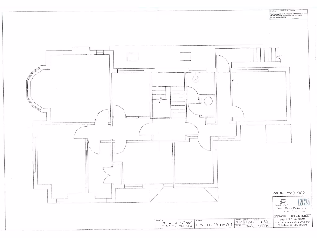
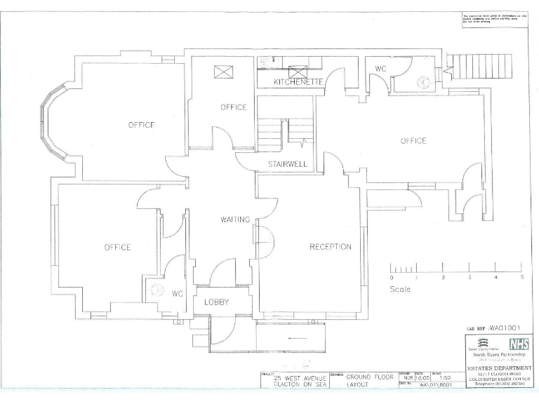
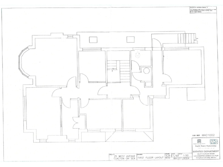
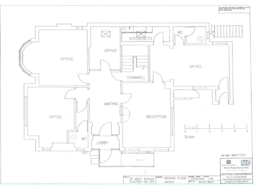
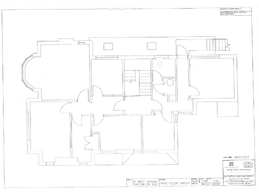
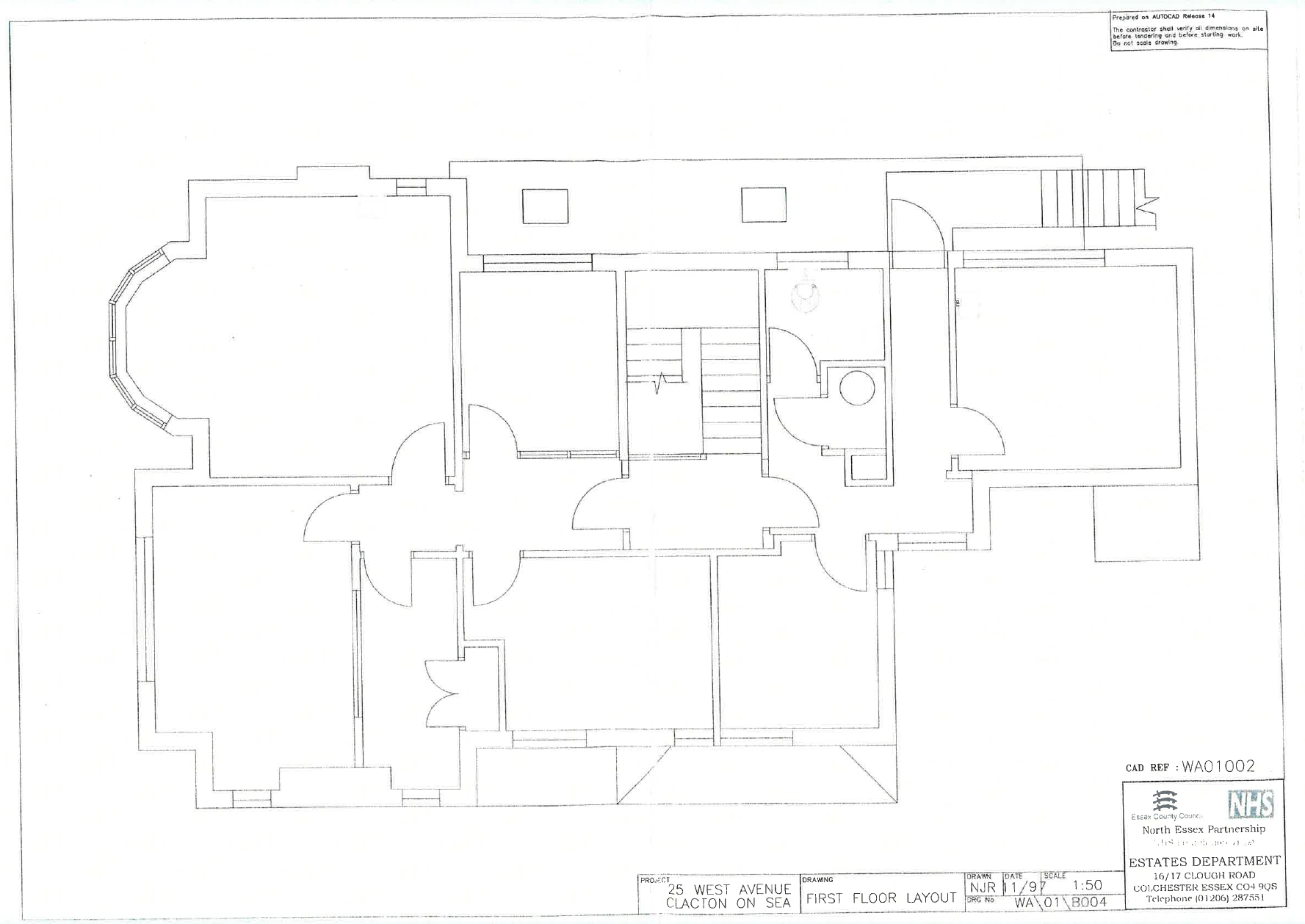
Detached freehold commercial building, approx. 2,641 sq ft (245 sq m)
A substantial detached freehold building in central Clacton extending to approximately 2,641 sq ft (245 sq m) with garden and off-street parking. It is currently occupied by The North East London Foundation Trust (part of the NHS) since 2019, producing £20,000 per annum paid quarterly. The property will be sold by livestream auction with a guide price of £180,000–£220,000.
This presents an attractive income-led purchase for investors: at the lower guide price the current rent equates to a gross yield of over 11%. The central location, large footprint and parking area give flexibility for continued commercial use or alternative uses subject to planning. There is no written lease in place, so rental security depends on the current occupier remaining in situ and can change on reversion.
Buyers should note material considerations: the building is pre-1900 solid brick (assumed uninsulated walls), EPC rating E and glazing is not defined. The area records very high crime and is classified as very deprived with constrained local aspiration, which may affect tenant demand and future asset values. Structural and retrofit costs (insulation, services, possible refurbishment) are likely given the age and construction type.
Sale formalities include livestream auction conditions, an administration fee of £1,200 inc. VAT and a buyer’s premium of £1,200 inc. VAT payable on exchange. There are disbursements listed in the legal pack which prospective purchasers should review before bidding. The purchase suits an investor comfortable with short-form occupational arrangements and with appetite to manage refurbishment and local market risks.
3 bedroom mixed use property for sale in 82 Rosemary Road, Clacton-on-Sea, Essex, CO15 1TG, CO15 — £400,000 • 3 bed • 1 bath • 474 ft²
1 bedroom flat for sale in High Street, Clacton-On-Sea, CO15 — £170,000 • 1 bed • 1 bath • 625 ft²
7 bedroom detached bungalow for sale in Hayes Road, Clacton on Sea, CO15 — £351,000 • 7 bed • 3 bath • 2573 ft²
2 bedroom detached house for sale in Beach Road, Clacton-On-Sea, CO15 — £140,000 • 2 bed • 2 bath • 592 ft²
High street retail property for sale in Old Road, Clacton on Sea, CO15 — £280,000 • 3 bed • 1 bath • 392 ft²
Land for sale in Land lying to the North of Eton Road, Clacton-On-Sea, Essex CO15 3QA, CO15 — £10,000 • 1 bed • 1 bath


















