Refurbished three double-bedroom terrace with 54ft garden, close to Ilford Station.
Three double bedrooms across two floors
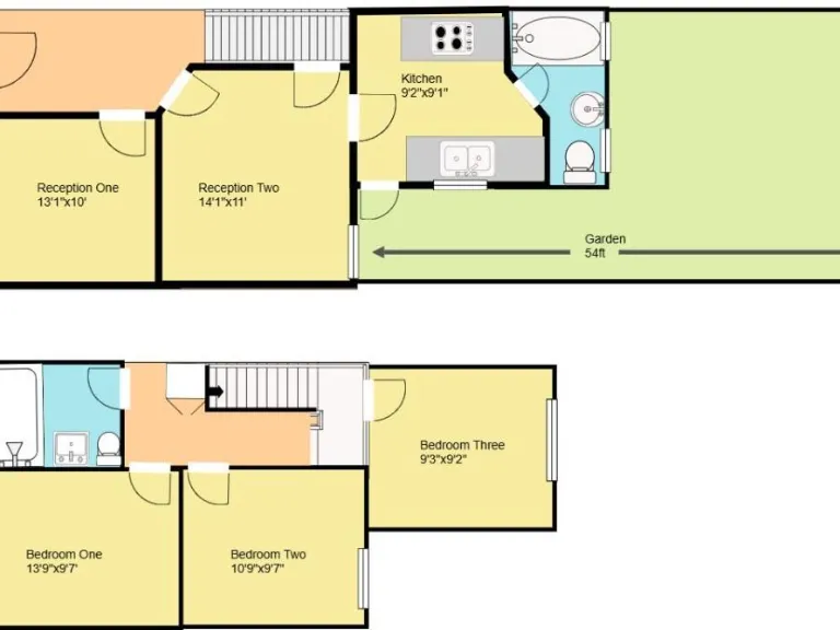
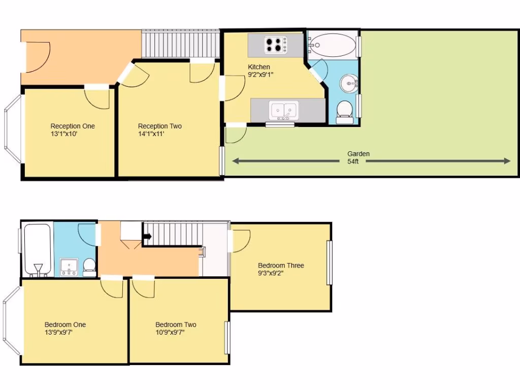
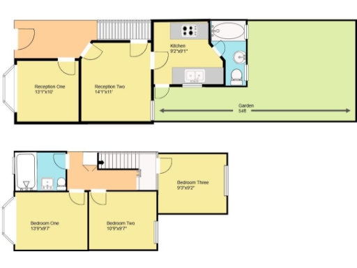
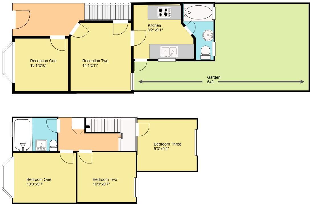
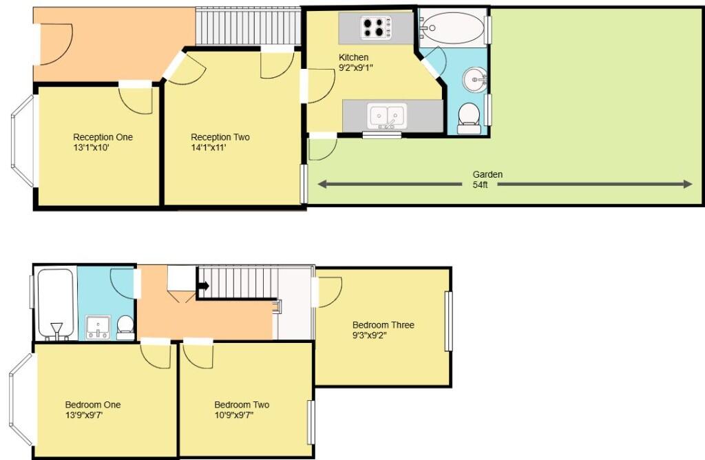
Set on Henley Road, this newly refurbished three-double-bedroom terrace delivers immediate move-in condition and strong rental or first-time buyer appeal. Recent upgrades include new double glazing, a modern fitted kitchen and contemporary bathrooms on both ground and first floors, so day-to-day maintenance is minimal.
Internal space is compact but well laid out across two reception rooms and three double bedrooms, with an internal footprint of about 689 sq ft. The standout external feature is the long rear garden (approximately 54 ft), a rare asset for this type of terraced property and useful for families or summertime entertaining.
Location is practical: Ilford Station, shopping and local buses are within easy reach, and nearby schools include several rated Good or Outstanding. The property is freehold, which simplifies ownership for buyers and investors.
Notable points to consider: the house is compact for a three-bedroom home, so space-conscious buyers should view to assess layout. Gas central heating is present but listed as untested. The surrounding area is an urban residential street with average crime and typical local amenities; parking and on-street congestion are common in this part of Ilford.
3 bedroom terraced house for sale in Grange Road, Ilford, IG1 — £475,000 • 3 bed • 2 bath • 719 ft²
3 bedroom terraced house for sale in Grange Road, Ilford, Greater London, IG1 — £475,000 • 3 bed • 2 bath
3 bedroom terraced house for sale in Cobham Road, Ilford, IG3 — £550,000 • 3 bed • 2 bath • 967 ft²
3 bedroom terraced house for sale in Henley Road, Ilford, IG1 — £500,000 • 3 bed • 2 bath • 1352 ft²
3 bedroom terraced house for sale in Betchworth Road, Ilford, IG3 — £500,000 • 3 bed • 2 bath • 1115 ft²
3 bedroom terraced house for sale in Meadway, Ilford, IG3 — £500,000 • 3 bed • 1 bath • 980 ft²






























































