Part-let freehold with strong restoration upside near Maldon town centre.
Grade II listed facade with many original period features
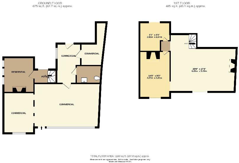
A rare Grade II listed mixed-use building on Maldon High Street, currently producing a part rental income of £8,000 per annum from the ground-floor commercial unit. The property retains original features — exposed beams, timber framing, fireplaces and wide floorboards — offering strong appeal to buyers who can sympathetically restore period character.
The first-floor flat is vacant and requires a full programme of refurbishment or possible redevelopment; the space could be reconfigured to form a two-bedroom flat or alternative use (subject to consents). The overall size is generous (around 1,160 sq ft) and the plot is large, giving scope for value enhancement through renovation and better floor‑plan use.
Buyers should note the building’s listed status will bring restrictions and likely cause difficulties for alterations and repairs. The property is sold freehold by livestream online auction (guide price £160,000–£180,000) with an administration fee and buyer’s premium of £1,200 each payable on exchange. Existing rateable value and other legal pack matters should be checked before bidding.
This is most suitable for investors or developer-restorers comfortable with listed-building work, refurbishment costs and planning/consent processes, who can convert the vacant accommodation and improve rental or capital returns.
Terraced house for sale in High Street, Maldon, CM9 — £145,000 • 1 bed • 1 bath
Commercial property for sale in High Street, Maldon, CM9 — £110,000 • 1 bed • 1 bath • 509 ft²
Mixed use property for sale in 84 High Street, Maldon, Essex, CM9 — £275,000 • 1 bed • 1 bath • 1031 ft²
High street retail property for sale in 106 High Street, Maldon, Essex, CM9 — £375,000 • 1 bed • 1 bath • 980 ft²
Restaurant for sale in High Street, Maldon, Essex, CM9 — £450,000 • 1 bed • 1 bath • 680 ft²
Commercial property for sale in High Street, Burnham-On-Crouch, CM0 — £325,000 • 4 bed • 2 bath • 3500 ft²






































































