Move-in-ready two-bedroom home close to beach and local amenities.
Recently renovated throughout, ready to move into
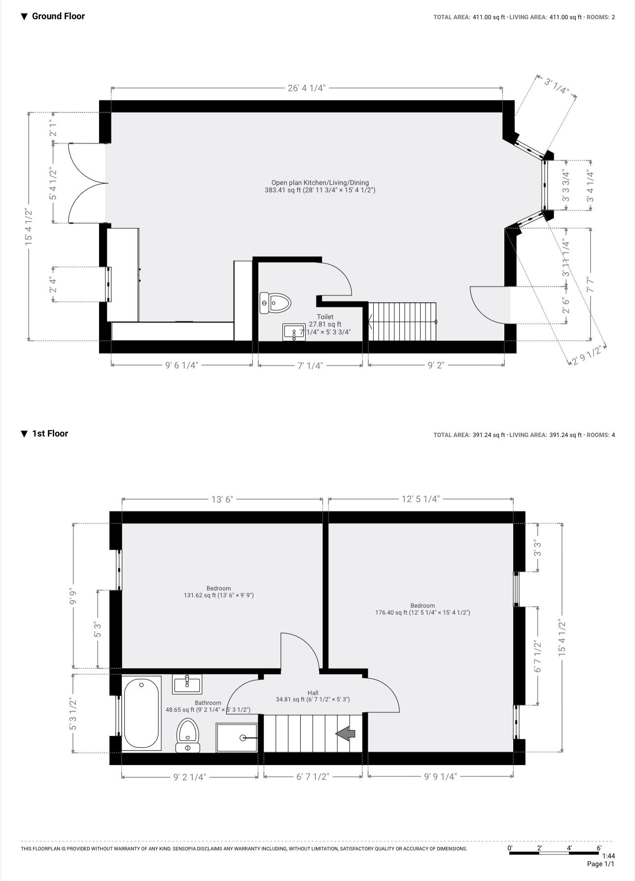
Recently renovated and ready to move into, this two-bedroom mid-terrace on Marmion Road blends contemporary fittings with period character. The open-plan ground floor and modern kitchen create a bright, flexible living space, while two large double bedrooms and a newly installed bathroom upstairs offer comfortable accommodation.
Practical details are favourable: the property is chain-free, freehold, double-glazed and heated by a mains-gas boiler and radiators. A small rear courtyard provides private outdoor space with gate access to the alleyway; the home sits close to Hoylake’s shops and promenade for easy everyday life and leisure.
There are a few points to note: the plot is small and outdoor space is limited; the property is an average-sized terrace and may suit buyers seeking low-maintenance town living rather than extensive gardens. Buyers should check any specifics about the construction date and certificates for recent works if required.
This home will suit first-time buyers or downsizers wanting a move-in-ready property near the coast with contemporary styling and efficient heating. With good local schools, low recorded crime and fast broadband, it offers a straightforward coastal living option with immediate occupation possible.
3 bedroom semi-detached house for sale in Marine Road, Hoylake, Merseyside, CH47 — £600,000 • 3 bed • 3 bath • 1567 ft²
2 bedroom terraced house for sale in Lee Road, CH47 — £225,000 • 2 bed • 1 bath • 734 ft²
2 bedroom terraced house for sale in Rudd Street, Hoylake, Wirral, CH47 — £180,000 • 2 bed • 1 bath • 597 ft²
4 bedroom maisonette for sale in Queens Road, Hoylake, Wirral, Merseyside, CH47 — £450,000 • 4 bed • 3 bath • 1852 ft²
2 bedroom terraced house for sale in Newton Road, Hoylake, Wirral, CH47 — £215,000 • 2 bed • 1 bath • 755 ft²
6 bedroom terraced house for sale in Alderley Road, Hoylake, Wirral, CH47 — £435,000 • 6 bed • 1 bath • 1588 ft²






























































