Renovated family home near top schools and local amenities.
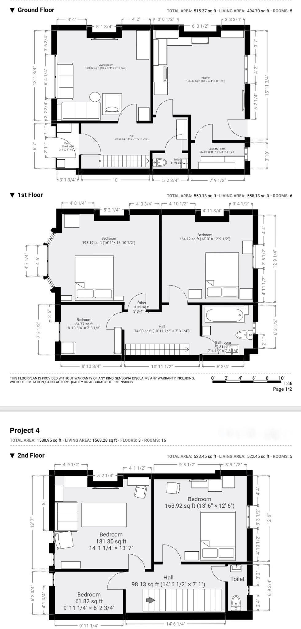
Six bedrooms across three floors for flexible family living
Bespoke Rowe Fitted Interiors kitchen, newly renovated
Private enclosed rear garden with shed and patio
Potential for rear parking subject to approvals (not guaranteed)
Only one full bathroom for six bedrooms; two additional WCs
Solid brick walls assumed without insulation—may need upgrades
Freehold; no recorded flood risk
Approx 1,588 sq ft; double glazing installed post-2002
This recently renovated six-bedroom Victorian mid-terrace on Alderley Road suits growing families who need space close to good schools and local amenities. The house combines period character—bay window, high ceilings and red-brick facade—with a contemporary fit-out, including a bespoke kitchen by Rowe Fitted Interiors and new double glazing.
Accommodation is arranged over three floors: generous lounge, fitted kitchen/breakfast room, utility and ground-floor WC; three bedrooms and a family bathroom on the first floor; two more doubles, a further single bedroom and an additional WC on the second floor. The layout gives flexibility for families, home workers or multigenerational living.
The private rear garden is a practical, enclosed space with established borders, a paved patio and garden shed. Neighbouring plots have created off-street parking from the rear lane, which may be possible here subject to necessary approvals. There is no known flood risk and the property is freehold.
Important practical points: there is only one full bathroom serving six bedrooms, and the original solid-brick walls are assumed to have no built-in insulation, which could mean higher energy costs unless improved. Parking is not guaranteed and would require planning/consent to create off-street space.
7 bedroom end of terrace house for sale in Queens Road, Hoylake, CH47 — £550,000 • 7 bed • 2 bath • 2227 ft²
5 bedroom end of terrace house for sale in Birkenhead Road, Meols, CH47 — £590,000 • 5 bed • 2 bath • 2330 ft²
6 bedroom end of terrace house for sale in Trinity Road, Hoylake, Wirral, CH47 — £525,000 • 6 bed • 3 bath • 2821 ft²
6 bedroom terraced house for sale in Alderley Road, Wirral, CH47 — £425,000 • 6 bed • 2 bath • 2382 ft²
3 bedroom semi-detached house for sale in Marine Road, Hoylake, Merseyside, CH47 — £600,000 • 3 bed • 3 bath • 1567 ft²
3 bedroom terraced house for sale in Station Road, Hoylake, Wirral, Merseyside, CH47 — £365,000 • 3 bed • 1 bath • 1335 ft²


































































































