Five-bedroom barn conversion with views, income potential, and large private grounds.
Spacious five-bedroom barn conversion with valley-facing panoramic views
Three established holiday-let units providing immediate income potential
Large open-plan kitchen/breakfast/day room and vaulted lounge with wood-burner
Extensive gardens, terraces, timber entertaining structure with pizza oven
Private drive and ample off-street courtyard parking, multiple outbuildings
Oil-fired boiler with underfloor heating — consider higher running costs
Energy Rating D (66); double glazing but no recent EPC improvement noted
Elevated, isolated hamlet location — privacy plus travel for daily amenities
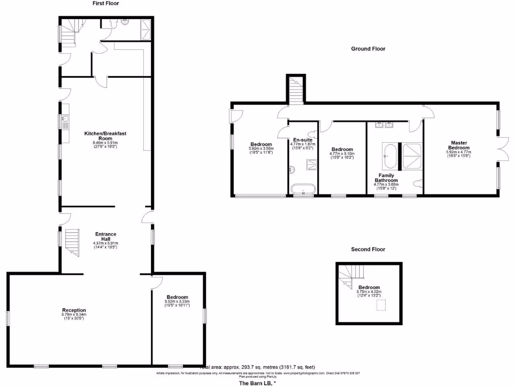
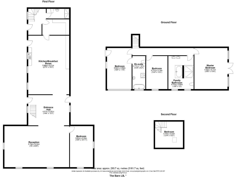
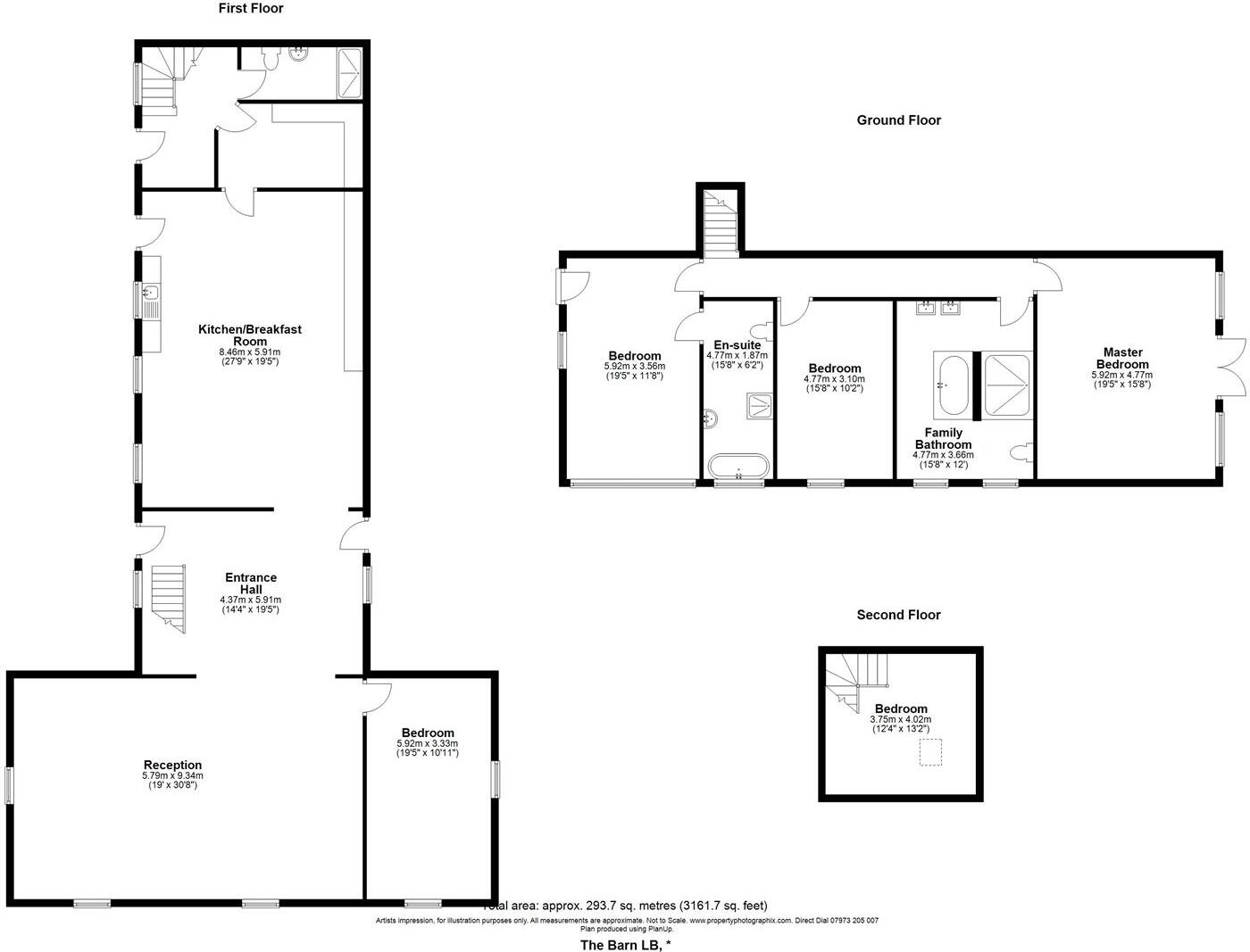
An exceptionally well-presented five-bedroom barn conversion set on a very large elevated plot with panoramic views over the Dee Valley. The property offers generous, characterful living spaces including an open-plan kitchen/breakfast/day room, a vaulted lounge/dining room with wood-burner, study area and flexible bedroom layouts over three floors. Mature gardens, terraces and a timber entertaining structure with pizza oven extend the living space outdoors.
The property includes three established holiday-let units, providing immediate income potential for a buyer who wishes to continue. Practical features include a utility room, underfloor heating served by an oil-fired boiler, double glazing and substantial off-street parking accessed by a private drive with courtyard-style parking and multiple outbuildings.
Notable considerations: the heating uses oil and so running costs and fuel delivery should be factored in; the EPC is D (66). The location is a hamlet/isolated setting on the outskirts of Llangollen — attractive for privacy and views but requiring travel for daily services. The extensive grounds and multiple outdoor areas will need ongoing maintenance.
This home will suit buyers seeking a spacious, characterful countryside property with proven holiday-let income or families wanting flexible accommodation and large private gardens. Further adaptation or commercial use may be possible subject to planning consent.
3 bedroom barn conversion for sale in Sun Bank, Llangollen, LL20 — £425,000 • 3 bed • 2 bath • 1101 ft²
6 bedroom house for sale in Bodfari, Denbigh, LL16 — £799,995 • 6 bed • 4 bath • 2114 ft²
4 bedroom detached house for sale in Llanarmon Dyffryn Ceiriog, LL20 7LD., LL20 — £765,000 • 4 bed • 4 bath • 3765 ft²
3 bedroom detached house for sale in Fron Isaf, Chirk, LL14 — £495,000 • 3 bed • 2 bath • 1546 ft²
5 bedroom detached house for sale in Gledrid, Chirk, Wrexham, Wrecsam, LL14 — £699,950 • 5 bed • 3 bath • 1515 ft²
4 bedroom house for sale in Mold Road, Denbigh, Denbighshire, LL16 — £375,000 • 4 bed • 3 bath • 1230 ft²










































































































