Renovated Victorian terrace — chain free and ready to move into.
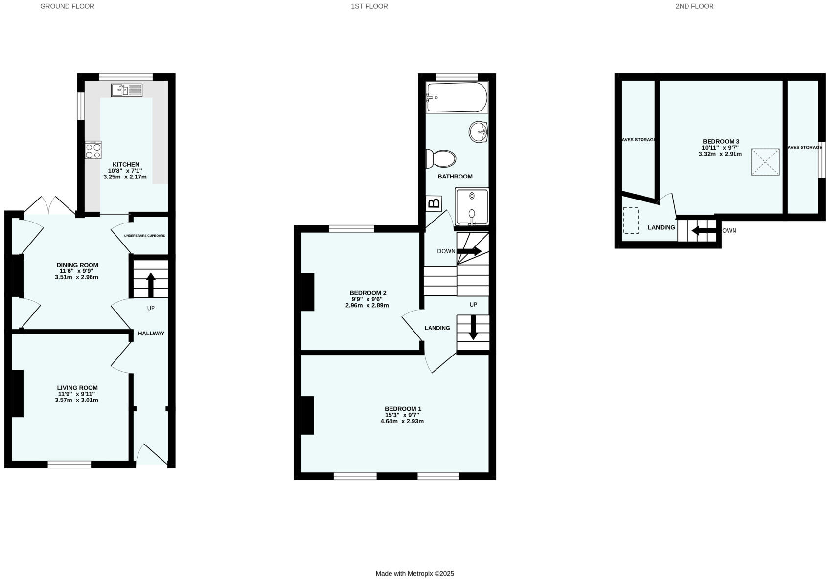
Three double bedrooms across compact terraced layout
A well-presented Victorian mid-terrace offering three double bedrooms across compact, practical accommodation. Recently renovated throughout, the house combines period features — sash windows, mouldings and a fireplace — with contemporary finishes so it’s largely move-in ready for first-time buyers.
The layout suits a starter family or couple needing extra rooms for home working. A small paved courtyard provides low-maintenance outdoor space. Gas central heating and double glazing (installed post-2002) help keep the home comfortable; council tax is inexpensive and flood risk is low.
Buyers should note the property’s modest internal area (approximately 648 sq ft) and single upstairs bathroom, which may feel tight for larger families. The building is solid-brick with assumed limited wall insulation, so there is potential for future energy-efficiency improvements. The wider St Thomas area offers good local schools and many amenities, but recorded local crime levels are higher than average, which some buyers will want to consider.
Offered with no onward chain, this home is a straightforward purchase for someone seeking period character, modern presentation and scope to add value through insulation or internal alteration.
3 bedroom terraced house for sale in Cowick Road, St Thomas, EX2 — £275,000 • 3 bed • 1 bath • 1121 ft²
3 bedroom end of terrace house for sale in Churchill Road, St Thomas, Exeter, EX2 — £225,000 • 3 bed • 1 bath
3 bedroom terraced house for sale in Union Street, St Thomas, EX2 — £239,500 • 3 bed • 1 bath • 1012 ft²
3 bedroom terraced house for sale in Rugby Road, EX4 — £270,000 • 3 bed • 1 bath • 817 ft²
2 bedroom terraced house for sale in Oxford Street, St Thomas, EX2 — £247,000 • 2 bed • 1 bath • 799 ft²
2 bedroom terraced house for sale in Beaufort Road, St Thomas, EX2 — £240,000 • 2 bed • 1 bath • 722 ft²


























































