Spacious family home with large garden and far-reaching rural views.
Renovated period cottage with contemporary kitchen and modern bathrooms
Approximately one-third acre of gardens plus additional adjoining land
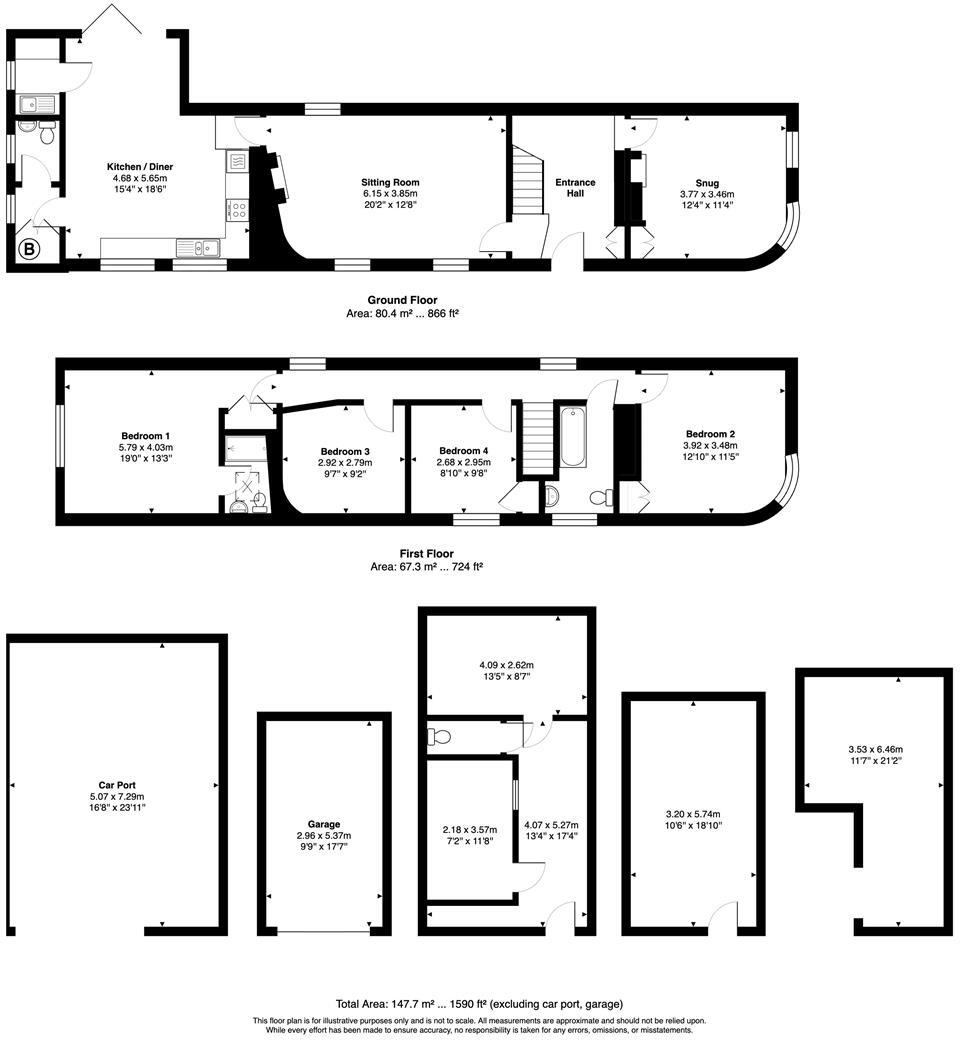
Detached garage, large car port and versatile outbuilding/studio
Four bedrooms plus ground-floor snug that could be fifth bedroom
Oil-fired central heating; private drainage (not mains sewer)
Stone walls assumed uninsulated — potential insulation/energy upgrade needed
Chain free sale; freehold tenure
Local crime levels recorded as high; council tax band E
Set in the quiet hamlet of Heathstock, this renovated period cottage combines traditional character with contemporary living. The accommodation flows well for family life, with a generous kitchen/dining space and bifold doors that open directly to extensive gardens backing onto open fields. The property is offered freehold and chain free, making it straightforward to move into.
Finished to a high standard throughout, the house benefits from bespoke kitchen cabinetry, modern bathrooms and double-glazed windows. Four good-sized bedrooms sit over two floors, with a ground-floor snug that could serve as a fifth bedroom or home office. Ancillary buildings include a detached garage, large car port and a versatile outbuilding suitable for a studio or gym.
Outside, roughly one-third of an acre of lawn, mature trees and additional parcel of land provide privacy and strong rural outlooks. Practical services include mains water and electricity, private drainage and oil-fired central heating. Superfast broadband and excellent mobile signal support home working and connectivity.
Buyers should note a few material points: the property relies on oil heating and private drainage, and the stone walls are assumed uninsulated, which may affect running costs. Council tax is band E and recorded local crime levels are high, which some purchasers will want to consider. Overall, this is an attractive, recently renovated country home offering space, character and countryside living.
3 bedroom terraced house for sale in Stockland, Honiton, Devon, EX14 — £395,000 • 3 bed • 2 bath • 1139 ft²
6 bedroom detached house for sale in Southleigh, Colyton, EX24 — £1,300,000 • 6 bed • 5 bath • 2977 ft²
4 bedroom detached house for sale in Ham, Axminster, EX13 — £500,000 • 4 bed • 1 bath • 1386 ft²
3 bedroom detached house for sale in Yarcombe, Honiton, EX14 — £695,000 • 3 bed • 2 bath • 1992 ft²
2 bedroom terraced house for sale in Cotleigh, Honiton, EX14 — £325,000 • 2 bed • 1 bath • 609 ft²
3 bedroom semi-detached house for sale in Awliscombe, Honiton, Devon, EX14 — £441,000 • 3 bed • 1 bath • 1310 ft²










































































































































