Generous rooms, gardens and country views for growing families.
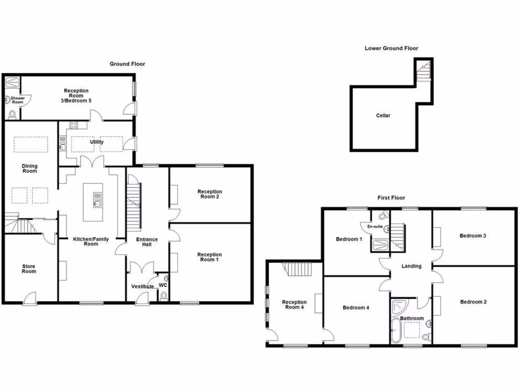
Five bedrooms and three bathrooms, flexible layout for annexe potential
Set just outside Barnoldswick on Moorgate Road, this extended stone farmhouse offers spacious family living across generous reception rooms and five bedrooms. Character features include exposed stonework, inglenook fireplaces and reclaimed timber, paired with contemporary comforts such as a large kitchen/family room, underfloor heating in parts and modern double glazing.
The house sits in about 0.5 acres of gardens and grounds with open aspect countryside views, multiple terraces and gravel parking for several vehicles. There is clear potential to form a self-contained one-bedroom annexe from the ground-floor accommodation, or to adapt outbuildings (subject to planning) for ancillary use — useful for relatives or rental income.
Buyers should note practical realities: the property is heated by an LPG boiler (not on a communal supply), the EPC is D, and broadband speeds are very slow in this rural location. The current owners are landscaping the grounds but some areas remain works-in-progress; purchasers should expect further garden finishing.
Overall this is a characterful family home in an affluent, very low-crime rural setting — ideal for those seeking space, privacy and countryside lifestyle, with some scope for improvement and alternative uses subject to consents.
4 bedroom semi-detached house for sale in Tynedale Farm House, Spenbrook Road, Burnley, BB12 — £600,000 • 4 bed • 1 bath • 3437 ft²
4 bedroom semi-detached house for sale in Knarrland Farm, Warley Wise Lane, Laneshawbridge, Colne, BB8 — £625,000 • 4 bed • 1 bath • 1350 ft²
4 bedroom detached house for sale in Rainhall Crescent, Barnoldswick, BB18 — £595,000 • 4 bed • 3 bath • 2204 ft²
5 bedroom detached house for sale in Stump Hall Road, Higham, Pendle, BB12 — £699,950 • 5 bed • 3 bath • 2850 ft²
4 bedroom detached house for sale in Dewhurst Road, Langho, BB6 — £545,000 • 4 bed • 2 bath • 1852 ft²
4 bedroom farm house for sale in Wilpshire Road, Rishton, Blackburn, BB1 — £850,000 • 4 bed • 1 bath • 3574 ft²






























































































































































































































































