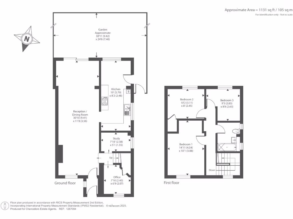
**Standout Features:**
- Three bedrooms in a semi-detached home
- Converted garage ideal for an office
- Spacious kitchen diner and family bathroom
- Private garden and driveway
- Located on a quiet no-through road
- Close to local amenities and M4 access
- Very low crime rate in an affluent area
**Potential Concerns:**
- Kitchen requires renovation
- Average room sizes
- Small plot size
This charming three-bedroom semi-detached house in the serene neighborhood of West Swindon offers a fantastic opportunity for families and first-time buyers. Nestled in a peaceful no-through road, this property features a converted garage that serves perfectly as a home office, along with a spacious lounge/diner and an ample kitchen diner. While the kitchen is in need of renovation, this presents an exciting chance for buyers to customize it to their taste.
With an attractive price of £270,000, this home sits on an average-sized plot and boasts a private garden — perfect for children or entertaining. You’ll appreciate the low crime rate and family-friendly locale, which is well-served by reputable schools including Millbrook Primary School and Lydiard Park Academy. Additionally, the fast broadband and excellent mobile signal ensure connectivity for your modern lifestyle. Don’t miss out on this well-priced opportunity—homebuyers looking for potential and comfort will see themselves thriving here.
2 bedroom semi-detached house for sale in Colchester Close, Swindon, SN5 — £230,000 • 2 bed • 1 bath • 775 ft²
3 bedroom semi-detached house for sale in Silchester Way, Westlea, Swindon, SN5 — £270,000 • 3 bed • 1 bath • 743 ft²
3 bedroom semi-detached house for sale in Anglesey Close - Westlea, Swindon, SN5 — £315,000 • 3 bed • 1 bath • 889 ft²
4 bedroom detached house for sale in Liskeard Way, Freshbrook, Swindon, Wiltshire, SN5 — £330,000 • 4 bed • 2 bath • 976 ft²
3 bedroom semi-detached house for sale in Duchess Way, Queensfield, Swindon, SN2 — £300,000 • 3 bed • 1 bath • 1066 ft²
4 bedroom semi-detached house for sale in Conisborough, Toothill, West Swindon, SN5 — £300,000 • 4 bed • 1 bath • 1130 ft²


























































































