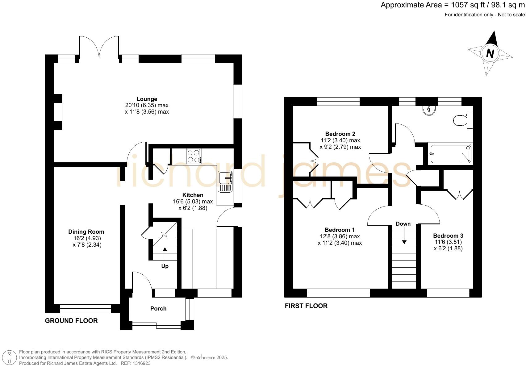
**Standout Features:**
- Beautifully presented three-bedroom semi-detached property
- Converted garage for additional living space (ideal for office or playroom)
- Modern living areas with natural light and direct access to the garden
- Off-street parking with a paved driveway
- Low crime area and excellent transport links (A419 and M4)
- Close proximity to well-regarded schools
- Freehold tenure; chain-free sale
**Summary:**
Welcome to this stunning three-bedroom semi-detached home, perfectly positioned for family living in a sought-after neighborhood. This modern gem boasts a stylish converted garage that expands your living possibilities, offering a cozy home office or versatile playroom. The inviting living area features bifold doors that seamlessly connect the indoors with a charming garden, ideal for entertaining or enjoying family lunches in the sun.
Upstairs, you’ll find three well-sized bedrooms, each equipped with built-in wardrobes, catering perfectly to growing families or those in need of adaptable space. The property also features a contemporary kitchen designed for efficiency and ease. Outside, the low-maintenance garden provides a relaxing patio area for summer gatherings alongside a verdant lawn.
Located near excellent schools with strong Ofsted ratings, and just minutes away from vital transport routes, this home is a must-see for those looking to settle in a vibrant and family-friendly community. With chain-free convenience, the opportunity to move right in awaits; don’t let this chance slip away!
3 bedroom semi-detached house for sale in Wheeler Avenue, Stratton St Margaret, Swindon, SN2 — £325,000 • 3 bed • 1 bath • 893 ft²
3 bedroom semi-detached house for sale in Falconscroft, Covingham, Swindon, SN3 — £350,000 • 3 bed • 2 bath • 1044 ft²
3 bedroom terraced house for sale in Larchmore Close, Greenmeadow, Swindon, SN25 — £287,500 • 3 bed • 1 bath • 824 ft²
3 bedroom semi-detached house for sale in Cloche Way, Stratton St Margaret, Swindon, SN2 — £330,000 • 3 bed • 2 bath • 904 ft²
3 bedroom semi-detached house for sale in Orchard Grove, Upper Stratton, Swindon, SN2 — £380,000 • 3 bed • 2 bath • 1394 ft²
3 bedroom semi-detached house for sale in Rowan Road, Swindon, Wiltshire, SN2 — £290,000 • 3 bed • 1 bath • 1157 ft²










































































