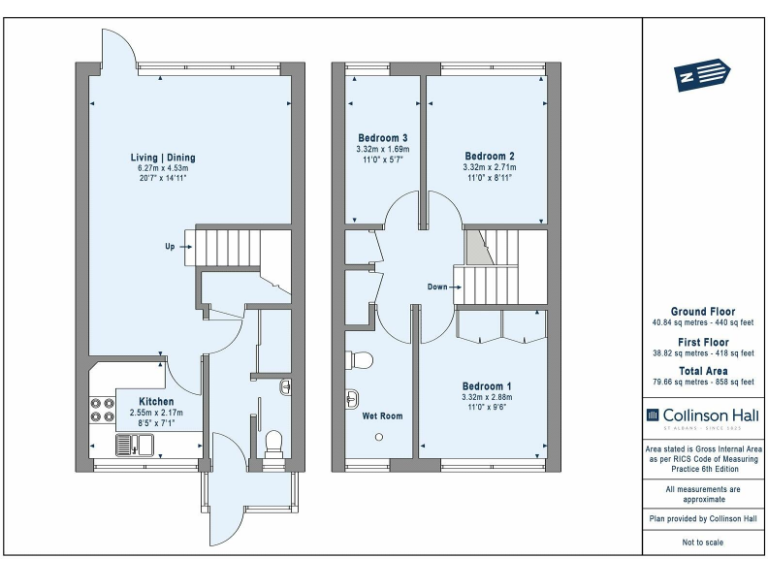
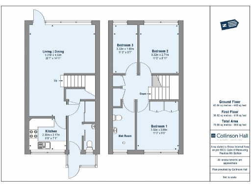
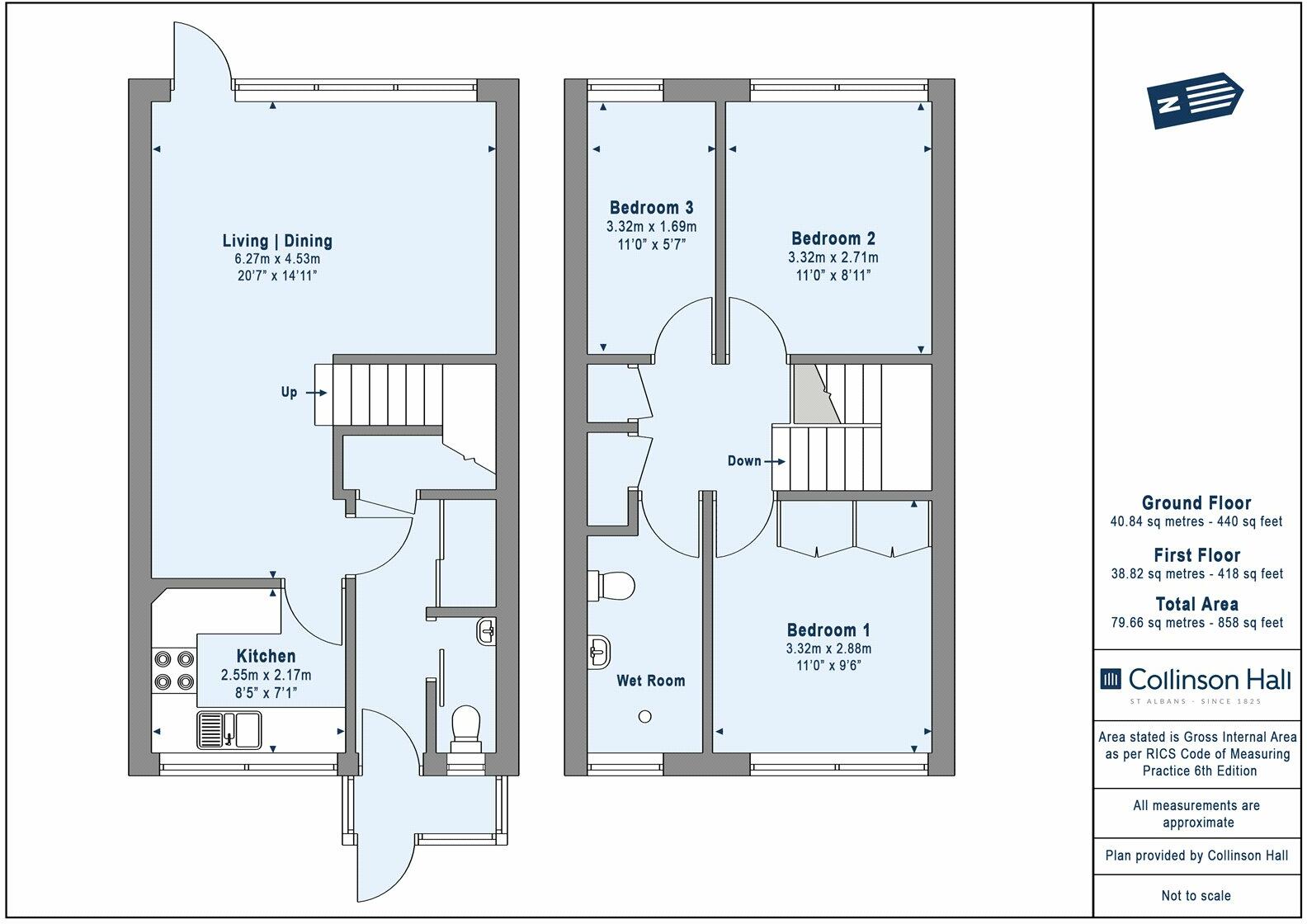
**Standout Features:**
- **Bedrooms:** 3 bedrooms, providing ample space for families
- **Bathrooms:** 1 modernized shower room
- **Parking:** Garage located in a nearby block
- **Garden:** Overgrown but offers significant potential for landscaping and outdoor enjoyment
- **Location:** Quiet, leafy avenue in a desirable residential area close to excellent schools and amenities
- **Condition:** Requires some updates and maintenance, particularly in living areas
Nestled in a serene, tree-lined avenue, this charming end-of-terrace three-bedroom home invites families to experience the best of suburban living. Boasting a unique mid-20th-century modern design with large windows that flood the space with natural light, the property offers a versatile layout across two levels. The ground floor features a spacious living and dining room connecting to a private cottage-style garden, perfect for outdoor gatherings. Upstairs, you’ll find three bedrooms and a recently updated wet room, catering to family needs.
While the property presents exciting renovation potential, particularly in the garden which is currently overgrown but rich with possibilities, it is also situated within a community renowned for its low crime rate and excellent educational facilities, including schools with outstanding ratings. With fast broadband and great local amenities just a stone’s throw away, this home combines comfort and community with a secure investment for the future. Don’t miss your opportunity to make this unique property yours, especially in an area that balances character and convenience.
4 bedroom terraced house for sale in St. Johns Court, Beaumont Avenue, St. Albans, Hertfordshire, AL1 — £600,000 • 4 bed • 2 bath • 1344 ft²
3 bedroom end of terrace house for sale in Garden Close, St. Albans, Hertfordshire, AL1 — £630,000 • 3 bed • 1 bath • 987 ft²
3 bedroom end of terrace house for sale in Salisbury Avenue, St. Albans, AL1 — £630,000 • 3 bed • 1 bath • 1109 ft²
3 bedroom house for sale in Admirals Close, Colney Heath, AL4 — £499,950 • 3 bed • 1 bath • 1152 ft²
3 bedroom semi-detached house for sale in Gurney Court Road, St. Albans, Hertfordshire, AL1 — £900,000 • 3 bed • 1 bath • 1018 ft²
2 bedroom terraced house for sale in Wilstone Drive, St. Albans, Hertfordshire, AL4 — £475,000 • 2 bed • 1 bath • 814 ft²


















































